
Dorn Bau AG
Herrn Raphael Dorn
Kontaktiere den Anbieter schriftlich, es ist keine Telefonnummer hinterlegt.
Preise & Kosten
Provision für Käufer
provisionsfrei
Lage
Die Stadt Gerolzhofen liegt im unterfränkischen Landkreis Schweinfurt und verbindet auf ideale Weise ländlichen Charme mit moderner Infrastruktur. In privilegierter Ortsrandlage – innerhalb eines neu erschlossenen Wohngebiets – genießen Sie die Ruhe der Natur und einen herrlichen Blick auf den Nützelbach. Ein ideales Umfeld...
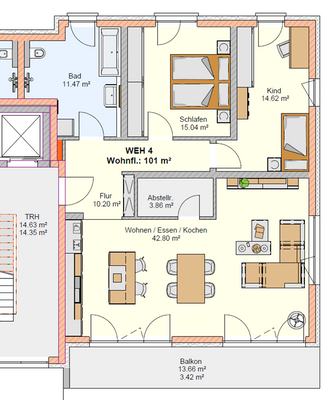
Die Wohnung
Wohnungslage
1. Geschoss
Bezug
2025
Derzeitige Nutzung
frei
Wohnanlage
Energie & Heizung
Warum sehe ich diese Anzeige? – Du siehst diese Anzeige basierend auf Ihrer Navigation auf unserer Website und den Suchkriterien, die du verwendet hast.
Weitere Energiedaten
Energieträger
Elektro
Haustyp
KfW 40
Heizungsart
Fußbodenheizung, Luft-/Wasser-Wärmepumpe
Details
Objektbeschreibung
Das massiv gebaute KfW-40-Haus wurde von einem regionalen Bauunternehmen errichtet und überzeugt durch eine hochwertige Ausstattung sowie moderne Technik. Es erwartet Sie ein zeitgemäßes Wohnkonzept mit lichtdurchfluteten Räumen, offenen Grundrissen und einer klaren, modernen Gestaltung.
Zur Ausstattung gehören unter...
Weitere Informationen
Besichtigungstermine
Falls Sie noch Fragen haben oder das Exposè anfordern möchten, stehen wir Ihnen jederzeit zur Verfügung!
Fa. Dorn Bau AG
Im Werntal 50
97490 Hain
r.dorn@dornhausbau.de
09725-7065110
Anbieter der Immobilie
Dorn Bau AG
Im Werntal 50, 97490 Hain
Herrn Raphael Dorn
Dein Ansprechpartner
Kontaktiere den Anbieter schriftlich, es ist keine Telefonnummer hinterlegt.
Online-ID: 2ksgz56
Finde Angebote wie dieses
Hier geht es zu unserem Impressum, den Allgemeinen Geschäftsbedingungen, den Hinweisen zum Datenschutz und nutzungsbasierter Online-Werbung.