Riwog Real Estate Management GmbH

Herr Aurelian Tranc

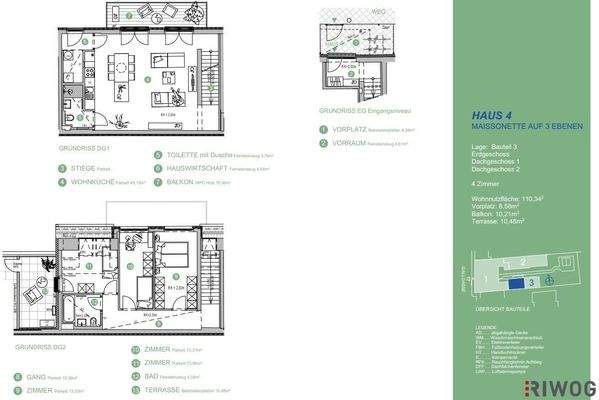
4-Zimmer Maisonette mit Balkon, Terrasse und hochwertiger Ausstattung

€ 849.000
Kaufpreis
110,34 m²
Wohnfläche ca.
4
Zimmer
Finanzierung berechnen mit durchblicker

Der Anbieter dieses Objekts hat gegenüber der AVIV Germany GmbH als Betreiber dieses Online-Marktplatzes erklärt, nicht als Unternehmer im Sinne des § 1 KSchG zu handeln. Die im Verbraucherschutzrecht der Union verankerten Verbraucherrechte (insbesondere Informationspflichten und Rücktritts- bzw. Widerrufsrechte) finden auf den Vertrag zwischen dem Anbieter des Objekts und Ihnen (dem Interessenten) keine Anwendung.

Gewerblicher Anbieter

Der Anbieter dieses Objekts hat gegenüber der AVIV Germany GmbH als Betreiber dieses Online-Marktplatzes erklärt, als Unternehmer im Sinne des § 1 KSchG zu handeln.

AdresseGallgasse 17
1130 Wien 
(Hietzing)
Auf Karte ansehen

Preise & Kosten

Kaufpreis € 849.000

Provision für Käufer

3% des Kaufpreises zzgl. 20% USt.

Lage

Speißinger Platz

Die Wohnung

Kategorie

Maisonette

Bezug

sofort

  • Bad mit Wanne und Dusche
  • Balkon, Garten, Terrasse
  • Böden: Fliesenboden, Parkett
  • Zustand: Erstbezug
  • voll klimatisiert

Wohnanlage

  • Zustand: Neubau

Energie & Heizung

Heizwärmebedarf (HWB)

B

43,99 kWh/(m²·a)

Gesamtenergieeffizienz (fGEE)

A

0,82

Weitere Energiedaten

Energieträger

Solar

Heizungsart

Fußbodenheizung, Luft-/Wasser-Wärmepumpe

Details

Objektbeschreibung

Eingebettet im grünsten Bezirk Wiens (Hietzing) in einer ruhigen Einbahnstraße besticht dieses ehemalige Fuhrwerkerhaus durch seinen Mix aus traditioneller Architektur - aber neu interpretiert - mit effizienten Grundrissen und großzügigen Freiflächen und einer sehr...

Mehr anzeigen

Weitere Informationen

Stichworte
Nord-Balkon/Terrasse, Fahrradraum, Freifläche: 29,27 m², Anzahl der Badezimmer: 2, Anzahl der separaten WCs: 2, Anzahl Balkone: 1, Anzahl Terrassen: 2, Balkon-Terrassen-Fläche: 29,27 m², Bundesland: Wien, 3 Etagen, Wohnungsnr.: H4

Anbieter der Immobilie

Partner

Riwog Real Estate Management GmbH

im Durchschnitt  5,00  Sterne
(bei 2 Bewertungen)

Börsegasse 12, 1010 WIEN

Geschäftszeiten
user

Herr Aurelian Tranc

Dein Ansprechpartner

Anbieter-Profil Anbieter-Impressum

Online-ID: 2ksth5u

Referenznummer: OBGC202507221232283474403ad5d58

Finde Angebote wie dieses

imageimageimage

Günstige Immobilienfinanzierung einfach online berechnen

Persönliches Angebot berechnen

Hier geht es zu unserem Impressum, den Allgemeinen Geschäftsbedingungen, den Hinweisen zum Datenschutz und nutzungsbasierter Online-Werbung.