
Donauimmobilien dieHausberater24 GmbH & Co KG
Frau Sabine Prchla
+43 ···
Nr. anzeigenPreise & Kosten
Provision für Käufer
3% des Kaufpreises zzgl. 20% USt.
Lage
Die Wohnung befindet sich in Krems an der Donau, einer Stadt in Niederösterreich. Sie liegt in der Nähe der Fußgängerzone und der Altstadt, die zu Fuß schnell erreichbar sind. In unmittelbarer Umgebung gibt es auch eine Vielzahl an wichtigen Einrichtungen wie Arztpraxen, Apotheken, eine Klinik und ein Krankenhaus. Auch...
Die Wohnung
Wohnungslage
2. Geschoss
Wohnanlage
Energie & Heizung
Warum sehe ich diese Anzeige? – Du siehst diese Anzeige basierend auf Ihrer Navigation auf unserer Website und den Suchkriterien, die du verwendet hast.
Heizwärmebedarf (HWB)
103,00 kWh/(m²·a)
Gesamtenergieeffizienz (fGEE)
0,75
Weitere Energiedaten
Heizungsart
Fußbodenheizung, Luft-/Wasser-Wärmepumpe
Details
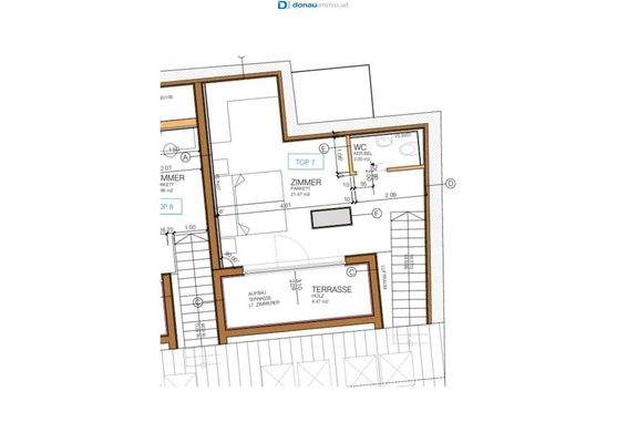
Objektbeschreibung
SIE LIEBEN DAS MODERNE? WOLLEN ETWAS NEU ERRICHTETES?
Willkommen in Ihrer neuen Traumwohnung in Krems an der Donau! Diese wunderschöne 3-Zimmer-Wohnung befindet sich in der 2. Etage eines modernen Wohnhauses mit Lift und bietet Ihnen alles, was Sie sich für Ihr neues Zuhause wünschen können.
Mit einer...
Weitere Informationen
Stichworte
Anzahl der separaten WCs: 2, Anzahl Balkone: 1, Balkon-Terrassen-Fläche: 8,55 m², Bundesland: Niederösterreich
Anbieter der Immobilie
Donauimmobilien dieHausberater24 GmbH & Co KG
Obere Landstraße 9/2, 3500 KREMS
Online-ID: 2l3635f
Referenznummer: OBGC20250602152335149adad7a4e6c
Finde Angebote wie dieses
Günstige Immobilienfinanzierung einfach online berechnen
Persönliches Angebot berechnenWarum sehe ich diese Werbung? – Du siehst diese Werbung basierend auf Deiner Navigation auf unserer Website und der von Dir verwendeten Suchkriterien.
Diese Werbung wird bezahlt von durchblicker
Werbung melden
Hier geht es zu unserem Impressum, den Allgemeinen Geschäftsbedingungen, den Hinweisen zum Datenschutz und nutzungsbasierter Online-Werbung.