
Bestlist Immobilien
Frau Ulrike List
+43 ···
Nr. anzeigenPreise & Kosten
Provision für Käufer
3% des Kaufpreises zzgl. 20% USt.
Die Wohnung
Wohnungslage
1. Geschoss
Wohnanlage
Details
Objektbeschreibung
CHARMANTE FERIENWOHNUNG IN PUNTA SKALA - ERHOLUNG AN DER DALMATINISCHEN KÜSTE
Zum Verkauf gelangt diese liebevoll gestaltete Ferienwohnung in der renommierten Ferienanlage Punta Skala, nur wenige Schritte vom kristallklaren Meer entfernt. Die gepflegte Anlage befindet sich im idyllischen Küstenort Petrcane, unweit von...
Weitere Informationen
Stichworte
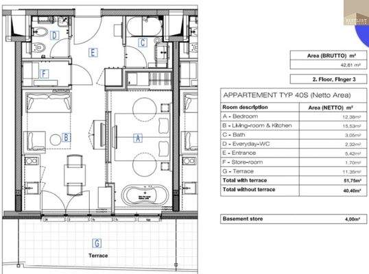
Stellplatz vorhanden, Anzahl der Badezimmer: 1, Anzahl der separaten WCs: 1, Anzahl Terrassen: 1, Balkon-Terrassen-Fläche: 11,35 m², Kellerfläche: 4,00 m²
Anbieter der Immobilie
Online-ID: 2l3ym5e
Referenznummer: OBGC202507011547384349248766040
Finde Angebote wie dieses
Hier geht es zu unserem Impressum, den Allgemeinen Geschäftsbedingungen, den Hinweisen zum Datenschutz und nutzungsbasierter Online-Werbung.