
Grundstücksgesellschaft Manke GmbH & Co. KG
Team Manke Verkauf
+49 ···
Nr. anzeigenDieses Angebot ist Teil des Neubauprojekts
Green Villages in Norderstedt nahe Stadtpark
Preise & Kosten
Provision für Käufer
provisionsfrei
Abschreibung/Anlage
als Kapitalanlage geeignet
Lage
Norderstedt - das ist Wohnen, kombiniert aus Stadt + Land + Natur. Norderstedt ist eine Stadt im Süden von Schleswig-Holstein und grenzt direkt an Hamburg. Die Stadt hat etwa 80.000 Einwohner und ist die fünftgrößte Stadt in Schleswig-Holstein. Norderstedt ist ein bedeutender Wirtschaftsstandort mit zahlreichen Unternehmen...
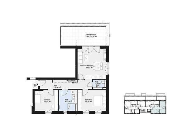
Die Wohnung
Kategorie
Penthouse
Wohnungslage
2. Geschoss
Bezug
2026/2027
Derzeitige Nutzung
frei
Wohnanlage
Das Neubauprojekt
Energie & Heizung
Warum sehe ich diese Anzeige? – Du siehst diese Anzeige basierend auf Ihrer Navigation auf unserer Website und den Suchkriterien, die du verwendet hast.
Energieausweistyp
Bedarfsausweis
Gebäudetyp
Wohngebäude
Baujahr laut Energieausweis
2025
Wesentliche Energieträger
Strom-Mix
Gültigkeit
17.09.2025 bis 16.09.2035
Effizienzklasse
A+
Endenergiebedarf
11,50 kWh/(m²·a)
Weitere Energiedaten
Haustyp
KfW 40
Heizungsart
Fußbodenheizung, Luft-/Wasser-Wärmepumpe
Details
Objektbeschreibung
Green Villages - Eingebettet in gewachsenem Grün und urbanem Leben!
Hier entsteht ein modernes Wohnensemble aus Reihenhäusern, Doppelhäusern und Eigentumswohnungen, dass sich durch wundervolle Architektur und besondere Grundrisse harmonisch in das Zusammenspiel aus städtischem Flair und grüner Umgebung einfügt. Leben und...
Preisinformation
Dieser Aktionspreis gilt bis zum 31.12.2025
Weitere Informationen
Objektbesichtigung
Jetzt Rohbau besichtigen!
Öffnungszeiten Montag - Sonntag mit Termin, nach vorheriger Vereinbarung.
Steindamm Ecke Hans-Friedrich-Dibbern-Straße in Norderstedt.
Gern stimmen wir individuelle Besichtigungstermine mit Ihnen ab. Bitte kontaktieren Sie hierfür unser Büro:
E-Mail...
Anbieter der Immobilie
Online-ID: 2l48j5t
Referenznummer: 276-020 O
Finde Angebote wie dieses
Hier geht es zu unserem Impressum, den Allgemeinen Geschäftsbedingungen, den Hinweisen zum Datenschutz und nutzungsbasierter Online-Werbung.