Version: 8.25.1Navigation überspringen
1.690.000 €
432 m² Grundstück
Immowelt logo

Haus zum Kauf
1690000 €
432 m² Grundstück

Wiener Stadthaus bei Schönbrunn - Airbnb-Nutzung & attraktives Entwicklungspotenzial mit Baubewilligung

Dieses einzigartige, denkmalgeschützte Wiener Stadthaus vereint Tradition, Lage und Investmentpotenzial in einem charmanten Ensemble mitten im 15. Bezirk. Das historische Gebäude verkörpert den unverwechselbaren Charakter klassischer Wiener Baukunst und überzeugt durch seine baubewilligte Nutzung für 9 Einheiten und 1 Lager - eine hervorragende Grundlage für unterschiedlichste Nutzungskonzepte.

Die bestehende Bewilligung ermöglicht eine flexible Nutzung der Flächen, etwa für Kurzzeitvermietungen wie Airbnb, kombinierte Wohn- und Arbeitskonzepte oder klassische Vermietung. Dadurch bietet das Objekt eine seltene Gelegenheit, historische Architektur mit wirtschaftlicher Nutzung zu verbinden.

Ein kleiner, begrünter Innenhof mit Gartenanteil verleiht dem Haus eine angenehme, ruhige Atmosphäre - eine außergewöhnliche Kombination aus urbanem Wohnen und Rückzugsort mitten in Wien.

 

Fakten auf einen Blick

Adresse: 15. Bezirk, Wien - ruhige Lage nahe Mariahilfer Straße & Schönbrunn
Nutzfläche: ca. 413 m²
Grundstücksfläche: ca. 432 m²
4 Einheiten: Top 1, 2, 3 & 4 (Baubewilligt für 9 Einheiten + 1 Lager)
Kaufpreis: € 1.690.000,-
Vermittlungsprovision: 3 % des Kaufpreises zzgl. 20 % USt

 

Highlights

Denkmalgeschütztes Wiener Stadthaus mit historischem Charakter

Zwei Gebäudeteile: Straßentrakt & Hoftrakt

Vielfältige Nutzungsmöglichkeiten: Airbnb, Wohnen, Serviced Apartments, Büros, Ordinationen oder Vereine

Ruhiger Innenhof mit Gartenanteil

Bestandsfrei - sofort verfügbar

Attraktives Anlageobjekt mit langfristigem Wertsteigerungspotenzial

Zentrale und aufstrebende Lage mit idealer Infrastruktur

 

Gebäude

Historisches Wiener Stadthaus mit typischer Altbauarchitektur

Zwei Baukörper mit insgesamt neun Wohneinheiten und einem Lager

Denkmalgeschütztes Ensemble mit Garten im Innenhof

Ruhige Lage und angenehme Nachbarschaft

 

Ideal für

Investoren: Renditestarkes Anlageobjekt mit genehmigter Airbnb-Vermietung

Projektentwickler: Flexible Nutzung und attraktive Lage

Liebhaber: Wiener Stadthaus mit Geschichte, Stil und Potenzial

 

Finanzierungsservice

Wir unterstützen Sie gerne bei der Finanzierung Ihrer Wunschimmobilie. Dank unserer langjährigen Partner finden wir die besten Konditionen - individuell und unkompliziert.

 

Besichtigungen & Kontakt

Besichtigungen sind nach Vereinbarung - auch am Wochenende - möglich.
Bitte beachten Sie, dass Unterlagen ausschließlich an Interessenten übermittelt werden können, die ihre vollständigen Kontaktdaten (Name, Anschrift, Telefonnummer und E-Mail-Adresse) angeben.

 

Hinweis

Alle Angaben basieren auf Informationen des Eigentümers bzw. Dritter. Druck-, Schreib- oder Redaktionsfehler bleiben vorbehalten. Maßangaben erfolgen ohne Gewähr (Toleranz ±).
Irrtum und Änderungen vorbehalten.

Hinweis gemäß Energieausweisvorlagegesetz: Ein Energieausweis wurde vom Eigentümer bzw. Verkäufer, nach unserer Aufklärung über die generell geltende Vorlagepflicht, sowie Aufforderung zu seiner Erstellung noch nicht vorgelegt. Daher gilt zumindest eine dem Alter und der Art des Gebäudes entsprechende Gesamtenergieeffizienz als vereinbart. Wir übernehmen keinerlei Gewähr oder Haftung für die tatsächliche Energieeffizienz der angebotenen Immobilie.

Wir weisen darauf hin, dass zwischen dem Vermittler und dem zu vermittelnden Dritten ein familiäres oder wirtschaftliches Naheverhältnis besteht.

Der Vermittler ist als Doppelmakler tätig.

Infrastruktur / Entfernungen

Gesundheit
Arzt <500m
Apotheke <500m
Klinik <500m
Krankenhaus <1.500m

Kinder & Schulen
Schule <500m
Kindergarten <500m
Universität <500m
Höhere Schule <1.500m

Nahversorgung
Supermarkt <500m
Bäckerei <500m
Einkaufszentrum <1.000m

Sonstige
Geldautomat <500m
Bank <500m
Post <500m
Polizei <500m

Verkehr
Bus <500m
U-Bahn <1.000m
Straßenbahn <500m
Bahnhof <1.000m
Autobahnanschluss <3.500m

Angaben Entfernung Luftlinie / Quelle: OpenStreetMap

Merkmale

  • 432 m² Grundstück
  • Garten

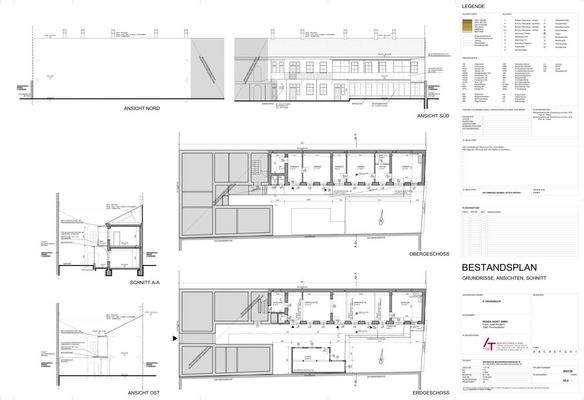
Grundrisse

Grundrisse
1 / 3

Realisiere Dein Projekt

Bausubstanz und Energie

Möchtest du Details zum Energieverbrauch?info_energy_calculation-icon
  • Zustand der ImmobilieGepflegt
Immowelt logo

Preisdetails

Kaufpreis
1690000 €
Provision für Käufer
Bitte beachte, das Angebot kann bei Vertragsabschluss die Zahlung einer Provision beinhalten. Weitere Informationen erhältst Du vom Anbieter.

Lage

address-icon
Wien (1150)
Der 15. Wiener Gemeindebezirk zählt zu den dynamischsten und kulturell vielfältigsten Lagen der Stadt. Die nahe Mariahilfer Straße bietet eine große Auswahl an Geschäften, Restaurants und Cafés, während die Reindorfgasse mit kreativen Pop-up-Stores, Designateliers und modernen Bars das urbane Lebensgefühl prägt.

Gleichzeitig sorgt die Nähe zum prachtvollen Schloss Schönbrunn für eine außergewöhnliche Lebensqualität. Die weitläufigen Grünflächen und historischen Gärten laden zum Spazieren, Entspannen und Genießen ein - ein Ort, an dem Kultur und Natur harmonisch miteinander verschmelzen. Hier profitieren Bewohner von einer perfekten Balance zwischen urbaner Vielfalt und erholsamer Ruhe im Grünen.

Weitere Informationen

Stichworte Bundesland: Wien

Weitere Services

Lust auf eine Besichtigung?
Eine Frage zur Immobilie?
Nachricht hinzufügen
Mit der Nutzung der oben angegebenen Telefonnummer oder durch Klicken auf „Kontaktieren“ akzeptierst Du die Allgemeinen Nutzungsbedingungen, denen Du jederzeit widersprechen kannst. Weitere Informationen zum Datenschutz

Über den Anbieter

Lainergasse 5, 1230 WIEN
Sascha IlicDein Kontakt
Online-ID: 25378S2EX68V
Referenznummer: OBGC20251009113813453bd4f8305ae
IMMO METER Immobilieninvest GmbH
Nachricht hinzufügen
Mit der Nutzung der oben angegebenen Telefonnummer oder durch Klicken auf „Kontaktieren“ akzeptierst Du die Allgemeinen Nutzungsbedingungen, denen Du jederzeit widersprechen kannst. Weitere Informationen zum Datenschutz
Wie zufrieden bist du mit dieser Seite (nicht mit der Immobilie selbst)?