

Hellmuth Immobilien GmbH
Herr Matthias Hempel
056 ···
Nr. anzeigenPreise & Kosten
Provision für Käufer
2,975 % inkl. MwSt.
Lage
Die Stadt Baunatal ist mit rund 28.000 Einwohnern die größte Stadt im Landkreis Kassel und liegt ca. 15 Kilometer süd-westlich der Stadt Kassel im Herzen Deutschlands. Neben der guten Verkehrsanbindung durch die Autobahnen A7, A44 und A49 und dem ICE Bahnhof in Kassel, ist Baunatal durch ein sehr gutes Netz des öffentlichen...
Die Wohnung
Wohnungslage
Erdgeschoss
Wohnanlage
Energie & Heizung
Warum sehe ich diese Anzeige? – Du siehst diese Anzeige basierend auf Ihrer Navigation auf unserer Website und den Suchkriterien, die du verwendet hast.
Energieausweistyp
Bedarfsausweis
Gebäudetyp
Wohngebäude
Baujahr laut Energieausweis
2014
Wesentliche Energieträger
GAS
Effizienzklasse
A
Endenergiebedarf
45,60 kWh/(m²·a)
Weitere Energiedaten
Energieträger
Gas
Heizungsart
Zentralheizung
Details
Objektbeschreibung
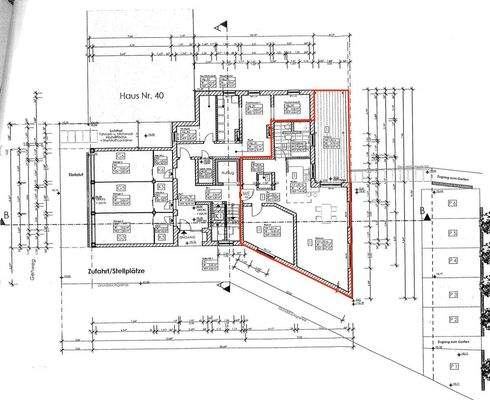
Diese gepflegte Wohnung befindet sich im Erdgeschoss rechts eines im Jahr 2014 erbauten Mehrfamilienhauses und bietet rund 89?m² Wohnfläche mit klarer Raumaufteilung und modernem Wohnkomfort.
Die Wohnung umfasst:
- Wohn- und Essbereich mit Zugang zur Terrasse
- Küche
- Schlafzimmer
- Dusch-/Wannenbad
-...
Preisinformation
1 Stellplatz
Weitere Informationen
Sonstiges
Haftung:
Alle Angaben sind nach bestem Wissen und Gewissen erstellt. Unser Exposé ist als unverbindliche Information zu verstehen, welche auf den Angaben des Eigentümers oder Dritten basiert und kann nicht als Rechtsgrundlage herangezogen werden. Eine Haftung für die Richtigkeit und Vollständigkeit können wir...
Anbieter der Immobilie
Hellmuth Immobilien GmbH
Prinzenstraße 89, 34225 Baunatal

Online-ID: 2l72g5x
Referenznummer: 164
Finde Angebote wie dieses
Hier geht es zu unserem Impressum, den Allgemeinen Geschäftsbedingungen, den Hinweisen zum Datenschutz und nutzungsbasierter Online-Werbung.