

Schlaugk Haus und Wohnen GmbH
Frau Claudia Aigner
+49 ···
Nr. anzeigenPreise & Kosten
Kaution
9.660 €
Provision für Mieter
provisionsfrei
Warum sehe ich diese Anzeige? – Du siehst diese Anzeige basierend auf Ihrer Navigation auf unserer Website und den Suchkriterien, die du verwendet hast.
Lage
Das Objekt befindet sich in der Randgemeinde Germering, im Münchener Westen. In wenigen Fahrminuten über die Bundesautobahn A 96 von München aus erreichbar.
S-Bahnstation Germering-Unterpfaffenhofen der Linie S8 ( in der Hauptverkehrszeit zusätzlich S5, dann annähernder 10- statt 20-Minuten -Takt) ca. 10 Gehminuten vom...
Büro-/Praxisfläche
Kategorie
Bürofläche
Bezug
nach Vereinbarung
Details
Objektbeschreibung
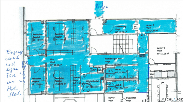
Bei diesem Objekt wird ein Teil einer Bürofläche - 230 qm - zur Untermiete angeboten. Die Gespräche werden direkt mit dem Hauptmieter geführt. Die Räumlichkeiten sind nach Absprache beziehbar.
Es können auch kleinere Flächen nach Absprache angemietet werden.
Das 1983 erbaute Gebäude, welches im Jahr 1997...
Ausstattung
Großraumbüro, Kombi-, Einzel-als auch Shared-Space-Büros möglich
Effiziente Grundrisse mit der Möglichkeit zur Umsetzung einer flexiblen Raumaufteilung und verschiedenster Arbeitsplatzkonzepte
Übernahme der Mietfläche im Ist-Zustand, bzw. nach Absprache teilweise möbliert
Tiefgaragenparkplätze können über den...
Weitere Informationen
Sonstiges
HAFTUNGSAUSSCHLUSS:
Wir weisen darauf hin, dass die von uns weitergegebenen Objektinformationen, Unterlagen, Pläne etc. vom Verkäufer bzw. Vermieter stammen. Eine Haftung für die Richtigkeit oder Vollständigkeit der Angaben übernehmen wir daher nicht. Es obliegt daher unseren Kunden, die darin enthaltenen...
Anbieter der Immobilie

Online-ID: 2l74b5l
Referenznummer: SHW 20
Finde Angebote wie dieses
Hier geht es zu unserem Impressum, den Allgemeinen Geschäftsbedingungen, den Hinweisen zum Datenschutz und nutzungsbasierter Online-Werbung.