
IMMOTOTAL Immobilientreuhand GmbH
Herr Michael Spiess
+43 ···
Nr. anzeigenPreise & Kosten
Provision für Käufer
3% des Kaufpreises zzgl. 20% USt.
Lage
Wolfersberg
Das Haus
Kategorie
Einfamilienhaus
Bezug
ab sofort
Energie & Heizung
Warum sehe ich diese Anzeige? – Du siehst diese Anzeige basierend auf Ihrer Navigation auf unserer Website und den Suchkriterien, die du verwendet hast.
Heizwärmebedarf (HWB)
37,10 kWh/(m²·a)
Gesamtenergieeffizienz (fGEE)
0,68
Weitere Energiedaten
Haustyp
Massivhaus, Niedrigenergiehaus
Heizungsart
Fußbodenheizung, Luft-/Wasser-Wärmepumpe
Details
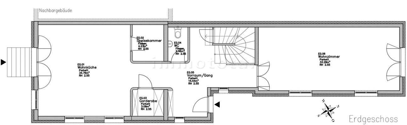
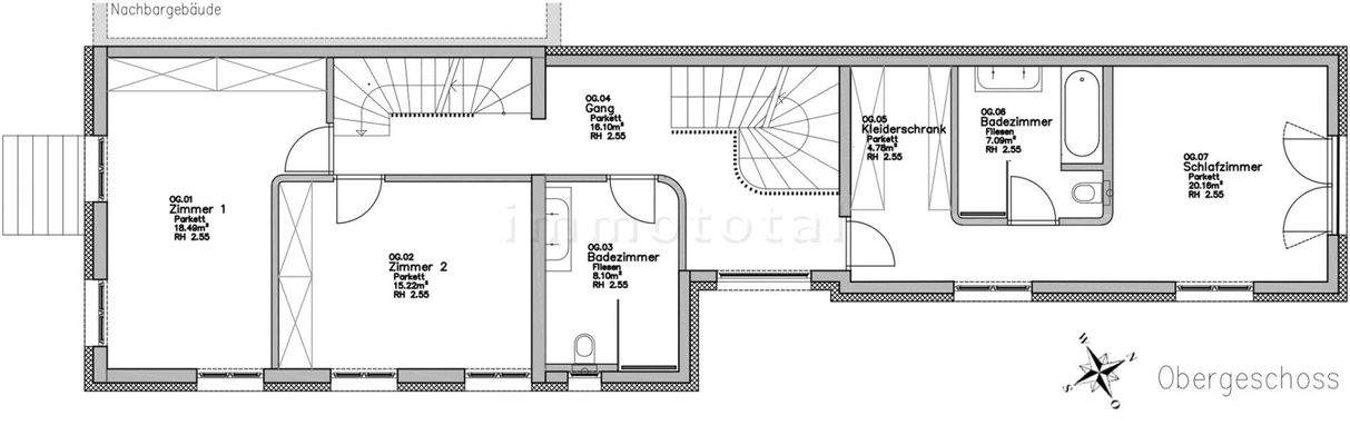
Objektbeschreibung
Am Fuße des Wolfersberges, situiert in einer traumhaften Mikrolage mit Fernblick auf den Kordon und den Wolfersberg, wurde eine architektonische Besonderheit auf vier Ebenen mit ~280 m² Nutzfläche geschaffen.
Die großzügigen Glasflächen und das offene Raumkonzept lassen die Villa den ganzen Tag über von hellem...
Preisinformation
1 Garagenstellplatz
Weitere Informationen
Sonstiges
IMMOTOTAL | 360°-VR Rundgang - https://www.immototal.at/360/881
Stichworte
Garage vorhanden, Ost-Süd-Ost-Balkon/Terrasse, Nutzfläche: 280,00 m², Anzahl der Badezimmer: 3, Anzahl der separaten WCs: 5, Anzahl Terrassen: 3, Bundesland: Wien, 4 Etagen
Anbieter der Immobilie
IMMOTOTAL Immobilientreuhand GmbH
Schwedenplatz 2/51, 1010 WIEN
Online-ID: 2l7fg5b
Referenznummer: OBGC2024032803150894984bca4b092
Finde Angebote wie dieses
Günstige Immobilienfinanzierung einfach online berechnen
Persönliches Angebot berechnenWarum sehe ich diese Werbung? – Du siehst diese Werbung basierend auf Deiner Navigation auf unserer Website und der von Dir verwendeten Suchkriterien.
Diese Werbung wird bezahlt von durchblicker
Werbung melden
Hier geht es zu unserem Impressum, den Allgemeinen Geschäftsbedingungen, den Hinweisen zum Datenschutz und nutzungsbasierter Online-Werbung.