Version: 8.25.1Navigation überspringen
325.000 €
3 Zimmer  •  66,6 m²  •  2. Geschoss
Immowelt logo

Wohnung zum Kauf - Erstbezug
325000 €
4.882 €/m²
3 Zimmer  •  66,6 m²  •  2. Geschoss

++NEU++ 3-Zimmer-Altbauwohnung mit Top-Grundriss

Zum Verkauf steht eine ca. 66 m² große, neu renovierte Wohnung gelegen in einer begehrten Lage des 15. Wiener Gemeindebezirks.

Mehrere Einheiten verfügbar!

-------------------------

BESICHTIGUNG VEREINBAREN

Um einen Besichtigungstermin zu vereinbaren, senden Sie uns bitte eine schriftliche Anfrage. Wir antworten zuverlässig noch am selben Tag!

-------------------------

OBJEKTDETAILS

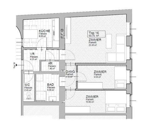
RÄUMLICHKEITEN _(2. ETAGE - TREPPENHAUS 1, TOP 16)_

* Vorzimmer
* Kochnische
* separates WC
* Badezimmer mit Dusche
* Wohnzimmer 
* Schlafzimmer
* Kabinett

Hinweis: Siehe Grundriss und aktuelle Fotodokumentation.

-------------------------

ZUSTAND

Die Wohnung ist neu renoviert und bezugsfertig.

Zusätzlich stehen weitere Einheiten in diesem Gebäude zum Verkauf.

Stiege 1

EBENE
TOP
ZIMMER
WNF. M²
ZUSTAND
 PREIS 

EG
3
1
30,07
unsaniert
VERKAUFT

2.OG
12
2
44,66 + 3,60 Balkon 
saniert
VERKAUFT

2.OG
13
1
35,86 + 3,60 Balkon
saniert
VERKAUFT

2.OG
16
3
66,57
saniert
          325 000

 

Stiege 2

EBENE
TOP
ZIMMER
WNF. M²
ZUSTAND
 PREIS 

EG (hofseitig)
5
1
32,00
unsaniert
VERKAUFT

EG (hofseitig) 
19
2
48,84
unsaniert
VERKAUFT

2.OG
23
1
33,45 + 7,70 Balkon
unsaniert
VERKAUFT

 

DAS GEBÄUDE

* Baujahr: 1900
* Gelegen in der 2. Etage eines vor einigen Jahren sanierten Altbauhauses in der Arnsteingasse, nahe der äußeren Mariahilferstraße
* Aufzug
* Das Gebäude verfügt über einen schönen Garten und Kellerräume

-------------------------

LAGE-HIGHLIGHTS

Die Wohnung befindet sich in der Arnsteingasse 1150 Wien, und bietet eine ruhige Umgebung.

In der Nähe befinden sich:

* Geschäfte des täglichen Bedarfs (Lebensmittel, Restaurants, Bekleidungsgeschäfte, Apotheken, Banken)
* Verschiedene Arztpraxen

Detaillierte Informationen entnehmen Sie bitte dem Lageplan.

-------------------------

VERKEHRSANBINDUNG

Die Wohnung ist hervorragend angebunden an das Wiener öffentliche Verkehrsnetz:

* U-Bahn: U6 (Gumpendorferstraße) U3 (Westbahnhof)
* Buslinien: 12A
* Straßenbahn: 5, 9, 18, 49, 52, 60

Die Wiener Innenstadt ist in nur 25 Minuten erreichbar.
Kindergärten, Schulen und Universitäten sind ebenfalls ideal angebunden.

-------------------------

KAUFPREIS

Der lastenfreie Verkaufspreis für diese Wohnung beträgt € 325.000.

monatliche Kosten:
Betriebskosten inkl. Rücklage: ca. € 230,00

-------------------------

VERTRAGSERRICHTUNG UND ABWICKLUNG

Die Vertragserrichtung und Abwicklung erfolgt durch:
Mag. Alexandra Serek
Fichtegasse 2A, 1010 Wien

Kosten: 1,5% plus Barauslagen plus 20% USt

 

Sollten Sie Fragen haben oder einen persönlichen Beratungstermin wünschen, zögern Sie bitte nicht mich zu kontaktieren!

Der IMMY ist die renommierteste Auszeichnung für Wiener Makler- und Verwalterbetriebe im Bereich Wohnimmobilien. Wir sind stolz den goldenen IMMY für das Jahr 2019 gewonnen zu haben!

Vielen Dank vor allem an unsere Kunden! Unser Unternehmen wurde auch zum Besten Start Up und in den Jahren 2015, 2018, 2019 und 2020 als Qualitätsmakler ausgezeichnet!

Nicht alle unsere Immobilien finden Sie auf den gängigen Plattformen. Wir freuen uns auf Ihren Besuch auf unserer Homepage unter adonia.at 

Wir weisen ausdrücklich auf unser wirtschaftliches Naheverhältnis mit dem Abgeber/ der Abgeberin hin!  Unsere gesetzlichen Pflichten als Doppelmakler werden dadurch jedoch nicht beeinträchtigt. Irrtum und Änderungen vorbehalten.

Alle hier veröffentlichen Informationen basieren auf den uns von dem Abgeber/ der Abgeberin zur Verfügung gestellten Informationen und wurden nicht selbst erhoben.

Unsere Allgemeinen Geschäftsbedingungen können Sie sowohl in dem Ihnen zugesandten Expose einsehen als auch auf unserer Homepage. Wir weisen ausdrücklich darauf hin, dass diese AGBs Vertragsinhalt werden.

Der Schutz von personenbezogenen Daten ist uns wichtig und auch gesetzlich gefordert. Die Verarbeitung Ihrer personenbezogenen Daten erfolgt nach den datenschutzrechtlichen Bestimmungen. Auf unserer Homepage (unter Datenschutzinformation) finden Sie eine Übersicht die Sie über die wichtigsten Aspekte der Verarbeitung personenbezogener Daten informieren soll.

Wir weisen darauf hin, dass zwischen dem Vermittler und dem zu vermittelnden Dritten ein familiäres oder wirtschaftliches Naheverhältnis besteht.

Der Vermittler ist als Doppelmakler tätig.

Infrastruktur / Entfernungen

Gesundheit
Arzt <500m
Apotheke <500m
Klinik <500m
Krankenhaus <1.500m

Kinder & Schulen
Schule <500m
Kindergarten <500m
Universität <500m
Höhere Schule <1.000m

Nahversorgung
Supermarkt <500m
Bäckerei <500m
Einkaufszentrum <1.000m

Sonstige
Geldautomat <500m
Bank <500m
Post <500m
Polizei <500m

Verkehr
Bus <500m
U-Bahn <500m
Straßenbahn <500m
Bahnhof <500m
Autobahnanschluss <4.000m

Angaben Entfernung Luftlinie / Quelle: OpenStreetMap

Merkmale

  • Bezug: ab sofort
  • 2. Geschoss
  • voll erschlossen
  • Personenaufzug
  • Bad mit Dusche
  • Kabelanschluss

Grundrisse

Grundrisse
1 / 1

Bausubstanz und Energie

Heizwärmebedarf (HWB)

B

Gesamtenergieeffizienz (fGEE)

C
  • Baujahr1900
  • Zustand der ImmobilieAltbau (bis 1945), Erstbezug
  • HeizungsartEtagenheizung
  • EnergieträgerGas
Immowelt logo

Preisdetails

Kaufpreis
325000 €
4.882,08 €/m²
Provision für Käufer
11.700,00 € inkl. 20% USt.

Lage

address-icon
Wien (1150)

Weitere Informationen

Stichworte Nutzfläche: 66,57 m², Anzahl der Badezimmer: 1, Anzahl der separaten WCs: 1, Bundesland: Wien, modernisiert: 2025

Weitere Services

Lust auf eine Besichtigung?
Eine Frage zur Immobilie?
Nachricht hinzufügen
Mit der Nutzung der oben angegebenen Telefonnummer oder durch Klicken auf „Kontaktieren“ akzeptierst Du die Allgemeinen Nutzungsbedingungen, denen Du jederzeit widersprechen kannst. Weitere Informationen zum Datenschutz

Über den Anbieter

Hohenstaufengasse 9/2, 1010 WIEN
Herr Ari AbramovDein Kontakt
Online-ID: 25NG9NEADXYJ
Referenznummer: OBGC202502062113416525843985528
Wie zufrieden bist du mit dieser Seite (nicht mit der Immobilie selbst)?