




Haus zum Kauf1590000 €7.098 €/m²6 Zimmer • 224 m² • 3.888 m² Grundstück
1590000 €
7.098 €/m²
6 Zimmer • 224 m² • 3.888 m² Grundstück
Historisches Landhaus- Luxusresidenz mit einzigartigem Charakter
Merkmale
- 2 Geschosse
- 3.888 m² Grundstück
- Kelleranteil
- 2 Stellplätze
- Gäste-WC
- Garten
- möbliert
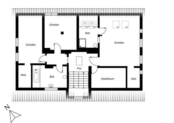
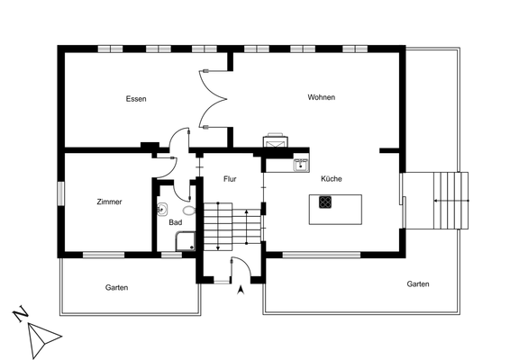
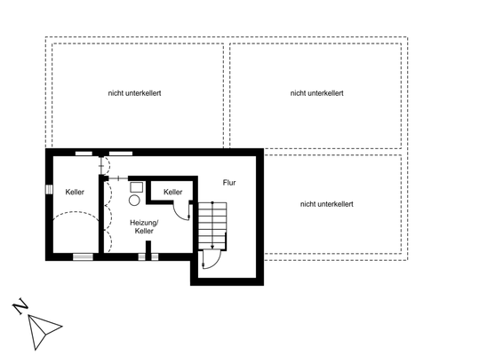
Grundrisse
Grundrisse
1 / 5
Realisiere Dein Projekt
Bausubstanz und Energie
Energieausweis
F
- Baujahr1890
- EnergieträgerGas
Preisdetails
Kaufpreis
1590000 €
7.098,21 €/m²
Provision für Käufer
Weitere Informationen siehe Provisionshinweis.
Geschätzte Gesamtkosten
1.781.913 €1
Kaufpreis
1.590.000 €
Kaufnebenkosten
191.913 €
2Notarkosten (1,5%)
23.850 €
Grunderwerbsteuer (6,5%)
103.350 €
Provision für Käufer (3,57%)
56.763 €
Grundbucheintrag (0,5%)
7.950 €
1Der angezeigte Wert ist eine automatisch berechnete Schätzung von immowelt.
2Bei den Angaben handelt es sich um ortsübliche Werte. Individuelle Kosten können abweichen.
Lage

Altlewin (15320)
Der Anbieter hat die genaue Adresse nicht freigegeben
Weitere Informationen
Weitere Services
Lust auf eine Besichtigung?
Eine Frage zur Immobilie?
Über den Anbieter
Hohenzollerndamm 114, 14199 Berlin
Partnerschaft
Engel & Völkers Berlin-Brandenburg MMCDein Kontakt
Online-ID: 2l8hq5h
Referenznummer: I-0469CG-W-0469CG
Wie zufrieden bist du mit dieser Seite (nicht mit der Immobilie selbst)?




