
Raiffeisen Immobilien Vermittlung GmbH
Herr Walter Haider
+43 ···
Nr. anzeigenPreise & Kosten
Provision für Käufer
3% des Kaufpreises plus 20% USt.
Lage
Die kleine Stadt Purbach am Neusiedlersee liegt eingebettet zwischen Leithagebirge und Neusiedlersee im Nordburgenland. Weinkultur, Gastfreundlichkeit und die Schönheit der Landschaft verleihen dieser Gemeinde ihren natürlichen Charme.
Die Landeshauptstadt Eisenstadt, sowie die Autobahnanschlussstelle erreichen Sie mit...
Das Haus
Kategorie
Einfamilienhaus
Baujahr
1900
Bezug
Nach Vereinbarung
Energie & Heizung
Warum sehe ich diese Anzeige? – Du siehst diese Anzeige basierend auf Ihrer Navigation auf unserer Website und den Suchkriterien, die du verwendet hast.
Heizwärmebedarf (HWB)
83,00 kWh/(m²·a)
Gesamtenergieeffizienz (fGEE)
1,06
Weitere Energiedaten
Energieträger
Gas
Heizungsart
Fußbodenheizung
Details
Objektbeschreibung
Kurzbeschreibung
Dieses Haus erzählt Geschichten aus der Vergangenheit und bietet gleichzeitig den Komfort der Gegenwart
Objekt
Historisches Haus mit modernem Komfort. Ein Juwel für Liebhaber besonderer Immobilien. Lassen Sie sich von der einzigartigen Kombination aus Alt und Neu verzaubern und vereinbaren Sie...
Weitere Informationen
Stichworte
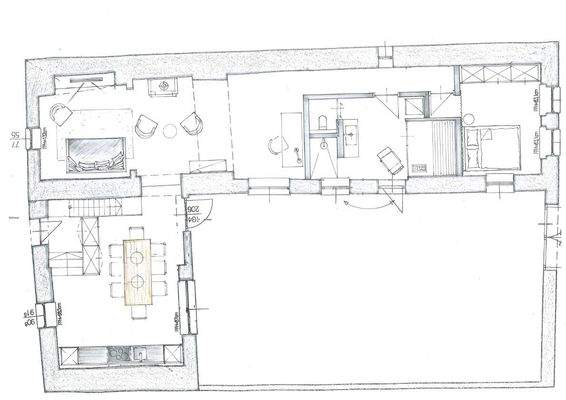
Gesamtfläche: 241,00 m², Anzahl der Schlafzimmer: 2, Anzahl der Badezimmer: 1, Anzahl der separaten WCs: 2, Anzahl Terrassen: 1, Gartenfläche: 108,00 m², Bundesland: Burgenland
Anbieter der Immobilie
Online-ID: 2l8x25v
Referenznummer: 0001010831
Finde Angebote wie dieses
Günstige Immobilienfinanzierung einfach online berechnen
Persönliches Angebot berechnenWarum sehe ich diese Werbung? – Du siehst diese Werbung basierend auf Deiner Navigation auf unserer Website und der von Dir verwendeten Suchkriterien.
Diese Werbung wird bezahlt von durchblicker
Werbung melden
Hier geht es zu unserem Impressum, den Allgemeinen Geschäftsbedingungen, den Hinweisen zum Datenschutz und nutzungsbasierter Online-Werbung.