
Flori Immobilien GmbH & Co. KG
Frau Jana Adaneff-Zimmer
004 ···
Nr. anzeigenPreise & Kosten
Provision für Käufer
Bitte beachte, das Angebot kann bei Vertragsabschluss die Zahlung einer Provision beinhalten. Weitere Informationen erhältst Du vom Anbieter.
Lage
Das attraktive Gebäudeensemble SEE GARTEN entsteht in Starnberg im Ortsteil Söcking in einem ruhigen, gepflegten Wohngebiet, das durch seine exklusive und familienfreundliche Nachbarschaft besticht.
Die charmante Stadt ist bekannt für ihre außergewöhnliche Lebensqualität, die fantastische Anbindung an die bayrische...
Das Haus
Kategorie
Einfamilienhaus
Baujahr
2027
Bezug
01.07.2027
Energie & Heizung
Warum sehe ich diese Anzeige? – Du siehst diese Anzeige basierend auf Ihrer Navigation auf unserer Website und den Suchkriterien, die du verwendet hast.
Weitere Energiedaten
Haustyp
Massivhaus
Heizungsart
Luft-/Wasser-Wärmepumpe, offener Kamin
Details
Objektbeschreibung
Willkommen in Ihrem zukünftigen neuen Zuhause im begehrten Starnberg/Söcking.
Dieses beeindruckende Einfamilienhaus wird Teil des exklusiven Bauprojekts SEE GARTEN, das durch seine zeitgemäße großzügige Architektur und hochwertige Bauausführung besticht.
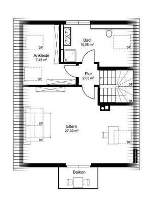
Auf einer Wohnfläche von ca. 225,57 m² mit schönem Garten...
Ausstattung
- bodentiefe Holz/Alufenster mit dreifach Isolierverglasung
- hochwärmedämmendes Ziegelmauerwerk
- Balkone und Terrassen aus Thermo-Esche
- Luft-Wasser-Wärmepumpe
- Fußbodenheizung
- Anschluss für Kaminofen
- hochwertiger Parkett Boden
- Bad und WC mit großformatigem Feinsteinzeug
- Bad...
Weitere Informationen
Sonstiges
Bitte haben Sie Verständnis, dass wir nur Anfragen mit vollständig angegebener Adresse und Telefonnummer bearbeiten können.
Sämtliche Fotos, Texte und grafische Darstellungen sind Eigentum der Flori Immobilien GmbH & Co. KG und dürfen nicht von Dritten verwendet oder weitergegeben...
Anbieter der Immobilie
Online-ID: 2la7w5s
Referenznummer: 2950
Finde Angebote wie dieses
Hier geht es zu unserem Impressum, den Allgemeinen Geschäftsbedingungen, den Hinweisen zum Datenschutz und nutzungsbasierter Online-Werbung.