
Jena Immobilien König GmbH
036 ···
Nr. anzeigenPreise & Kosten
Provision für Käufer
3,57% inkl. MwSt.
Lage
1A-Lage
Die Gewerbeeinheit befindet sich in zentraler Lage von Jena, direkt im Stadtzentrum, und bietet dadurch eine hervorragende Ausgangsposition für Büro- und Geschäftstätigkeiten. Die Lage überzeugt durch eine exzellente Anbindung an den öffentlichen Nahverkehr. Bus- und Straßenbahnhaltestellen sind fußläufig...
Büro-/Praxisfläche
Kategorie
Bürofläche
Baujahr
1999
Energie & Heizung
Warum sehe ich diese Anzeige? – Du siehst diese Anzeige basierend auf Ihrer Navigation auf unserer Website und den Suchkriterien, die du verwendet hast.
Energieausweistyp
Verbrauchsausweis
Gebäudetyp
Nicht-Wohngebäude
Gültigkeit
bis 20.02.2030
Endenergieverbrauch (Wärme)
83,90 kWh/(m²·a)
Weitere Energiedaten
Energieträger
Fernwärme
Details
Objektbeschreibung
Kurzbeschreibung
Flexibles Investment - Bürofläche mit Option zur Umnutzung in hochwertige Wohnungen
Objekt
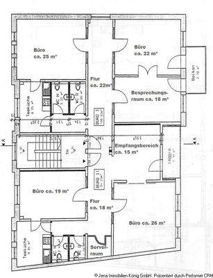
Die hier angebotene Gewerbeeinheit befindet sich im 1. Obergeschoss und erstreckt sich über eine Fläche von ca. 200 m². Sie überzeugt durch ihre großzügige Aufteilung, die hellen und freundlichen Räume...
Anbieter der Immobilie
Online-ID: 2lam35d
Referenznummer: 35593335
Finde Angebote wie dieses
Hier geht es zu unserem Impressum, den Allgemeinen Geschäftsbedingungen, den Hinweisen zum Datenschutz und nutzungsbasierter Online-Werbung.