
Dück Immobilien
Frau Irina Dück
004 ···
Nr. anzeigenPreise & Kosten
Provision für Käufer
3,57
Lage
Die Immobilie befindet sich in ruhiger Lage im Ortsteil Gethsemane, einem kleinen, naturnahen Teil der Gemeinde Philippsthal (Werra) im Landkreis Hersfeld-Rotenburg. Der Ort ist ländlich geprägt, sehr überschaubar und umgeben von Wiesen, sanften Hügeln und lockeren Waldflächen - typisch für die Randlage der Rhön.
Die Lage...
Das Haus
Kategorie
Mehrfamilienhaus
Baujahr
2004
Energie & Heizung
Warum sehe ich diese Anzeige? – Du siehst diese Anzeige basierend auf Ihrer Navigation auf unserer Website und den Suchkriterien, die du verwendet hast.
Energieausweistyp
Bedarfsausweis
Gebäudetyp
Wohngebäude
Baujahr laut Energieausweis
2004
Wesentliche Energieträger
OEL
Gültigkeit
bis 07.02.2035
Effizienzklasse
E
Endenergiebedarf
135,00 kWh/(m²·a)
Weitere Energiedaten
Energieträger
Öl
Details
Objektbeschreibung
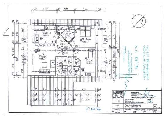
Das im Jahr 2004 massiv erbaute Wohnhaus bietet zwei vollständig getrennte Wohneinheiten mit identischem Grundriss im Erd- und Obergeschoss.
Beide Ebenen verfügen über ein abgeschlossenes Treppenhaus, was eine klare Trennung ermöglicht - ideal für Mehrgenerationenwohnen oder Teilvermietung.
Die Wohnungen bestehen...
Ausstattung
Gebäude Wohnhaus:
- Isolierglasfenster mit Rollos aus dem Baujahr
- Ölniedertemperaturheizung aus dem Baujahr
- Photovoltaikanlage im Jahr 2006 installiert mit 6,3 kwp
- westliche Giebelseite mit Blechschindeln verkleidet
Kellergeschoss:
- Ziegelsteinmauerwerk
- Stahlbetondecke
-...
Weitere Informationen
Sonstiges
Die vorgenannten Angaben sollen dazu dienen, Ihnen eine Übersicht über die wesentlichen Rahmenbedingungen des Objekts zu geben.
Gerne stehen wir Ihnen für Fragen jederzeit zur Verfügung.
Unser Angebot wurde von uns aufgrund von Angaben und Unterlagen Dritter, insbesondere des Verkäufers...
Anbieter der Immobilie
Dück Immobilien
Eichhofstr. 1, 36251 Bad Hersfeld
Online-ID: 2le9w5j
Referenznummer: 407
Finde Angebote wie dieses
Hier geht es zu unserem Impressum, den Allgemeinen Geschäftsbedingungen, den Hinweisen zum Datenschutz und nutzungsbasierter Online-Werbung.