
Seeber Immobilien SRL
Romina Leitner
+39 ···
Nr. anzeigenPreise & Kosten
Provision für Käufer
Bitte beachte, das Angebot kann bei Vertragsabschluss die Zahlung einer Provision beinhalten. Weitere Informationen erhältst Du vom Anbieter.
Die Wohnung
Wohnungslage
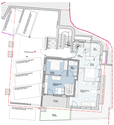
Erdgeschoss
Bezug
sofort
Wohnanlage
Energie & Heizung
Warum sehe ich diese Anzeige? – Du siehst diese Anzeige basierend auf Ihrer Navigation auf unserer Website und den Suchkriterien, die du verwendet hast.
Weitere Energiedaten
Energieträger
Fernwärme
Heizungsart
Fußbodenheizung
Details
Objektbeschreibung
Diese zentral gelegene Zweizimmerwohnung bietet mit einer Gesamtfläche von 86 qm ausreichend Platz. Im Erdgeschoss befindet sich ein gemütliches Schlafzimmer sowie ein modernes Badezimmer. Eine interne Treppe führt zu einem zusätzlichen Arbeitsraum, der ideal für Home-Office oder kreative Tätigkeiten ist, sowie zu einem...
Weitere Informationen
Stichworte
Gesamtfläche: 86,00 m², Verkaufsfläche: 86,00 m², Anzahl der Badezimmer: 1, Anzahl Terrassen: 1, Anzahl der Wohn-Schlafzimmer: 1, Bundesland: Hochpustertal, Gemeindecode: 021092, 3 Etagen
Anbieter der Immobilie
Seeber Immobilien SRL
Laubengasse 70, 39100 BOZEN
Online-ID: 2lfe75w
Referenznummer: BR02611
Finde Angebote wie dieses
Hier geht es zu unserem Impressum, den Allgemeinen Geschäftsbedingungen, den Hinweisen zum Datenschutz und nutzungsbasierter Online-Werbung.