

Ebner Versicherungs- und Immobiliemakler GmbH
Herr Patrick Häusler
+49 ···
Nr. anzeigenPreise & Kosten
Provision für Käufer
3,57 % inkl. 19 % MwSt.
Lage
Die Doppelhaushälfte befindet sich in ruhiger und familienfreundlicher Wohnlage in Ludwighafen´s beliebtem Stadtteil Oggersheim Melm.
Die Umgebung zeichnet sich durch eine gepflegte Nachbarschaft mit überwiegend Ein- und Zweifamilienhäusern aus und bietet eine ideale Kombination aus urbanem Komfort und naturnahem...
Das Haus
Kategorie
Doppelhaushälfte
Baujahr
1999
Energie & Heizung
Warum sehe ich diese Anzeige? – Du siehst diese Anzeige basierend auf Ihrer Navigation auf unserer Website und den Suchkriterien, die du verwendet hast.
Energieausweistyp
Bedarfsausweis
Gebäudetyp
Wohngebäude
Wesentliche Energieträger
Gas
Gültigkeit
bis 13.10.2035
Effizienzklasse
D
Endenergiebedarf
117,50 kWh/(m²·a)
Weitere Energiedaten
Energieträger
Gas
Details
Objektbeschreibung
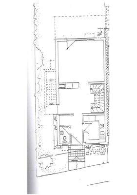
Diese moderne Doppelhaushälfte erstreckt sich über vier Etagen (KG, EG, OG, DG) und bietet ein komfortables Wohnen in bester Lage.
Das Erdgeschoss empfängt Sie mit einem praktischen Eingangsbereich. Von hier aus gelangen Sie in die Küche und in das separate Tageslicht-WC.
Über den Eingangsbereich erreichen Sie...
Ausstattung
- doppelt verglaste Kunststofffenster
- überdachte Terrasse
- separates Tageslicht-WC
- Solarmodule zur Stromerzeugung
- Einbauküche
- Treppenlift
- offene Holztreppe
- Balkon
- Tageslichtbad mit Wanne & Dusche
- Gasheizung auf dem Dachspeicher
-...
Preisinformation
1 Garagenstellplatz
Dokumente
Anbieter der Immobilie

Online-ID: 2lfhz5x
Referenznummer: 2036
Finde Angebote wie dieses
Hier geht es zu unserem Impressum, den Allgemeinen Geschäftsbedingungen, den Hinweisen zum Datenschutz und nutzungsbasierter Online-Werbung.