
Rudi Dräxler Immobilientreuhand GesmbH
Frau Verde Lenz
+43 ···
Nr. anzeigenPreise & Kosten
Provision für Käufer
3% des Kaufpreises zzgl. 20% USt.
Das Haus
Kategorie
Mehrfamilienhaus
Baujahr
1902
Bezug
n.V.
Energie & Heizung
Warum sehe ich diese Anzeige? – Du siehst diese Anzeige basierend auf Ihrer Navigation auf unserer Website und den Suchkriterien, die du verwendet hast.
Heizwärmebedarf (HWB)
87,00 kWh/(m²·a)
Gesamtenergieeffizienz (fGEE)
1,19
Weitere Energiedaten
Haustyp
Massivhaus
Energieträger
Gas
Heizungsart
Zentralheizung
Details
Objektbeschreibung
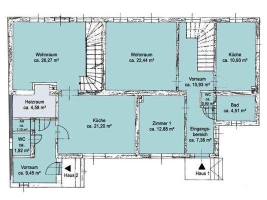
Die nach Südwesten ausgerichtete Liegenschaft liegt keine zwei Kilometer außerhalb der Wiener Stadtgrenze im Mauerbacher Ortsteil Untermauerbach. Das darauf befindliche Doppelhaus wurde ca. im Jahre 1983 erweitert.
Einkaufsmöglichkeiten, Ärzte sowie Kindergarten, Volksschule und Hort befinden sich in der Nähe und sind...
Preisinformation
1 Garagenstellplatz
Weitere Informationen
Stichworte
Garage vorhanden, Süd-West-Balkon/Terrasse, Anzahl der Badezimmer: 2, Anzahl der separaten WCs: 3, Anzahl Terrassen: 1, Balkon-Terrassen-Fläche: 14,00 m², Bundesland: Niederösterreich, modernisiert: 1983
Anbieter der Immobilie
Online-ID: 2lmt65g
Referenznummer: OBGC20250911101321720bc39e6a4b0
Finde Angebote wie dieses
Günstige Immobilienfinanzierung einfach online berechnen
Persönliches Angebot berechnenWarum sehe ich diese Werbung? – Du siehst diese Werbung basierend auf Deiner Navigation auf unserer Website und der von Dir verwendeten Suchkriterien.
Diese Werbung wird bezahlt von durchblicker
Werbung melden
Hier geht es zu unserem Impressum, den Allgemeinen Geschäftsbedingungen, den Hinweisen zum Datenschutz und nutzungsbasierter Online-Werbung.