
Astrid Schäfer Immobilien
Kontaktiere den Anbieter schriftlich, es ist keine Telefonnummer hinterlegt.
Preise & Kosten
Provision für Mieter
provisionsfrei
Abschreibung/Anlage
Denkmalschutz-Afa
Warum sehe ich diese Anzeige? – Du siehst diese Anzeige basierend auf Ihrer Navigation auf unserer Website und den Suchkriterien, die du verwendet hast.
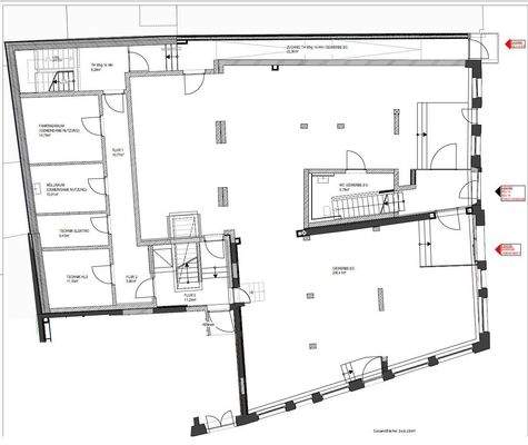
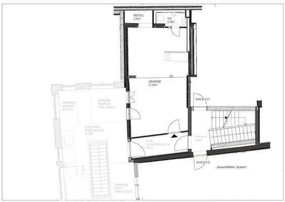
Die Ladenfläche
Kategorie
Verkaufsfläche
Details
Objektbeschreibung
Lage: Altstadt Konstanz, Fußgängerzone am Bodanplatz
Hochwertige Gewerbefläche im Erdgeschoss, teilbar, offene Grundstruktur, flexible Raumaufteilung möglich
Büroraum, Pausenraum/Teeküche, WC im 1. OG
Generalsanierung von drei denkmalgeschützten Gebäuden
Besonderheiten: Teilweise sichtbare alte Gebäudesubstanz im...
Weitere Informationen
Stichworte
Bundesland: Baden-Württemberg
Anbieter der Immobilie
Astrid Schäfer Immobilien
Fritz-Arnold-Str. 16, 78467 Konstanz
Kontaktiere den Anbieter schriftlich, es ist keine Telefonnummer hinterlegt.
Online-ID: 2lmzz5w
Referenznummer: 3848498
Finde Angebote wie dieses
Hier geht es zu unserem Impressum, den Allgemeinen Geschäftsbedingungen, den Hinweisen zum Datenschutz und nutzungsbasierter Online-Werbung.