
Immobilienbüro – OWL
Herr Drechshage Bernd
052 ···
Nr. anzeigenPreise & Kosten
Provision für Käufer
Keine Käuferprovision !!!!!!
Lage
Bünde mit zirka 45 tsd. Einwohner liegt in der Ravensberger Mulde zwischen Teutoburger Wald und Wiehengebirge, großenteils in den Flussniederungen der Else. Die nächstgelegenen Großstädte sind das 20 km südlich gelegene Bielefeld und das 30 km westlich gelegene Osnabrück.
An der modern gestalteten Fußgängerzone liegen...
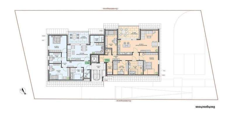
Die Wohnung
Bezug
2025
Wohnanlage
Energie & Heizung
Warum sehe ich diese Anzeige? – Du siehst diese Anzeige basierend auf Ihrer Navigation auf unserer Website und den Suchkriterien, die du verwendet hast.
Energieausweistyp
Bedarfsausweis
Gebäudetyp
Wohngebäude
Baujahr laut Energieausweis
2023
Wesentliche Energieträger
Strom Mix
Gültigkeit
03.05.2023 bis 03.05.1933
Effizienzklasse
A+
Endenergiebedarf
14,80 kWh/(m²·a)
Weitere Energiedaten
Energieträger
Elektro
Haustyp
KfW 40
Heizungsart
Fußbodenheizung, Luft-/Wasser-Wärmepumpe, Zentralheizung
Details
Objektbeschreibung
Nur noch drei Wohnungen frei !!!!!!!!
Wohnen für Menschen mit hohem Anspruch an eine individuelle und flexible Wohnkultur. Lichtdurchflutete, offene und funktionale Grundrisse und sorgfältige Detaillösungen sorgen für Ihre persönliche Wohnwelt.
Jede der 2-4 Zimmerwohnungen (die Raumaufteilung kann vor...
Weitere Informationen
Besuchstermine
Bei konkretem Interesse senden ich Ihnen die detaillierte Baubeschreibung zu.
Wir können sehr gerne einen Termin bei uns im Büro vereinbaren. Hier wurde auch die Planung für diese Immobilie durchgeführt.
Die Raumaufteilung kann vor Baubeginn von Ihnen noch individuallisiert...
Anbieter der Immobilie
Online-ID: 2lpcs5q
Referenznummer: 22102006.1
Finde Angebote wie dieses
Hier geht es zu unserem Impressum, den Allgemeinen Geschäftsbedingungen, den Hinweisen zum Datenschutz und nutzungsbasierter Online-Werbung.