

DGI | Daniel Gülke Immobilien
Herr Daniel Gülke
051 ···
Nr. anzeigenPreise & Kosten
Provision für Käufer
3,57% inkl. MwSt. Käuferprovision.
Lage
HAGEN - Die Großstadt Hagen ist eine kreisfreie Stadt im Ruhrgebiet, die auch oft als "das Tor zum Sauerland" betitelt wird. Bewohnt wird die Stadt von ungefähr 188.000 Menschen. Das Mehrfamilienhaus befindet sich recht zentral und doch ruhig gelegen im Stadtteil Oberhagen.
Viele Freizeitaktivitäten, wie u.a. ein Kino...
Das Haus
Kategorie
Mehrfamilienhaus
Baujahr
1970
Energie & Heizung
Warum sehe ich diese Anzeige? – Du siehst diese Anzeige basierend auf Ihrer Navigation auf unserer Website und den Suchkriterien, die du verwendet hast.
Energieausweistyp
Verbrauchsausweis
Gebäudetyp
Wohngebäude
Baujahr laut Energieausweis
1970
Wesentliche Energieträger
OEL
Gültigkeit
bis 10.01.2033
Effizienzklasse
E
Endenergieverbrauch
149,90 kWh/(m²·a)
Weitere Energiedaten
Energieträger
Öl
Heizungsart
Zentralheizung
Details
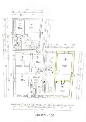
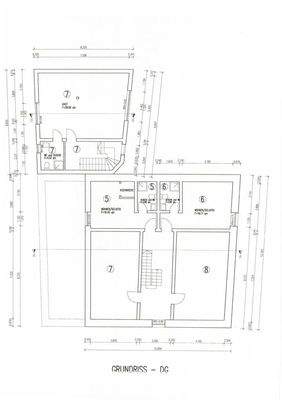
Objektbeschreibung
Bei diesem Angebot handelt es sich um ein Mehrfamilienhaus mit insgesamt elf Wohnparteien, welches in dem Jahr 1970* auf einem Grundstück von 371 m² errichtet wurde. Es besteht aus dem sogenannten Haupthaus und einem Hinterhaus, mit einer gemeinsamen Gesamtwohnfläche von ca. 491,53 m². Das Bauwerk ist voll unterkellert und...
Ausstattung
- 11 Wohneinheiten
- Öl-Zentralheizung (Bj. 2014)
- 7 Duschbäder
- 4 Wannenbäder
- Vollkeller
- Hinterhof
Weitere Informationen
Sonstiges
* Das Baujahr 1970 bezieht sich tendenziell auf das Hinterhaus. Das genaue Baujahr des Haupthauses ist derzeit nicht bekannt, wird aber grob auf 1930 geschätzt.
Besitzübergang nach Absprache.
Alle in diesem Exposé gemachten Angaben beruhen auf Aussage des Verkäufers. Aus diesem Grund wird keine...
Anbieter der Immobilie
DGI | Daniel Gülke Immobilien
Waldhausenstraße 2a, 30519 Hannover

Online-ID: 2lqag5e
Referenznummer: DG-2960
Finde Angebote wie dieses
Hier geht es zu unserem Impressum, den Allgemeinen Geschäftsbedingungen, den Hinweisen zum Datenschutz und nutzungsbasierter Online-Werbung.