

NAST Projektholding GmbH
Herrn René Nachtwey
041 ···
Nr. anzeigenPreise & Kosten
Provision für Käufer
provisionsfrei
Lage
Die Carl-Hermann-Richter-Straße 1 (durch die Stadt kürzlich umbenannt in Poststraße 39) befindet sich in der charmanten Hansestadt Buxtehude, die bekannt ist für ihre historische Altstadt, die malerischen Fleete und die hohe Lebensqualität. Ruhig und dennoch sehr zentral liegt die Poststraße im Norden Buxtehudes in direkter...
Die Wohnung
Wohnungslage
1. Geschoss (Erdgeschoss)
Bezug
2027
Wohnanlage
Energie & Heizung
Warum sehe ich diese Anzeige? – Du siehst diese Anzeige basierend auf Ihrer Navigation auf unserer Website und den Suchkriterien, die du verwendet hast.
Energieausweistyp
Bedarfsausweis
Gebäudetyp
Wohngebäude
Baujahr laut Energieausweis
2025
Wesentliche Energieträger
Luft-/Wasser-Wärmepumpe
Gültigkeit
29.04.2025 bis 28.04.2035
Effizienzklasse
A+
Endenergiebedarf
8,90 kWh/(m²·a)
Weitere Energiedaten
Haustyp
KfW 40
Heizungsart
Fußbodenheizung, Luft-/Wasser-Wärmepumpe
Details
Objektbeschreibung
Detaillierte Informationen zu diesem Neubau-Projekt im Zentrum von Buxtehude erhalten Sie auf unserer Homepage www.na-st.de sowie dem dort zum Downbload bereitstehenden, ausführlichen Projekt-Exposé.
Die hier zum Verkauf stehende Wohnung befindet sich in einem Neubau-Objekt mit 9 Wohneinheiten, das die...
Ausstattung
- Alle Wohnungen werden "bezugsfertig" übergeben
- Hochwertige Architektur renommierter BDA Architekten
- Großer Balkon zum Verweilen im Freien mit Echtholzbelag
- Die Wohnung ist barrierefrei und damit u. a. stufenlos zu erreichen
- WE4 kann so gestaltet werden, dass diese uneingeschränkt mit einem Rollstohl...
Weitere Informationen
Sonstiges
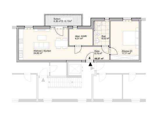
Hier angeboten wird die 2-Zimmer Wohnung WE 4 im Obergeschoss.
Bezugsfertigstellung voraussichtlich Weihnachten 2027. Fertigstellung der Außenanlage Frühjahr 2027.
Der Verkauf erfolgt provisionsfrei direkt vom Eigentümer. Ihr Vorteil liegt hierbei in dem direkten Kontakt zum Eigentümer sowie darin...
Dokumente
Anbieter der Immobilie
NAST Projektholding GmbH
Else-Klindworth-Straße 5, 21614 Buxtehude

Online-ID: 2lqt957
Referenznummer: PST 4
Finde Angebote wie dieses
Hier geht es zu unserem Impressum, den Allgemeinen Geschäftsbedingungen, den Hinweisen zum Datenschutz und nutzungsbasierter Online-Werbung.