

Hellmuth Immobilien GmbH
Herr Matthias Hempel
056 ···
Nr. anzeigenPreise & Kosten
Provision für Käufer
2,975 % inkl. MwSt.
Lage
Die Stadt Baunatal ist mit rund 28.000 Einwohnern die größte Stadt im Landkreis Kassel und liegt ca. 15 Kilometer süd-westlich der Stadt Kassel im Herzen Deutschlands. Neben der guten Verkehrsanbindung durch die Autobahnen A7, A44 und A49 und dem ICE Bahnhof in Kassel, ist Baunatal durch ein sehr gutes Netz des öffentlichen...
Die Wohnung
Wohnungslage
1. Geschoss
Wohnanlage
Energie & Heizung
Warum sehe ich diese Anzeige? – Du siehst diese Anzeige basierend auf Ihrer Navigation auf unserer Website und den Suchkriterien, die du verwendet hast.
Energieausweistyp
Bedarfsausweis
Gebäudetyp
Wohngebäude
Baujahr laut Energieausweis
2014
Wesentliche Energieträger
GAS
Effizienzklasse
A
Endenergiebedarf
45,60 kWh/(m²·a)
Weitere Energiedaten
Energieträger
Gas
Heizungsart
Zentralheizung
Details
Objektbeschreibung
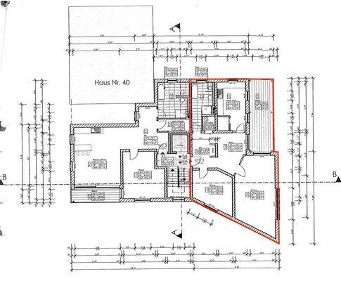
Diese großzügige Wohnung im 1. Obergeschoss eines modernen Mehrfamilienhauses aus dem Jahr 2014 bietet auf ca. 106?m² Wohnfläche ein komfortables und gut durchdachtes Zuhause.
Zur Wohnung gehören:
- Heller Wohnbereich mit Zugang zum großen Ostbalkon
- Separate Küche mit praktischer Speisekammer
-...
Preisinformation
1 Stellplatz
1 Garagenstellplatz, Kaufpreis: 17.500,00 EUR
Weitere Informationen
Sonstiges
Haftung:
Alle Angaben sind nach bestem Wissen und Gewissen erstellt. Unser Exposé ist als unverbindliche Information zu verstehen, welche auf den Angaben des Eigentümers oder Dritten basiert und kann nicht als Rechtsgrundlage herangezogen werden. Eine Haftung für die Richtigkeit und Vollständigkeit können wir...
Anbieter der Immobilie
Hellmuth Immobilien GmbH
Prinzenstraße 89, 34225 Baunatal

Online-ID: 2lt4g5x
Referenznummer: 162
Finde Angebote wie dieses
Hier geht es zu unserem Impressum, den Allgemeinen Geschäftsbedingungen, den Hinweisen zum Datenschutz und nutzungsbasierter Online-Werbung.