


1 / 33



1 / 33
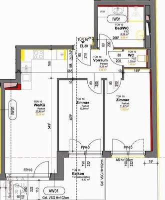
Wohnung zum Kauf349000 €349.000 €6.296 €/m²3 Zimmer • 55,4 m² • 2. Geschoss
349000 €349.000 €
6.296 €/m²
3 Zimmer • 55,4 m² • 2. Geschoss
+ Sicher investieren - charmante Wohnungen mit solidem Mietertragspotenzial
Modernes Wohnen in hochwertiger Architektur
In einer ruhigen und dennoch gut angebundenen Lage im 22. Bezirk entstehen 19 exklusive Neubauwohnungen, die höchsten Wohnkomfort mit moderner Ausstattung verbinden. Die durchdachten Grundrisse, hochwertige Materialien und energieeffiziente Bauweise machen dieses Wohnprojekt zu einer idealen Investition - ob für Eigennutzer oder Anleger.
Highlights der Wohnungen:
. Moderne Architektur mit effizienter Raumaufteilung
. Wohnflächen von ca. 37 m² bis 89 m²
. Jede Wohnung mit Balkon, Terrasse oder Garten
. Hochwertige Parkettböden und elegante Feinsteinzeugfliesen
. Fußbodenheizung für angenehmen Wohnkomfort
. 3-fach verglaste Fenster mit Raffstores für optimale Dämmung
. Exklusive Sanitärausstattung mit Markenprodukten
. Energieeffiziente Bauweise mit moderner Heiztechnik
Wohnungsübersicht mit individuellen Details:
Erdgeschoss
TOP 1 - 2-Zimmer-Wohnung mit Garten (Verkauft)
. Wohnfläche: ca. 42,05?m²
. Zimmer: 2
. Terrasse: ca. 8,23?m²
. Garten: ca. 44,38?m²
. Preis: 219.000?€
Anlegerpreis Netto: € 200.200,-.
TOP 2 - 2-Zimmer-Wohnung mit Garten (Verkauft)
. Wohnfläche: ca. 48,02?m²
. Zimmer: 2
. Terrasse: ca. 9?m²
. Garten: ca. 32,33?m²
. Preis: 249.000?€
Anlegerpreis Netto: € 231.450,-
TOP 3 - 4-Zimmer-Wohnung mit Garten
. Wohnfläche: ca. 89,04?m²
. Zimmer: 4
. Terrasse: ca. 7,07?m²
. Garten: ca. 42,51?m²
. Preis: 469 000?€
Anlegerpreis Netto: € 443 800,-.
1. Obergeschoss
TOP 4 - 2-Zimmer-Wohnung mit Loggia (Verkauft)
. Wohnfläche: ca. 42,82?m²
. Zimmer: 2
. Loggia: ca. 2,97?m²
. Preis: 219.000?€
Anlegerpreis Netto: € 209.975,-.
TOP 5 - 3-Zimmer-Wohnung mit Balkon (Verkauft)
. Wohnfläche: ca. 55,56?m²
. Zimmer: 3
. Balkon: ca. 9,40?m²
. Preis: 319.000?€
Anlegerpreis Netto: € 305.965,-.
TOP 6 - 3-Zimmer-Wohnung mit Balkon (Verkauft)
. Wohnfläche: ca. 56,49?m²
. Zimmer: 3
. Balkon: ca. 9,40?m²
. Preis: 319.000?€
Anlegerpreis Netto: € 305.715,-.
TOP 7 - 2-Zimmer-Wohnung mit Loggia (Verkauft)
. Wohnfläche: ca. 40,74?m²
. Zimmer: 2
. Loggia: ca. 2,86?m²
. Preis: 215.000?€
Anlegerpreis Netto: € 206.480,-.
TOP 8 - 2-Zimmer-Wohnung mit Loggia (Verkauft)
. Wohnfläche: ca. 37,40?m²
. Zimmer: 2
. Loggia: ca. 5,91?m²
. Preis: 199.000?€
Anlegerpreis Netto: € 190.480,-.
2. Obergeschoss
TOP 9 - 2-Zimmer-Wohnung mit Loggia (reserviert)
. Wohnfläche: ca. 42,68?m²
. Zimmer: 2
. Loggia: ca. 2,97?m²
. Preis: 229.000?€
Anlegerpreis Netto: € 219.975,-
TOP 10 - 3-Zimmer-Wohnung mit Balkon
. Wohnfläche: ca. 55,43?m²
. Zimmer: 3
. Balkon: ca. 9,40?m²
. Preis: 349.000?€
Anlegerpreis Netto: € 333.300,-
TOP 11 - 3-Zimmer-Wohnung mit Balkon
. Wohnfläche: ca. 56,46?m²
. Zimmer: 3
. Balkon: ca. 9,40?m²
. Preis: 349.000?€
Anlegerpreis Netto: € 333.000,-.
TOP 12 - 2-Zimmer-Wohnung mit Loggia (Verkauft)
. Wohnfläche: ca. 40,68?m²
. Zimmer: 2
. Loggia: ca. 2,86?m²
. Preis: 219.000?€
Anlegerpreis Netto: € 210.225,-.
TOP 13 - 2-Zimmer-Wohnung mit Loggia (Verkauft)
. Wohnfläche: ca. 37,46?m²
. Zimmer: 2
. Loggia: ca. 5,91?m²
. Preis: 199.000?€
Anlegerpreis Netto: € 190.480,-.
1. Dachgeschoss
TOP 14 - 2-Zimmer-Wohnung mit Terrasse (Verkauft)
. Wohnfläche: ca. 47,45?m²
. Zimmer: 2
. Terrasse: ca. 6,00?m²
. Preis: 259.000?€
Anlegerpreis Netto: € 248.470,-.
TOP 15 - 2-Zimmer-Wohnung mit Terrasse
. Wohnfläche: ca. 45,48?m²
. Zimmer: 2
. Terrasse: ca. 3,32?m²
. Balkon: ca. 12,09?m²
. Preis: 259.000?€
Anlegerpreis Netto: € 246.100,-.
TOP 16 - 2-Zimmer-Wohnung mit Terrasse
. Wohnfläche: ca. 45,30?m²
. Zimmer: 2
. Terrasse: ca. 3,49?m²
. Balkon: ca. 12,84?m²
. Preis: 259.000?€
Anlegerpreis Netto: € 246.200,-.
TOP 17 - 3-Zimmer-Wohnung mit Terrasse
. Wohnfläche: ca. 66,44?m²
. Zimmer: 3
. Terrasse: ca. 5,89?m²
. Preis: 349.000?€
Anlegerpreis Netto: € 330.200,-.
2. Dachgeschoss
TOP 18 - 2-Zimmer-Wohnung mit Terrasse
. Wohnfläche: ca. 56,68?m²
. Zimmer: 2
. Terrasse: ca. 23,75?m²
. Preis: 329.000?€
Anlegerpreis Netto: € 313.000,-.
TOP 19 - 3-Zimmer-Wohnung mit Terrasse (Verkauft)
. Wohnfläche: ca. 61,18?m²
. Zimmer: 3
. Terrasse: ca. 23,66?m²
. Preis: 379.000?€
Anlegerpreis Netto: € 362.205,-.
Lage & Infrastruktur
Das Wohnprojekt in der Esslinger Hauptstraße bietet eine ausgezeichnete Anbindung an das öffentliche Verkehrsnetz und eine hervorragende Infrastruktur:
. Straßenbahn und Busstation in unmittelbarer Nähe
. Einkaufsmöglichkeiten, Schulen und Kindergärten in Gehweite
. Naherholungsgebiete wie die Lobau und die Donauinsel schnell erreichbar
. Direkte Anbindung an die Wiener Innenstadt
Jetzt informieren & Besichtigungstermin vereinbaren!
Nutzen Sie die Gelegenheit, eine moderne Wohnung in einem hochwertigen Neubauprojekt zu erwerben.
Hinweis:
Die abgebildeten Visualisierungen basieren auf den Grundrissen der jeweiligen Wohnungen und dienen zur Veranschaulichung möglicher Einrichtungskonzepte. Die Wohnungen befinden sich aktuell in der Endphase der Fertigstellung.
Kontaktieren Sie uns für weitere Informationen.
In einer ruhigen und dennoch gut angebundenen Lage im 22. Bezirk entstehen 19 exklusive Neubauwohnungen, die höchsten Wohnkomfort mit moderner Ausstattung verbinden. Die durchdachten Grundrisse, hochwertige Materialien und energieeffiziente Bauweise machen dieses Wohnprojekt zu einer idealen Investition - ob für Eigennutzer oder Anleger.
Highlights der Wohnungen:
. Moderne Architektur mit effizienter Raumaufteilung
. Wohnflächen von ca. 37 m² bis 89 m²
. Jede Wohnung mit Balkon, Terrasse oder Garten
. Hochwertige Parkettböden und elegante Feinsteinzeugfliesen
. Fußbodenheizung für angenehmen Wohnkomfort
. 3-fach verglaste Fenster mit Raffstores für optimale Dämmung
. Exklusive Sanitärausstattung mit Markenprodukten
. Energieeffiziente Bauweise mit moderner Heiztechnik
Wohnungsübersicht mit individuellen Details:
Erdgeschoss
TOP 1 - 2-Zimmer-Wohnung mit Garten (Verkauft)
. Wohnfläche: ca. 42,05?m²
. Zimmer: 2
. Terrasse: ca. 8,23?m²
. Garten: ca. 44,38?m²
. Preis: 219.000?€
Anlegerpreis Netto: € 200.200,-.
TOP 2 - 2-Zimmer-Wohnung mit Garten (Verkauft)
. Wohnfläche: ca. 48,02?m²
. Zimmer: 2
. Terrasse: ca. 9?m²
. Garten: ca. 32,33?m²
. Preis: 249.000?€
Anlegerpreis Netto: € 231.450,-
TOP 3 - 4-Zimmer-Wohnung mit Garten
. Wohnfläche: ca. 89,04?m²
. Zimmer: 4
. Terrasse: ca. 7,07?m²
. Garten: ca. 42,51?m²
. Preis: 469 000?€
Anlegerpreis Netto: € 443 800,-.
1. Obergeschoss
TOP 4 - 2-Zimmer-Wohnung mit Loggia (Verkauft)
. Wohnfläche: ca. 42,82?m²
. Zimmer: 2
. Loggia: ca. 2,97?m²
. Preis: 219.000?€
Anlegerpreis Netto: € 209.975,-.
TOP 5 - 3-Zimmer-Wohnung mit Balkon (Verkauft)
. Wohnfläche: ca. 55,56?m²
. Zimmer: 3
. Balkon: ca. 9,40?m²
. Preis: 319.000?€
Anlegerpreis Netto: € 305.965,-.
TOP 6 - 3-Zimmer-Wohnung mit Balkon (Verkauft)
. Wohnfläche: ca. 56,49?m²
. Zimmer: 3
. Balkon: ca. 9,40?m²
. Preis: 319.000?€
Anlegerpreis Netto: € 305.715,-.
TOP 7 - 2-Zimmer-Wohnung mit Loggia (Verkauft)
. Wohnfläche: ca. 40,74?m²
. Zimmer: 2
. Loggia: ca. 2,86?m²
. Preis: 215.000?€
Anlegerpreis Netto: € 206.480,-.
TOP 8 - 2-Zimmer-Wohnung mit Loggia (Verkauft)
. Wohnfläche: ca. 37,40?m²
. Zimmer: 2
. Loggia: ca. 5,91?m²
. Preis: 199.000?€
Anlegerpreis Netto: € 190.480,-.
2. Obergeschoss
TOP 9 - 2-Zimmer-Wohnung mit Loggia (reserviert)
. Wohnfläche: ca. 42,68?m²
. Zimmer: 2
. Loggia: ca. 2,97?m²
. Preis: 229.000?€
Anlegerpreis Netto: € 219.975,-
TOP 10 - 3-Zimmer-Wohnung mit Balkon
. Wohnfläche: ca. 55,43?m²
. Zimmer: 3
. Balkon: ca. 9,40?m²
. Preis: 349.000?€
Anlegerpreis Netto: € 333.300,-
TOP 11 - 3-Zimmer-Wohnung mit Balkon
. Wohnfläche: ca. 56,46?m²
. Zimmer: 3
. Balkon: ca. 9,40?m²
. Preis: 349.000?€
Anlegerpreis Netto: € 333.000,-.
TOP 12 - 2-Zimmer-Wohnung mit Loggia (Verkauft)
. Wohnfläche: ca. 40,68?m²
. Zimmer: 2
. Loggia: ca. 2,86?m²
. Preis: 219.000?€
Anlegerpreis Netto: € 210.225,-.
TOP 13 - 2-Zimmer-Wohnung mit Loggia (Verkauft)
. Wohnfläche: ca. 37,46?m²
. Zimmer: 2
. Loggia: ca. 5,91?m²
. Preis: 199.000?€
Anlegerpreis Netto: € 190.480,-.
1. Dachgeschoss
TOP 14 - 2-Zimmer-Wohnung mit Terrasse (Verkauft)
. Wohnfläche: ca. 47,45?m²
. Zimmer: 2
. Terrasse: ca. 6,00?m²
. Preis: 259.000?€
Anlegerpreis Netto: € 248.470,-.
TOP 15 - 2-Zimmer-Wohnung mit Terrasse
. Wohnfläche: ca. 45,48?m²
. Zimmer: 2
. Terrasse: ca. 3,32?m²
. Balkon: ca. 12,09?m²
. Preis: 259.000?€
Anlegerpreis Netto: € 246.100,-.
TOP 16 - 2-Zimmer-Wohnung mit Terrasse
. Wohnfläche: ca. 45,30?m²
. Zimmer: 2
. Terrasse: ca. 3,49?m²
. Balkon: ca. 12,84?m²
. Preis: 259.000?€
Anlegerpreis Netto: € 246.200,-.
TOP 17 - 3-Zimmer-Wohnung mit Terrasse
. Wohnfläche: ca. 66,44?m²
. Zimmer: 3
. Terrasse: ca. 5,89?m²
. Preis: 349.000?€
Anlegerpreis Netto: € 330.200,-.
2. Dachgeschoss
TOP 18 - 2-Zimmer-Wohnung mit Terrasse
. Wohnfläche: ca. 56,68?m²
. Zimmer: 2
. Terrasse: ca. 23,75?m²
. Preis: 329.000?€
Anlegerpreis Netto: € 313.000,-.
TOP 19 - 3-Zimmer-Wohnung mit Terrasse (Verkauft)
. Wohnfläche: ca. 61,18?m²
. Zimmer: 3
. Terrasse: ca. 23,66?m²
. Preis: 379.000?€
Anlegerpreis Netto: € 362.205,-.
Lage & Infrastruktur
Das Wohnprojekt in der Esslinger Hauptstraße bietet eine ausgezeichnete Anbindung an das öffentliche Verkehrsnetz und eine hervorragende Infrastruktur:
. Straßenbahn und Busstation in unmittelbarer Nähe
. Einkaufsmöglichkeiten, Schulen und Kindergärten in Gehweite
. Naherholungsgebiete wie die Lobau und die Donauinsel schnell erreichbar
. Direkte Anbindung an die Wiener Innenstadt
Jetzt informieren & Besichtigungstermin vereinbaren!
Nutzen Sie die Gelegenheit, eine moderne Wohnung in einem hochwertigen Neubauprojekt zu erwerben.
Hinweis:
Die abgebildeten Visualisierungen basieren auf den Grundrissen der jeweiligen Wohnungen und dienen zur Veranschaulichung möglicher Einrichtungskonzepte. Die Wohnungen befinden sich aktuell in der Endphase der Fertigstellung.
Kontaktieren Sie uns für weitere Informationen.
Merkmale
- 2. Geschoss
- Balkon
Grundrisse
Grundrisse
1 / 1
Realisiere Dein Projekt
Bausubstanz und Energie
Heizwärmebedarf (HWB)
B
Gesamtenergieeffizienz (fGEE)
A+
- Baujahr2025
Preisdetails
Kaufpreis
349000 €349.000 €
6.296,23 €/m²
Provision für Käufer
3 % plus 20 % Ust inkl. MwSt.
Lage

Wien, Donaustadt / Wien 22., Donaustadt (1220)
Der Anbieter hat die genaue Adresse nicht freigegeben
Weitere Informationen
Sonstiges
Kontaktieren Sie uns für einen Besichtigungstermin
Für die Vereinbarung eines Besichtigungstermins freuen wir uns auf Ihre schriftliche Anfrage! Senden Sie uns gerne direkt Ihre Terminwünsche, damit wir die Besichtigung optimal nach Ihren Vorstellungen gestalten können.
Exklusive Immobilien, die Sie nicht auf gängigen Plattformen finden
Entdecken Sie besondere Immobilienobjekte, die wir Ihnen diskret und exklusiv auf unserer Website präsentieren. Besuchen Sie uns auf www.saqura.at für außergewöhnliche Angebote.
Wichtige Hinweise zur Zusammenarbeit
Wir möchten Sie darauf hinweisen, dass zwischen uns und dem Eigentümer/der Eigentümerin ein wirtschaftliches Naheverhältnis besteht. Dies beeinträchtigt jedoch keinesfalls unsere gesetzlichen Pflichten als Doppelmakler. Änderungen und Irrtümer vorbehalten.
Ihre Ansprechpartnerin:
Frau Olivera Jovicic
Mobil: +43 664 45 45 920
E-Mail: office@saqura.at
Haftungsausschluss:
Sämtliche Angaben zur Liegenschaft stammen vom Eigentümer. Die SAQURA Immobilien GmbH übernimmt daher keine Haftung für die Richtigkeit, Vollständigkeit oder Aktualität der zur Verfügung gestellten Informationen.
Information zum Fernabsatz- und Auswärtsgeschäfte-Gesetz:
Seit Inkrafttreten der neuen EU-Richtlinien am 13. Juni 2014 sind wir verpflichtet, Ihnen die Objektunterlagen erst nach Ihrer Bestätigung zuzuleiten, dass Sie unsere Dienstleistungen in Anspruch nehmen möchten und über Ihr Rücktrittsrecht informiert wurden.
Provision und Gebühren:
Bitte beachten Sie, dass im Falle eines erfolgreichen Vertragsabschlusses eine Vermittlungsprovision gemäß den Bestimmungen der Immobilienmaklerverordnung BGBI. 262 und 297/1996 anfällt. Diese beträgt 3 % des Kaufpreises zuzüglich 20 % MwSt. oder, bei Mietverträgen, 2 Bruttomonatsmieten zuzüglich 20 % MwSt. Die Provisionspflicht gilt auch, falls die Ihnen überlassenen Informationen an Dritte weitergegeben werden.
Datenschutzhinweis:
Wir legen höchsten Wert auf den Schutz Ihrer persönlichen Daten. Ihre Daten werden gemäß den geltenden datenschutzrechtlichen Bestimmungen verarbeitet. Weitere Informationen dazu finden Sie unter folgendem Link: Datenschutzinformation.
Unsere Allgemeinen Geschäftsbedingungen finden Sie auf unserer Website https://www.saqura.at/datenschutz.xhtml einsehbar und werden im Falle eines Vertragsabschlusses Bestandteil der Vereinbarung.
Wir freuen uns darauf, Ihnen diese besondere Immobilie persönlich vorzustellen. Stichworte Anzahl der Badezimmer: 1, Anzahl der separaten WCs: 1, Anzahl Balkone: 1, Balkon-Terrassen-Fläche: 9,40 m², Bundesland: Wien
Für die Vereinbarung eines Besichtigungstermins freuen wir uns auf Ihre schriftliche Anfrage! Senden Sie uns gerne direkt Ihre Terminwünsche, damit wir die Besichtigung optimal nach Ihren Vorstellungen gestalten können.
Exklusive Immobilien, die Sie nicht auf gängigen Plattformen finden
Entdecken Sie besondere Immobilienobjekte, die wir Ihnen diskret und exklusiv auf unserer Website präsentieren. Besuchen Sie uns auf www.saqura.at für außergewöhnliche Angebote.
Wichtige Hinweise zur Zusammenarbeit
Wir möchten Sie darauf hinweisen, dass zwischen uns und dem Eigentümer/der Eigentümerin ein wirtschaftliches Naheverhältnis besteht. Dies beeinträchtigt jedoch keinesfalls unsere gesetzlichen Pflichten als Doppelmakler. Änderungen und Irrtümer vorbehalten.
Ihre Ansprechpartnerin:
Frau Olivera Jovicic
Mobil: +43 664 45 45 920
E-Mail: office@saqura.at
Haftungsausschluss:
Sämtliche Angaben zur Liegenschaft stammen vom Eigentümer. Die SAQURA Immobilien GmbH übernimmt daher keine Haftung für die Richtigkeit, Vollständigkeit oder Aktualität der zur Verfügung gestellten Informationen.
Information zum Fernabsatz- und Auswärtsgeschäfte-Gesetz:
Seit Inkrafttreten der neuen EU-Richtlinien am 13. Juni 2014 sind wir verpflichtet, Ihnen die Objektunterlagen erst nach Ihrer Bestätigung zuzuleiten, dass Sie unsere Dienstleistungen in Anspruch nehmen möchten und über Ihr Rücktrittsrecht informiert wurden.
Provision und Gebühren:
Bitte beachten Sie, dass im Falle eines erfolgreichen Vertragsabschlusses eine Vermittlungsprovision gemäß den Bestimmungen der Immobilienmaklerverordnung BGBI. 262 und 297/1996 anfällt. Diese beträgt 3 % des Kaufpreises zuzüglich 20 % MwSt. oder, bei Mietverträgen, 2 Bruttomonatsmieten zuzüglich 20 % MwSt. Die Provisionspflicht gilt auch, falls die Ihnen überlassenen Informationen an Dritte weitergegeben werden.
Datenschutzhinweis:
Wir legen höchsten Wert auf den Schutz Ihrer persönlichen Daten. Ihre Daten werden gemäß den geltenden datenschutzrechtlichen Bestimmungen verarbeitet. Weitere Informationen dazu finden Sie unter folgendem Link: Datenschutzinformation.
Unsere Allgemeinen Geschäftsbedingungen finden Sie auf unserer Website https://www.saqura.at/datenschutz.xhtml einsehbar und werden im Falle eines Vertragsabschlusses Bestandteil der Vereinbarung.
Wir freuen uns darauf, Ihnen diese besondere Immobilie persönlich vorzustellen. Stichworte Anzahl der Badezimmer: 1, Anzahl der separaten WCs: 1, Anzahl Balkone: 1, Balkon-Terrassen-Fläche: 9,40 m², Bundesland: Wien
Weitere Services
Lust auf eine Besichtigung?
Eine Frage zur Immobilie?
Über den Anbieter
Online-ID: 25SKSP1MS3FN
Referenznummer: 00962


SAQURA Immobilien GmbH
Wie zufrieden bist du mit dieser Seite (nicht mit der Immobilie selbst)?