

Lan Immobilien
Herr Manuel Lan
+49 ···
Nr. anzeigenPreise & Kosten
Provision für Käufer
12.066,60EUR
7,14 % Käuferprovision inkl. MwSt., verdient und fällig mit Beurkundung des notariellen Kaufvertrages.
Lage
Die Immobilie ist ein multifunktionales Anwesen, das Gewerbeeinheiten, Wohnungen und ein laufendes Bauprojekt umfasst. Diese Vielfalt macht sie zu einem aufregenden Zentrum für Geschäftsaktivitäten, Wohnmöglichkeiten und zukünftige Entwicklungen. Mit ihrer zentralen Lage und ihrem Potenzial zur weiteren Entwicklung ist die...
Büro-/Praxisfläche
Kategorie
Bürofläche
Baujahr
1900
Geschoss
2. Geschoss
Energie & Heizung
Warum sehe ich diese Anzeige? – Du siehst diese Anzeige basierend auf Ihrer Navigation auf unserer Website und den Suchkriterien, die du verwendet hast.
Wärme
Energieausweistyp
Bedarfsausweis
Gebäudetyp
Nicht-Wohngebäude
Baujahr laut Energieausweis
1999
Wesentliche Energieträger
Gaszentralheizung
Gültigkeit
05.03.2021 bis 04.03.2031
Endenergiebedarf (Wärme)
105,00 kWh/(m²·a)
Weitere Energiedaten
Energieträger
Gas
Heizungsart
Zentralheizung
Details
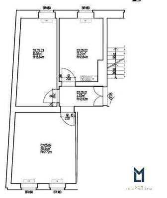
Objektbeschreibung
Der Stuckaltbau aus dem Jahr 1900 besteht aus einem reinem Vorderhaus.
Ausstattung
Die angebotene Einheit verfügt über drei separate Räume. Aktuell gibt es weder eine Küche noch ein Badezimmer. In einem der Räume befindet sich derzeit lediglich eine Spüle. Das Badezimmer sowie die Küche müssten auf eigene Kosten selbst eingebaut werden.
Aktuell ist die Einheit vermietet, wird kurzfristig bezugsfrei...
Weitere Informationen
Sonstiges
Für weitere Fragen stehen wir Ihnen jederzeit zur Verfügung!
Ein ausführliches Exposé zum Objekt erhalten Sie auf schriftliche Anfrage.
Wir bitten Sie das Kontaktformular vollständig auszufüllen!
Lan Immobilien
Marburger Str.14
D-10789 Berlin
Mail...
Dokumente
Anbieter der Immobilie
Lan Immobilien
Marburgerstr. 14, 10789 Berlin

Online-ID: 2lut55w
Referenznummer: 1621
Finde Angebote wie dieses
Hier geht es zu unserem Impressum, den Allgemeinen Geschäftsbedingungen, den Hinweisen zum Datenschutz und nutzungsbasierter Online-Werbung.