

IC Immobilien GmbH
Herr Carsten Eckert
034 ···
Nr. anzeigenPreise & Kosten
Kaution
1.500,00
Warum sehe ich diese Anzeige? – Du siehst diese Anzeige basierend auf Ihrer Navigation auf unserer Website und den Suchkriterien, die du verwendet hast.
Lage
Hohe Str. 16 A ist im Zentrum und ist eine ruhige Nebenstraße. Die Lage ist fantastisch.
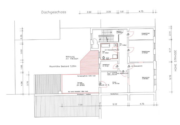
Die Wohnung
Wohnungslage
2. Geschoss
Bezug
sofort
Wohnanlage
Energie & Heizung
Warum sehe ich diese Anzeige? – Du siehst diese Anzeige basierend auf Ihrer Navigation auf unserer Website und den Suchkriterien, die du verwendet hast.
Energieausweistyp
Verbrauchsausweis
Gebäudetyp
Wohngebäude
Baujahr laut Energieausweis
2005
Wesentliche Energieträger
Gas
Gültigkeit
01.10.2018 bis 01.10.2028
Effizienzklasse
C
Endenergieverbrauch
98,50 kWh/(m²·a)
Weitere Energiedaten
Energieträger
Gas
Heizungsart
Etagenheizung
Details
Objektbeschreibung
Objektbeschreibung
In dem sehr gepflegten Haus befindet sich diese wunderschöne Wohnung. Die Wohnung verfügt über 3 Zimmer, 1 Bad mit Wanne, Dusche und Fenster, 1 Abstellraum, 1 Küche mit Zugang zur wunderschönen Dachterrasse. Alle Zimmer sind vom Flur aus begehbar. Zur Wohnung gehört ein Keller und eine...
Weitere Informationen
Besichtigungstermine
Nach Vereinbarung !
Stichworte
Zustand: neuwertig, renoviert, saniert, gepflegt
TV: Kabelanschluss, Sat-Anschluss
Sonstiges/Wohnen: Dachboden
Versorgung: Städtische Wasserversorgung, Städtische Stromversorgung
Serviceleistungen: Hausmeister
Sonstiges: frei werdend
Dokumente
Anbieter der Immobilie
IC Immobilien GmbH
Karlstrasse 15, 06406 Bernburg

Online-ID: 2lvmt5e
Referenznummer: 460
Finde Angebote wie dieses
Hier geht es zu unserem Impressum, den Allgemeinen Geschäftsbedingungen, den Hinweisen zum Datenschutz und nutzungsbasierter Online-Werbung.