
Raiffeisen Immobilien Vermittlung GmbH
Herr Reinhard Gansch
+43 ···
Nr. anzeigenPreise & Kosten
Provision für Käufer
3% des Kaufpreises plus 20% USt.
Lage
Euratsfeld - Wo das Leben Wurzeln schlägt und die Seele aufblühtEingebettet in die sanft geschwungenen Hügel des Mostviertels, liegt Euratsfeld - ein Ort, der nicht nur geografisch, sondern auch emotional das Herz Niederösterreichs berührt. Wer hierher zieht, entscheidet sich bewusst für ein Leben im Einklang mit der Natur...
Das Haus
Kategorie
Bauernhaus
Bezug
Nach Vereinbarung
Energie & Heizung
Warum sehe ich diese Anzeige? – Du siehst diese Anzeige basierend auf Ihrer Navigation auf unserer Website und den Suchkriterien, die du verwendet hast.
Heizwärmebedarf (HWB)
235,00 kWh/(m²·a)
Gesamtenergieeffizienz (fGEE)
2,64
Weitere Energiedaten
Energieträger
Holz, Pellets
Heizungsart
Ofen, Zentralheizung
Details
Objektbeschreibung
Kurzbeschreibung
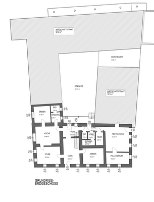
Historischer Vierkanthof mit Weitblick - Wohnen und Leben im Herzen des MostviertelsEuratsfeld | ca. 270 m² Wohnfläche | 2 Wohneinheiten möglich | 1 ha Grünland | Maschinenhalle | Stallungen
Ein Ort, an dem Geschichte spürbar wird und Zukunft Raum findet: Dieser prachtvolle, typisch mostviertler...
Weitere Informationen
Sonstiges
Homepage der Gemeinde Euratsfeld - https://euratsfeld.gv.at/
Euratsfeld Mostvierteltourismus - https://www.mostviertel.at/orte-mostviertel/a-euratsfeld?category[]=recreation
Ihre Bank vor Ort - https://www.raiffeisen.at/noew/region-amstetten/de/meine-bank/bankstellen/euratsfeld.html
ihre...
Dokumente
Anbieter der Immobilie
Online-ID: 2lvrc5e
Referenznummer: 0001010478
Finde Angebote wie dieses
Günstige Immobilienfinanzierung einfach online berechnen
Persönliches Angebot berechnenWarum sehe ich diese Werbung? – Du siehst diese Werbung basierend auf Deiner Navigation auf unserer Website und der von Dir verwendeten Suchkriterien.
Diese Werbung wird bezahlt von durchblicker
Werbung melden
Hier geht es zu unserem Impressum, den Allgemeinen Geschäftsbedingungen, den Hinweisen zum Datenschutz und nutzungsbasierter Online-Werbung.