

Haimerl Immobilien GmbH
Herr Peter Haimerl
017 ···
Nr. anzeigenPreise & Kosten
Provision für Käufer
3,57% inkl. MwSt.. Die Provision berechnet sich aus dem notariell beurkundeten Kaufpreis.
Lage
- Die Doppelhaushälfte liegt an einer Anliegerstraße in Mantel, direkt neben einem unbebauten Gebiet.
- Die Geschäfte des täglichen Bedarfs sind in Mantel vorhanden.
- Auch Allgemeinärzte und ein Zahnarzt sind in Mantel ansässig.
- Für Naturliebhaber gibt es ca. 60km Wanderwege.
- Der Ort verfügt über...
Das Renditeobjekt
Kategorie
Wohnanlage
Baujahr
2008
Bezug
nicht möglich
Frei ab
vermietet
Geschosse
2 Geschosse
Energie & Heizung
Warum sehe ich diese Anzeige? – Du siehst diese Anzeige basierend auf Ihrer Navigation auf unserer Website und den Suchkriterien, die du verwendet hast.
Energieausweistyp
Bedarfsausweis
Gebäudetyp
Wohngebäude
Baujahr laut Energieausweis
2008
Wesentliche Energieträger
Erdgas
Gültigkeit
03.01.2019 bis 21.01.2019
Effizienzklasse
B
Endenergiebedarf
73,30 kWh/(m²·a)
Weitere Energiedaten
Energieträger
Gas
Heizungsart
Zentralheizung
Details
Objektbeschreibung
- Verkauft wird eine Doppelhaushälfte zur Kapitalanlage in einer sehr ruhigen Lage in Mantel.
- Das Objekt ist langfristig an die Bundesrepublik Deutschland vermietet und dient als Unterkunft für US-Soldaten.
- Der Mietvertrag verlängert sich automatisch weiter, eine Kündigung durch den Eigentümer ist nicht...
Ausstattung
- Voll unterkellert
- Küche
- Einbauschränke, Möbel, wie z.B. Betten, Tische und Stühle
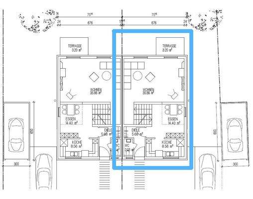
- Raumaufteilung: Siehe Pläne anbei.
- Im Grundbauch ist auch noch ein ca. 12m²-Anteil am nahe gelegenen Spielplatz ein paar Häuser weiter eingetragen.
Weitere Informationen
Rechtshinweis:
Da wir Objektangaben nicht selbst ermitteln, übernehmen wir hierfür keine Gewähr. Dieses Exposé ist nur für Sie persönlich bestimmt. Eine Weitergabe an Dritte ist an unsere ausdrückliche Zustimmung gebunden und unterbindet nicht unseren Provisionsanspruch bei Zustandekommen eines Vertrages. Bei...
Anbieter der Immobilie
Haimerl Immobilien GmbH
Lindenstraße 11, 94348 Atting

Online-ID: 2lx325z
Finde Angebote wie dieses
Hier geht es zu unserem Impressum, den Allgemeinen Geschäftsbedingungen, den Hinweisen zum Datenschutz und nutzungsbasierter Online-Werbung.