
WERTGRUND Immobilien Verwaltungs GmbH
Frau Anna Blickhan
Kontaktiere den Anbieter schriftlich, es ist keine Telefonnummer hinterlegt.
Preise & Kosten
Kaution
3.450,00 €
Warum sehe ich diese Anzeige? – Du siehst diese Anzeige basierend auf Ihrer Navigation auf unserer Website und den Suchkriterien, die du verwendet hast.
Lage
Am südlichen Stadtrand Hannovers - im Stadtteil Döhren-Wülfel - finden Sie das Neubauquartier "Am Brabrinke" direkt zwischen der Hildesheimer Straße und dem Naturschutzgebiet "Leineauen" mit Verbindung zum Maschsee.
Dinge für den täglichen Bedarf finden Sie zum Teil direkt im Quartier. Hier sollen ein Bäcker, ein...
Die Wohnung
Wohnungslage
1. Geschoss
Bezug
nach Absprache
Wohnanlage
Energie & Heizung
Warum sehe ich diese Anzeige? – Du siehst diese Anzeige basierend auf Ihrer Navigation auf unserer Website und den Suchkriterien, die du verwendet hast.
Energieausweistyp
Bedarfsausweis
Gebäudetyp
Wohngebäude
Effizienzklasse
B
Endenergiebedarf
53,00 kWh/(m²·a)
Weitere Energiedaten
Energieträger
Fernwärme
Heizungsart
Fußbodenheizung
Details
Objektbeschreibung
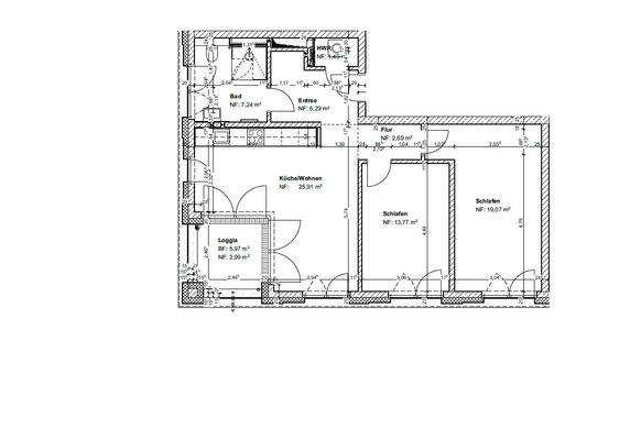
Diese ca. 79,45 m² große, helle 3-Zimmer-Wohnung hat einiges zu bieten. Mit dem Aufzug kommen Sie bequem in den 1. Stock. Hier empfängt Sie Ihr neues Zuhause mit Parkettboden und weißen Wänden. Die Einbauküche lädt zum gemeinsamen Kochen ein. Der Kochbereich ist in den Wohnbereich integriert und lässt sich mit Essmöbeln gut...
Ausstattung
. NEUBAU-Erstbezug
. 3-Zimmer-Wohnung
. ca. 79,45 m² Wohnfläche
. 1. Obergeschoss
. Aufzug
. Loggia
. moderner, offener Schnitt
. Echtholz-Parkett-Boden
. glatte Wände/weiße Vliestapete
. große, bodentiefe Fensterelemente
. Tageslichtbad mit Walk-In-Dusche
. offener Wohn-/Kochbereich
...
Preisinformation
1 Garagenstellplatz, Miete: 100,00 EUR
Nettokaltmiete: 1.150,00 EUR
Weitere Informationen
Sonstiges
Hinweis zur Terminvereinbarung:
Die Besichtigungstermine werden von uns ausschließlich per E-Mail vergeben. Bitte nehmen Sie daher mit uns über den "Kontakt-Button" des Portals Kontakt auf. Sie erhalten dann von uns eine Einladung zur Besichtigung mit mehreren Termin-Optionen.
WERTGRUND Homepage -...
Dokumente
Anbieter der Immobilie
Frau Anna Blickhan
Dein Ansprechpartner
Kontaktiere den Anbieter schriftlich, es ist keine Telefonnummer hinterlegt.
Online-ID: 2lxbk5x
Referenznummer: H-HDH442-SI-02.1004
Finde Angebote wie dieses
Hier geht es zu unserem Impressum, den Allgemeinen Geschäftsbedingungen, den Hinweisen zum Datenschutz und nutzungsbasierter Online-Werbung.