Version: 8.26.0Navigation überspringen
333.000 €
3 Zimmer  •  56,5 m²  •  2. Geschoss  •  frei ab sofort

Wohnung zum Kauf - Erstbezug
333000 €
5.898 €/m²
3 Zimmer  •  56,5 m²  •  2. Geschoss  •  frei ab sofort

NEU! . Photovoltaik . Bezugsfertig . Balkon/Terrasse . 1220 Wien

* GEBÜHRENBEFREIUNG BIS 1.7.2026:

Sichern Sie sich jetzt noch bis 30. Juni 2026 (nach aktuellem Stand) die Gebührenbefreiung für die Eintragung des Eigentumsrechts sowie - im Falle einer Finanzierung - auch die Befreiung der Pfandrechtsgebühr.

Maßgeblich hierfür ist die rechtzeitige Einbringung des Grundbuchsgesuchs durch den jeweiligen Vertragserrichter bzw. Rechtsanwalt und nicht das Kaufvertrags- oder Angebotsdatum! 

Die konkreten Voraussetzungen, Bedingungen sowie die maximale Höhe der möglichen Gebührenbefreiung erläutern wir Ihnen gerne auf Anfrage.

* PROJEKT:

Zum Verkauf gelangen 19 hochmoderne Neubau-Eigentumswohnungen mit ca. 2-4 Zimmern sowie großzügigen Außenflächen (Loggia / Balkon / Terrasse / Garten).

* STATE-OF-THE-ART-TECHNIK:

Ausstattung: Photovoltaikanlage, Klimaanlage in den Dachgeschossen (Ebene 1 und 2), Luftwärmepumpe, Fußbodenheizung, Echtholz-Parkettboden (Eiche), dreifach verglaste Fenster mit Außenbeschattung, Ziegel-Massivbauweise, Lift, Keller, hochwertige Materialien sowie ein stilvolles, modernes und zeitloses Design.

* BEZUGSTERMIN:

Ab sofort möglich.

* GRUNDBUCH STATT SPARBUCH:

Diese Top-Neubauwohnungen stellen eine hervorragende Gelegenheit dar - sowohl für Eigennutzer als auch für Kapitalanleger.

Mit ihren universellen Wohnungsgrößen (2-4 Zimmer), der hochwertigen Ausstattung und der ausgezeichneten Lage eignen sie sich ideal für alle, die in stabile Immobilienwerte investieren möchten -_ _Grundbuch statt Sparbuch - und damit inflationsgeschützte finanzielle Sicherheit sowie langfristige Unabhängigkeit aufbauen wollen.

Wie man treffend sagt: "Jeder zahlt im Laufe seines Lebens ein bis zwei Immobilien. Die einzige Frage ist: Wem sollen sie am Ende gehören?"

* VERFÜGBARE WOHNUNGEN:

__________

GARTENWOHNUNGEN:

* Top 1, 2: VERKAUFT

__________

Top 3: WNFL ca. 89,04 m² (4 Zimmer) + Terrasse ca. 7,07 m² + GARTEN ca. 42,51 m² + ER (Keller) ca. 2 m²

*
Kaufpreis Eigennutzer: EUR 449.000  I  Kaufpreis Anleger: 419.000 zzgl. 20% USt.

__________

1. STOCK:

* Top 4, 5, 6, 7, 8: VERKAUFT

__________

2. STOCK:

__________

Top 10:  WNFL ca. 55,43 m² (3 Zimmer) + Terrasse ca. 9,40 m² + ER (Keller) ca. 2 m²

*
Kaufpreis Eigennutzer: EUR 349.000  I  Kaufpreis Anleger: 329.000 zzgl. 20% USt.

*
 

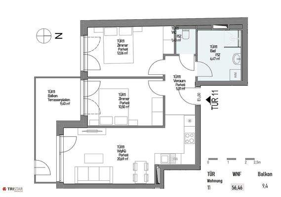
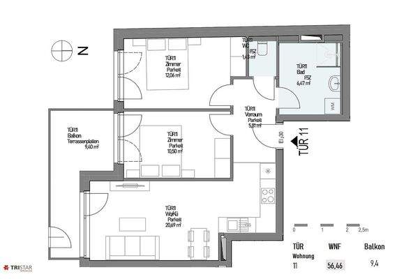
Top 11: WNFL ca. 56,46 m² (3 Zimmer) + Terrasse ca. 9,40 m² + ER (Keller) ca. 2 m²

*
Kaufpreis Eigennutzer: EUR 349.000  I  Kaufpreis Anleger: 329.000 zzgl. 20% USt.

* Top 9, 12, 13: VERKAUFT

__________

DACHGESCHOSS 1:

__________

* Top 14: VERKAUFT
*  

Top 15:  WNFL ca. 45,48 m² (2 Zimmer) + Terrasse/ Balkon ca.16,22 m² + ER (Keller) ca. 2,09 m²

* Kaufpreis Eigennutzer: EUR 249.000  I  Kaufpreis Anleger: 235.000 zzgl. 20% USt.

__________

TOP 16: WNFL ca. 45,30 m² (3 Zimmer) + Terrasse/ Balkon ca. 16,33 m² + ER (Keller) ca. 2 m²

* Kaufpreis Eigennutzer: EUR 249.000  I  Kaufpreis Anleger: 235.000 zzgl. 20% USt.

__________

Top 17:  WNFL ca. 66,44 m² (3 Zimmer) + Terrasse ca.6 m² + ER (Keller) ca. 2 m²        

* Kaufpreis Eigennutzer: EUR 339.000  I  Kaufpreis Anleger: 319.000 zzgl. 20% USt.    

__________

DACHGESCHOSS 2:

__________

* Top 18, 19:  VERKAUFT

__________

* KEIN BAURECHT, KEINE PACHT:

Sie erwerben hier IHR EIGENHEIM und EIGENTUMSGRUND! 

* INDIVIDUELL ANGEPASSTE FINANZIERUNG:

Unsere ausgewählten und erfahrenen Finanzierungspartner unterstützen Sie gerne bei der Entwicklung einer optimal auf Ihre Bedürfnisse abgestimmten Finanzierungslösung.

Top-Finanzierungskonzepte sowohl für Eigennutzer als auch für Anleger stehen bereit und warten auf Ihre Anfrage. Weitere Informationen erhalten Sie beim Besichtigungstermin!

* LAGE:

Diverse Einkaufsmöglichkeiten für den täglichen Lebensbedarf sowie öffentliche Verkehrsmittel sind in Gehweite vorhanden.

Ein detailliertes Lageexposé (65 Seiten) ist vorhanden und wird umgehend nach Anfrage übermittelt!

*
VERMITTLUNGSPROVISION / DOPPELMAKLERTÄTIGKEIT:

Der Ordnung halber wird darauf hingewiesen, dass die Vermittlungsprovision 3 % des Kaufpreises zuzüglich 20 % USt. (insgesamt 3,6 %) beträgt und mit Zustandekommen des vermittelten Rechtsgeschäfts (Annahme des Kaufanbots ohne aufschiebende Bedingungen durch den Verkäufer) fällig wird. Der Makler ist als Doppelmakler tätig.

NEU! . Photovoltaik . Bezugsfertig . Balkon/Terrasse . 1220 Wien

Wir weisen darauf hin, dass zwischen dem Vermittler und dem zu vermittelnden Dritten ein familiäres oder wirtschaftliches Naheverhältnis besteht.

Der Vermittler ist als Doppelmakler tätig.

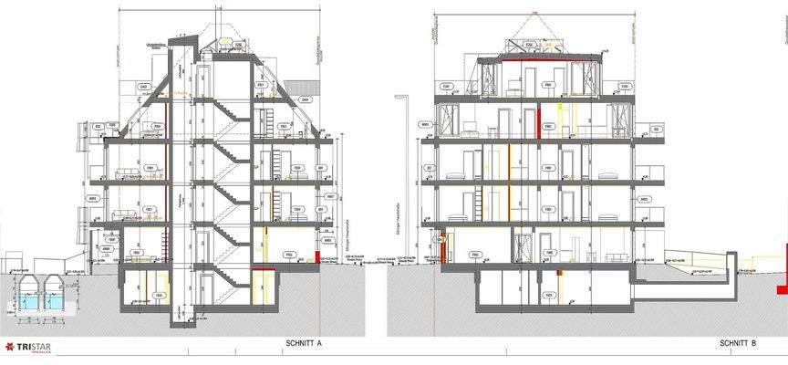
Merkmale

  • frei ab sofort
  • 2. Geschoss
  • Personenaufzug
  • Bad mit Dusche
  • Bodenbelag: Fliesen, Parkett
  • Balkon
  • Garten

Grundrisse

Grundrisse
1 / 5

Bausubstanz und Energie

Heizwärmebedarf (HWB)

B

Gesamtenergieeffizienz (fGEE)

A+
  • Baujahr2025
  • Zustand der ImmobilieNeubau, Massivhaus, Erstbezug
  • HeizungsartFußbodenheizung
  • EnergieträgerLuft-/Wasser-Wärmepumpe
MediumRectangleTop

Preisdetails

Kaufpreis
333000 €
5.897,98 €/m²
Provision für Käufer
3% des Kaufpreises zzgl. 20% USt.

Lage

address-icon
Wien (1220)
U2 SEESTADT / LOBAU

Weitere Informationen

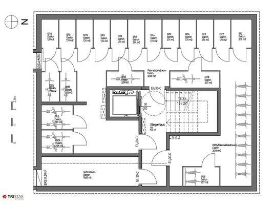
Stichworte Süd-Balkon/Terrasse, Gesamtfläche: 65,86 m², Anzahl der Badezimmer: 1, Anzahl der separaten WCs: 1, Anzahl Balkone: 1, Balkon-Terrassen-Fläche: 9,40 m², Kellerfläche: 1,74 m², Bundesland: Wien, 5 Etagen, Wohnungsnr.: 11A

Weitere Services

Lust auf eine Besichtigung?
Eine Frage zur Immobilie?
Nachricht hinzufügen
Mit der Nutzung der oben angegebenen Telefonnummer oder durch Klicken auf „Kontaktieren“ akzeptierst Du die Allgemeinen Nutzungsbedingungen, denen Du jederzeit widersprechen kannst. Weitere Informationen zum Datenschutz

Über den Anbieter

Am Hof 5/10, 1010 WIEN
partner badge
Partnerschaft
TRISTAR ImmobilienDein Kontakt
Online-ID: 254HRMZ8CIVP
Referenznummer: OBGC2025101622251059366ffb1692e
MediumRectangleTop
Wie zufrieden bist du mit dieser Seite (nicht mit der Immobilie selbst)?