

Sparkasse Forchheim in Vertretung der Sparkassen-Immobilien-Vermittlungs-GmbH
Herr Martin Langmar
091 ···
Nr. anzeigenPreise & Kosten
Provision für Käufer
3,57 % inkl. MwSt.
Lage
Erlangen ist Bayerns achtgrößte Großstadt mit einer vielfältig ausgebauten sozialen Infrastruktur und hat heute ca. 101.000 Einwohner. Erlangens eigentliche Geburtsstunde schlug - ungeachtet einer ersten urkundlichen Erwähnung im Jahre 1002 - mit der Ansiedlung hugenottischer Glaubensflüchtlinge aus Frankreich im Jahr 1686...
Die Ladenfläche
Kategorie
Laden
Baujahr
1991
Derzeitige Nutzung
vermietet
Energie & Heizung
Warum sehe ich diese Anzeige? – Du siehst diese Anzeige basierend auf Ihrer Navigation auf unserer Website und den Suchkriterien, die du verwendet hast.
Energieausweistyp
Verbrauchsausweis
Gebäudetyp
Wohngebäude
Baujahr laut Energieausweis
1991
Wesentliche Energieträger
Fernwärme
Gültigkeit
18.09.2017 bis 17.09.2027
Effizienzklasse
B
Endenergieverbrauch
69,00 kWh/(m²·a) - Warmwasser enthalten
Weitere Energiedaten
Energieträger
Fernwärme
Heizungsart
Zentralheizung
Details
Objektbeschreibung
Kurzbeschreibung
Toplage Innenstadt
Bonitätsstarker Mieter
Inflationsschutz durch Staffelmietvertrag
Objekt
Die 1991 in Massivbauweise erstellte Immobilie befindet sich mitten in der Erlanger Innenstadt, nur 400 Meter vom Rathaus entfernt. Zu dem etwa 435 m² großen Ladenlokal im Erdgeschoss eines Wohn- und...
Ausstattung
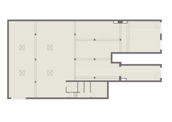
Das Ladenlokal ist aufgeteilt in einen großen Hauptraum sowie einem kleineren Raum, einer kleinen Teeküche, zwei getrennten Sanitäranlagen und einer Abstellkammer. Zur Straßenseite befinden sich etwa 9 m² Schaufensterfläche.
Der Grundriss kann durch die abgehängten Decken und vorhandenen Tragsäulen fast beliebig in...
Preisinformation
Ist-Mieteinnahmen pro Jahr: 45.748,32 EUR
Weitere Informationen
Stichworte
Tiefgarage vorhanden, Breitband Zugang mit 250 Mbit/Sec, Gesamtfläche: 435,00 m², Grundstücksfläche: 510,00 m², Bundesland: Bayern
Anbieter der Immobilie
Sparkasse Forchheim in Vertretung der Sparkassen-Immobilien-Vermittlungs-GmbH
Klosterstr. 14, 91301 Forchheim

Online-ID: 2m29m5y
Referenznummer: 1/20/214-214/0019
Finde Angebote wie dieses
Hier geht es zu unserem Impressum, den Allgemeinen Geschäftsbedingungen, den Hinweisen zum Datenschutz und nutzungsbasierter Online-Werbung.