

schmalfuss & partner IMMOBILIEN
Herr Sandro Schmalfuß
037 ···
Nr. anzeigenPreise & Kosten
Provision für Käufer
2,9% inkl. MwSt.
Das Grundstück
Details
Objektbeschreibung
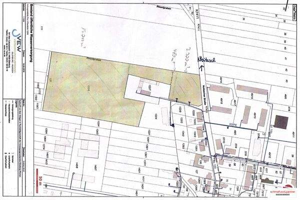
Zum Verkauf steht ein Baugebiet für Eigenheime, Reihenhäuser und Eigentumswohnungen in Hohenprießnitz bei Leipzig.
Das Baugebiet „Schlosspark Hohenprießnitz“ mit B-Plan hat eine Fläche von: ca. 31.521 m². Der Bebauungsplan wurde vom Gemeinderat beschlossen und ist rechtskräftig.
Der B-Plan sieht die Aufteilung...
Anbieter der Immobilie
schmalfuss & partner IMMOBILIEN
Heimgarten 75, 09127 Chemnitz

Online-ID: 2m46e5s
Finde Angebote wie dieses
Hier geht es zu unserem Impressum, den Allgemeinen Geschäftsbedingungen, den Hinweisen zum Datenschutz und nutzungsbasierter Online-Werbung.