
IMMOVENCE GmbH
Herr Jürgen Nussbaumer
+43 ···
Nr. anzeigenPreise & Kosten
Warum sehe ich diese Anzeige? – Du siehst diese Anzeige basierend auf Ihrer Navigation auf unserer Website und den Suchkriterien, die du verwendet hast.
Lage
Leben in Scheibbs - Stadtnähe trifft Naturidylle
Das Haus befindet sich in absoluter Bestlage von Scheibbs, in einer ruhigen Siedlung mit unverbaubarem Blick. Der Sonnenhang bietet ganztägige Besonnung, traumhafte Sonnenaufgänge und -untergänge - ein echtes Privileg. Das Stadtzentrum mit Einkaufsmöglichkeiten...
Das Haus
Bezug
sofort
Energie & Heizung
Warum sehe ich diese Anzeige? – Du siehst diese Anzeige basierend auf Ihrer Navigation auf unserer Website und den Suchkriterien, die du verwendet hast.
Heizwärmebedarf (HWB)
269,00 kWh/(m²·a)
Gesamtenergieeffizienz (fGEE)
2,72
Weitere Energiedaten
Haustyp
Massivhaus
Energieträger
Pellets
Heizungsart
Zentralheizung
Details
Objektbeschreibung
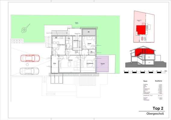
TOP 2 - OBERGESCHOSS MIT WINTERGARTEN & WEITBLICK
Wohnfläche: ca. 89,11 m² | Gesamtmiete: € 1.050,- (inkl. BK & HK)
Diese helle Obergeschosswohnung begeistert durch ein einzigartiges Wohngefühl und traumhafte Ausblicke ins Grüne. Sie eignet sich perfekt für Paare, Singles oder auch für die...
Preisinformation
1 Stellplatz
Weitere Informationen
Stichworte
Stellplatz vorhanden, Anzahl der Badezimmer: 1, Anzahl der separaten WCs: 1, Anzahl Terrassen: 1, Anzahl Loggias: 1, Balkon-Terrassen-Fläche: 28,19 m², Gartenfläche: 326,00 m², Bundesland: Niederösterreich
Anbieter der Immobilie
IMMOVENCE GmbH
Vorchdorfer Straße 64, 4643 PETTENBACH
Online-ID: 2m4le5l
Referenznummer: OBGC20251205100512232f402b02656
Finde Angebote wie dieses
Hier geht es zu unserem Impressum, den Allgemeinen Geschäftsbedingungen, den Hinweisen zum Datenschutz und nutzungsbasierter Online-Werbung.