

TWE-Immobilien Thomas Erthle e. K.
Herr Andreas Burkart
+49 ···
Nr. anzeigenPreise & Kosten
Provision für Käufer
3,57 % inkl. MwSt.
Lage
Das ca. 620 m² große Grundstück liegt sehr ruhig am Ortsrand/Feldrand in Hergisdorf. Zum Haus gehört ein ca. 250 m² großes zusätzliches Nutzgrundstück, das für die Eigenversorgung zusätzliche Möglichkeiten bietet.
In den unmittelbaren Nachbarorten Ahlsdorf, Helbra und Wimmelburg sind sämtliche Einrichtungen für den...
Das Haus
Kategorie
Einfamilienhaus
Baujahr
1905
Bezug
01.12.2026
Energie & Heizung
Warum sehe ich diese Anzeige? – Du siehst diese Anzeige basierend auf Ihrer Navigation auf unserer Website und den Suchkriterien, die du verwendet hast.
Weitere Energiedaten
Haustyp
Massivhaus
Energieträger
Gas
Heizungsart
Fußbodenheizung, Zentralheizung
Details
Objektbeschreibung
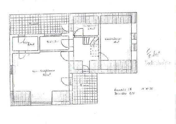
Das große Haus kann als Einfamilien-; oder Zweifamilienhaus genutzt werden. Das Dachgeschoß ist ausgebaut und verfügt über eine komplette Wohnung mit Wohnen, Küche, Schlafen, Kind, Bad, Wintergarten. Die Wohnung ist über die innenliegende Treppe im EG des Hauses zu erreichen.
Alternativ bietet es die individuelle Nutzung...
Ausstattung
- große Einbauküche mit Esszimmer
- 2 Bäder
- 2 Küchen
- Fußbodenheizung
- zusätzlicher Nutzgarten
- 2 KFZ Stellplätze
Preisinformation
2 Stellplätze
Weitere Informationen
Sonstiges
Wir sind der allein beauftragte Makler und freuen uns auf Sie und Ihre Anfrage.
Um eine schnelle Bearbeitung zu gewährleisten, übermitteln Sie uns bitte Ihre vollständigen Kontaktdaten mit Telefon-Nr. und E-Mail-Adresse.
Ein Energieausweis ist in Bearbeitung und wird zur Besichtigung vorgelegt....
Anbieter der Immobilie

Online-ID: 2m6lh5x
Referenznummer: 3610 (1/3610)
Finde Angebote wie dieses
Hier geht es zu unserem Impressum, den Allgemeinen Geschäftsbedingungen, den Hinweisen zum Datenschutz und nutzungsbasierter Online-Werbung.