
Wentzel Dr. Vertriebs GmbH
Vermietungsteam Hamburg LS
Kontaktiere den Anbieter schriftlich, es ist keine Telefonnummer hinterlegt.
Preise & Kosten
in Warmmiete enthalten
Kaution
3.799,62
Warum sehe ich diese Anzeige? – Du siehst diese Anzeige basierend auf Ihrer Navigation auf unserer Website und den Suchkriterien, die du verwendet hast.
Lage
Zuhause in Hamm: Der Stadtteil liegt im Osten Hamburgs und ist zudem sehr zentrumsnah. Umgeben von Stadtteilen wie St. Georg, Horn oder Rothenburgsort zählt Hamm zum Bezirk Hamburg-Mitte. Hier haben früher wohlhabende Kaufleute den einstigen Villenvorort geprägt.
Die städtebauliche Struktur zeichnet sich besonders...
Die Wohnung
Wohnungslage
Erdgeschoss
Bezug
01.02.2026
Wohnanlage
Energie & Heizung
Warum sehe ich diese Anzeige? – Du siehst diese Anzeige basierend auf Ihrer Navigation auf unserer Website und den Suchkriterien, die du verwendet hast.
Energieausweistyp
Verbrauchsausweis
Gebäudetyp
Wohngebäude
Baujahr laut Energieausweis
2008
Wesentliche Energieträger
FERN
Gültigkeit
seit 16.10.2023
Effizienzklasse
B
Endenergieverbrauch
73,00 kWh/(m²·a)
Weitere Energiedaten
Energieträger
Fernwärme
Details
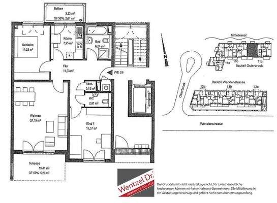
Objektbeschreibung
Modernes Objekt in attraktiver Kanallage.
Ausstattung
Die Wohnung ist mit einer hellen Einbauküche inkl. Herd, Spüle, sowie Platz für einen Kühlschrank, eine Geschirrspülmaschine und einen Esstisch ausgestattet. Das Vollbad, mit separater Dusche, verfügt über ein Fenster. Das Gäste-WC ist innenliegend und befindet sich im Flur, direkt neben dem Abstellraum. Zudem findet die...
Preisinformation
Nettokaltmiete: 1.266,54 EUR
Weitere Informationen
Sonstiges
Bei Mietvertragsabschluss wird ein Kündigungsausschluss von 1 Jahr und eine Indexmiete vereinbart.
Informationen zum Eigentümer dieser Immobilie, der Versorgungsanstalt des Bundes und der Länder, finden Sie unter www.vbl.de.
Stichworte
Anzahl Terrassen: 1
Dokumente
Anbieter der Immobilie
Wentzel Dr. Vertriebs GmbH
Stresemannallee 102-104, 22529 Hamburg
Vermietungsteam Hamburg LS
Dein Ansprechpartner
Kontaktiere den Anbieter schriftlich, es ist keine Telefonnummer hinterlegt.
Online-ID: 2m6p55t
Referenznummer: 1517.0029
Finde Angebote wie dieses
Hier geht es zu unserem Impressum, den Allgemeinen Geschäftsbedingungen, den Hinweisen zum Datenschutz und nutzungsbasierter Online-Werbung.