
WERTGRUND Immobilien Verwaltungs GmbH
Frau Anna Blickhan
Kontaktiere den Anbieter schriftlich, es ist keine Telefonnummer hinterlegt.
Preise & Kosten
Kaution
5.070,00 €
Warum sehe ich diese Anzeige? – Du siehst diese Anzeige basierend auf Ihrer Navigation auf unserer Website und den Suchkriterien, die du verwendet hast.
Lage
Am südlichen Stadtrand Hannovers - im Stadtteil Döhren-Wülfel - finden Sie das Neubauquartier "Am Brabrinke" direkt zwischen der Hildesheimer Straße und dem Naturschutzgebiet "Leineauen" mit Verbindung zum Maschsee.
Dinge für den täglichen Bedarf finden Sie zum Teil direkt im Quartier. Hier sollen ein Bäcker, ein...
Die Wohnung
Wohnungslage
4. Geschoss
Bezug
nach Absprache
Wohnanlage
Energie & Heizung
Warum sehe ich diese Anzeige? – Du siehst diese Anzeige basierend auf Ihrer Navigation auf unserer Website und den Suchkriterien, die du verwendet hast.
Energieausweistyp
Bedarfsausweis
Gebäudetyp
Wohngebäude
Effizienzklasse
B
Endenergiebedarf
53,00 kWh/(m²·a)
Weitere Energiedaten
Energieträger
Fernwärme
Heizungsart
Fußbodenheizung
Details
Objektbeschreibung
Mit Loggia-Blick ins Grüne und modernster Ausstattung können Sie und Ihre Familie direkt einziehen. Mittelpunkt ist der große Wohnbereich mit offenem Koch- und Essbereich und bodentiefen Fensterelementen. Selbstverständlich ist bereits eine moderne Einbauküche vorhanden. Von hier aus geht es auf die Loggia, die im Sommer zum...
Ausstattung
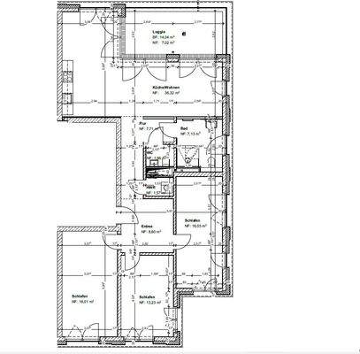
. Familienwohnung mit gutem Schnitt
. 4 Zimmer mit Loggia und Blick ins Grüne
. Neubau/Erstbezug
. ca.117,48 m²
. 4. Obergeschoss
. Aufzug
. moderne Ausstattung
. große, bodentiefe Fensterelemente
. helle Wohnatmosphäre
. Echtholz-Parkett-Boden
. glatte Wände/weiße Vliestapete
. Tageslichtbad...
Preisinformation
1 Garagenstellplatz, Miete: 100,00 EUR
Nettokaltmiete: 1.690,00 EUR
Weitere Informationen
Sonstiges
Hinweis zur Terminvereinbarung:
Die Besichtigungstermine werden von uns ausschließlich per E-Mail vergeben. Bitte nehmen Sie daher mit uns über den "Kontakt-Button" des Portals Kontakt auf. Sie erhalten dann von uns eine Einladung zur Besichtigung mit mehreren Termin-Optionen.
WERTGRUND Homepage -...
Dokumente
Anbieter der Immobilie
Frau Anna Blickhan
Dein Ansprechpartner
Kontaktiere den Anbieter schriftlich, es ist keine Telefonnummer hinterlegt.
Online-ID: 2m7mx52
Referenznummer: H-HDH442-SI-02.1013
Finde Angebote wie dieses
Hier geht es zu unserem Impressum, den Allgemeinen Geschäftsbedingungen, den Hinweisen zum Datenschutz und nutzungsbasierter Online-Werbung.