
TWE-Immobilien Thomas Erthle e. K.
Herr Cedrick Kinsumba
+49 ···
Nr. anzeigenPreise & Kosten
Provision für Käufer
3,57 % Inkl. MwSt.
Lage
Die Wohnung befindet sich in äußerst gefragter Wohnlage im südwestlichen Berliner Stadtgebiet und zeichnet sich durch ein repräsentatives, gewachsenes Wohnumfeld aus. Das direkte Umfeld ist geprägt von gepflegter Wohnbebauung, begrünten Anliegerstraßen sowie einer angenehm ruhigen und niveauvollen Nachbarschaft, die ein hohes...
Die Wohnung
Wohnungslage
1. Geschoss
Bezug
01.02.2026
Derzeitige Nutzung
frei
Wohnanlage
Energie & Heizung
Warum sehe ich diese Anzeige? – Du siehst diese Anzeige basierend auf Ihrer Navigation auf unserer Website und den Suchkriterien, die du verwendet hast.
Energieausweistyp
Bedarfsausweis
Gebäudetyp
Wohngebäude
Baujahr laut Energieausweis
1975
Wesentliche Energieträger
Gas
Gültigkeit
27.09.2019 bis 28.04.2029
Effizienzklasse
E
Endenergiebedarf
130,80 kWh/(m²·a)
Weitere Energiedaten
Energieträger
Gas
Heizungsart
Zentralheizung
Details
Objektbeschreibung
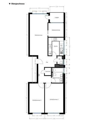
Diese hochwertig ausgestattete und äußerst gepflegte 3,5-Zimmer-Wohnung befindet sich im 1. Obergeschoss eines gepflegten Mehrfamilienhauses mit lediglich sechs Wohneinheiten und überzeugt durch eine optimale Grundrissgestaltung, einen lichtdurchfluteten Wohncharakter sowie ein überdurchschnittliches...
Ausstattung
- Gesamtfläche: ca. 81,67 m²
- Anzahl Zimmer: 3,5
- Baujahr: 1974
Etage: 1. OG rechts
- Kammer/Ankleide mit Regalen und Kleiderstangen
- Loggia mit Stromanschluss
- Einbauküche (Nolte)
- Wannenbad
- Gäste-WC
- Hausgeld € 439
- Warmwasser über Durchlauferhitzer
- Keller
-...
Preisinformation
1 Garagenstellplatz, Kaufpreis: 25.000,00 EUR
Weitere Informationen
Sonstiges
Um eine schnelle Bearbeitung zu gewährleisten, übermitteln Sie uns bitte Ihre vollständigen Kontaktdaten mit Telefon-Nr. und E-Mail-Adresse.
Gerne vereinbaren wir einen Besichtigungstermin mit Ihnen und freuen uns über Ihre Kontaktaufnahme.
Wir vermitteln - mit...
Anbieter der Immobilie
Online-ID: 2m8h55t
Referenznummer: 3598 (1/3598)
Finde Angebote wie dieses
Hier geht es zu unserem Impressum, den Allgemeinen Geschäftsbedingungen, den Hinweisen zum Datenschutz und nutzungsbasierter Online-Werbung.