
Wentzel Dr. Vertriebs GmbH
Vermietungsteam Hamburg LS
Kontaktiere den Anbieter schriftlich, es ist keine Telefonnummer hinterlegt.
Preise & Kosten
in Warmmiete enthalten
Kaution
2.310,00
Warum sehe ich diese Anzeige? – Du siehst diese Anzeige basierend auf Ihrer Navigation auf unserer Website und den Suchkriterien, die du verwendet hast.
Lage
Zuhause in Schenefeld: Die Stadt liegt nordwestlich von Hamburg und im Süden Schleswig-Holsteins. Umgeben von Städten wie Halstenbek, Pinneberg oder Wedel zählt Schenefeld zum Landkreis Pinneberg. 1256 wurde die Stadt erstmals urkundlich erwähnt.
Die städtebauliche Struktur zeichnet sich besonders durch Ein- und...
Die Wohnung
Wohnungslage
1. Geschoss
Bezug
15.01.2026
Wohnanlage
Energie & Heizung
Warum sehe ich diese Anzeige? – Du siehst diese Anzeige basierend auf Ihrer Navigation auf unserer Website und den Suchkriterien, die du verwendet hast.
Energieausweistyp
Verbrauchsausweis
Gebäudetyp
Wohngebäude
Baujahr laut Energieausweis
1964
Wesentliche Energieträger
OEL
Gültigkeit
seit 04.04.2019
Effizienzklasse
D
Endenergieverbrauch
121,00 kWh/(m²·a)
Weitere Energiedaten
Energieträger
Öl
Details
Ausstattung
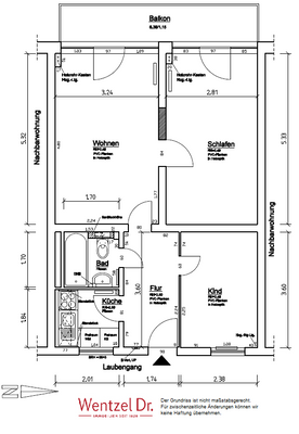
Die 2,5-Zimmerwohnung im 1. Obergeschoss wurde kürzlich modernisiert. In allen Wohnräumen wurde ein PVC-Boden in Holzoptik verlegt. Das Badezimmer ist modern gefliest und bietet eine Badewanne sowie einen Handtuchheizkörper. Die Einbauküche ist neu und mit hellen Einbauschränken ausgestattet.
Vom Wohnzimmer und...
Preisinformation
Nettokaltmiete: 770,00 EUR
Weitere Informationen
Sonstiges
Bei Mietvertragsabschluss wird eine Indexmiete und ein Kündigungsausschluss von zwei Jahren vereinbart.
Stichworte
Anzahl Balkone: 1, modernisiert
Dokumente
Anbieter der Immobilie
Wentzel Dr. Vertriebs GmbH
Stresemannallee 102-104, 22529 Hamburg
Vermietungsteam Hamburg LS
Dein Ansprechpartner
Kontaktiere den Anbieter schriftlich, es ist keine Telefonnummer hinterlegt.
Online-ID: 2mal55v
Referenznummer: 1010.0008
Finde Angebote wie dieses
Hier geht es zu unserem Impressum, den Allgemeinen Geschäftsbedingungen, den Hinweisen zum Datenschutz und nutzungsbasierter Online-Werbung.