Schwabenhaus Wuppertal – Ralf Schleinecke Handelsvertretung für die Schwabenhaus GmbH

Ralf Schleinecke

Kontaktiere den Anbieter schriftlich, es ist keine Telefonnummer hinterlegt.

Heimat für Herz und Seele

€ 1.500.000
Kaufpreis
240 m²
Wohnfläche ca.
8
Zimmer
900 m²
Grundstücksfl. ca.

Der Anbieter dieses Objekts hat gegenüber der AVIV Germany GmbH als Betreiber dieses Online-Marktplatzes erklärt, nicht als Unternehmer im Sinne des § 1 KSchG zu handeln. Die im Verbraucherschutzrecht der Union verankerten Verbraucherrechte (insbesondere Informationspflichten und Rücktritts- bzw. Widerrufsrechte) finden auf den Vertrag zwischen dem Anbieter des Objekts und Ihnen (dem Interessenten) keine Anwendung.

Provisionsfrei
Gewerblicher Anbieter

Der Anbieter dieses Objekts hat gegenüber der AVIV Germany GmbH als Betreiber dieses Online-Marktplatzes erklärt, als Unternehmer im Sinne des § 1 KSchG zu handeln.

AdresseStraße nicht freigegeben
46535 Dinslaken 
(Eppinghoven)
Auf Karte ansehen

Preise & Kosten

Kaufpreis € 1.500.000

Provision für Käufer

provisionsfrei

Lage

Das Grundstück befindet sich abseits der Straße inmitten von Gärten, in der Nähe der Krankenhäuser und in zentraler Lage nahe der Dinslakener Innenstadt.

Das Haus

Kategorie

Einfamilienhaus

  • Zustand: Neubau, projektiert

Energie & Heizung

Weitere Energiedaten

Heizungsart

Fußbodenheizung

Details

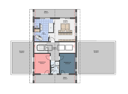
Objektbeschreibung

Der Hauspreis ist inklusive Grundstück.

Wichtig

Wir bauen mit sehr viel Herz unsere Häuser. Im Interesse der jeweiligen Grundstückseigentümer sowie meiner Bauherren werden wir ohne ein persönliches Gespräch zum Thema Hausbau, nie irgendwelche Grundstücksdaten weiterleiten. Keine Ausnahmen an dieser...

Mehr anzeigen

Ausstattung

Jedes unserer Fertighäuser wird speziell für Sie geplant und ist perfekt auf die Anforderungen und Vorgaben Ihres Bauvorhabens angepasst - Bebauungspläne, eine besondere Grundstückslage und die gewünschten Eigenleistungen werden im Detail geprüft und berücksichtigt.

Jedes Schwabenhaus verfügt standardmäßig über:
-...

Mehr anzeigen

Weitere Informationen

Sonstiges
Wichtig

Wir bauen mit sehr viel Herz unsere Häuser. Im Interesse der jeweiligen Grundstückseigentümer sowie meiner Bauherren werden wir ohne ein persönliches Gespräch zum Thema Hausbau, nie irgendwelche Grundstücksdaten weiterleiten. Keine Ausnahmen an dieser Stelle.

Und... natürlich ist es selbst...

Mehr anzeigen

Anbieter der Immobilie

Partner

Schwabenhaus Wuppertal – Ralf Schleinecke Handelsvertretung für die Schwabenhaus GmbH

im Durchschnitt  1,00  Sterne
(bei 1 Bewertungen)

Fertighauswelt 18, 42279 Wuppertal

user

Ralf Schleinecke

Dein Ansprechpartner

Kontaktiere den Anbieter schriftlich, es ist keine Telefonnummer hinterlegt.

Anbieter-Website Anbieter-Profil Anbieter-Impressum

Online-ID: 2mbtp5l

Referenznummer: HA-SOL-G-2-359570

Finde Angebote wie dieses

imageimageimage

Hier geht es zu unserem Impressum, den Allgemeinen Geschäftsbedingungen, den Hinweisen zum Datenschutz und nutzungsbasierter Online-Werbung.