

TWE-Immobilien Thomas Erthle e. K.
Frau Rita Knothe-Polenk
+49 ···
Nr. anzeigenPreise & Kosten
Mindestpreis, Verkauf gegen Angebot
Provision für Käufer
3,57 % inkl. MwSt.
Lage
Freiberg am Neckar ist eine attraktive Stadt im Landkreis Ludwigsburg und Teil der Metropolregion Stuttgart. Die Stadt liegt idyllisch am Neckar, rund 4 km nördlich von Ludwigsburg und ca. 18 km von Stuttgart entfernt, und verbindet ruhiges Wohnen mit einer sehr guten infrastrukturellen Anbindung.
Die Stadt besteht aus...
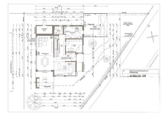
Das Haus
Kategorie
Einfamilienhaus
Baujahr
2025
Bezug
01.03.2026
Energie & Heizung
Warum sehe ich diese Anzeige? – Du siehst diese Anzeige basierend auf Ihrer Navigation auf unserer Website und den Suchkriterien, die du verwendet hast.
Weitere Energiedaten
Haustyp
Massivhaus
Energieträger
Solar
Heizungsart
Fußbodenheizung
Details
Objektbeschreibung
Ein Zuhause, das mehr kann: Smarthome für die Familie - Innovation trifft Lifestyle in Freiberg am Neckar. Erleben Sie Ihr neues Zuhause - ein einzigartiges Smarthome, das höchsten Komfort, Innovation und Stil vereint.
Dieses außergewöhnliche Neubauprojekt in der begehrtesten Lage von Freiberg am Neckar lässt keine...
Ausstattung
- Neubau Fertigstellung März 2026 Smarthome
- 6 Zimmer
- 3 Schlafzimmer
- Wohn- und Esszimmer
- Maßeingebaute Einbauküche
- Arbeitszimmer
- integriertes Weinregal
- Tageslicht Bad mit Regendusche freistehender Badewanne
- Tageslicht Bad mit Dusche
- Gäste WC
- Abstellraum
- Doppelgarage
-...
Preisinformation
1 Carportplatz
3 Stellplätze
2 Garagenstellplätze
Weitere Informationen
Sonstiges
Wir sind der allein beauftragte Makler und freuen uns auf Sie und Ihre Anfrage.
Da das Objekt noch fertig gestellt wird, benötigt es keinen Energieausweiß.
Wir vermitteln - mit Sicherheit.
Anbieter der Immobilie

Online-ID: 2mc385r
Referenznummer: 3587 (1/3587)
Finde Angebote wie dieses
Hier geht es zu unserem Impressum, den Allgemeinen Geschäftsbedingungen, den Hinweisen zum Datenschutz und nutzungsbasierter Online-Werbung.