
YOVENTI Hamburg Gesellschaft für Immobilienvermittlung mbH
Frau Steffi Steffen-Kriegisch
004 ···
Nr. anzeigenPreise & Kosten
Provision für Käufer
3,5 % inkl. gesetzl. MwSt. vom erzielten Kaufpreis inkl. MwSt.
Lage
Neugraben-Fischbek ist ein Stadtteil im Bezirk Harburg. Das Wohnumfeld zeichnet sich durch eine ruhige, grüne Lage mit gleichzeitig guter Anbindung an die Hamburger Innenstadt aus.
Besonders hervorzuheben ist die Nähe zum Naturschutzgebiet Fischbeker Heide und zum Hamburger Forst, die vielfältige Möglichkeiten für...
Das Haus
Kategorie
Einfamilienhaus
Baujahr
1972
Bezug
Sofort
Energie & Heizung
Warum sehe ich diese Anzeige? – Du siehst diese Anzeige basierend auf Ihrer Navigation auf unserer Website und den Suchkriterien, die du verwendet hast.
Energieausweistyp
Bedarfsausweis
Gebäudetyp
Wohngebäude
Baujahr laut Energieausweis
1972
Wesentliche Energieträger
GAS
Gültigkeit
25.09.2025 bis 24.09.2035
Effizienzklasse
F
Endenergiebedarf
167,38 kWh/(m²·a)
Weitere Energiedaten
Haustyp
Massivhaus
Energieträger
Gas
Heizungsart
Zentralheizung
Details
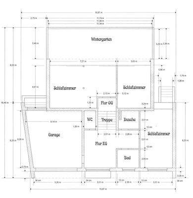
Objektbeschreibung
Das massive Wohnhaus wurde Anfang der siebziger Jahre in Split-Level-Bauweise errichtet. Der Grundriss gestaltet sich mit großzügigen Räumen auf vier versetzten Ebenen. Raumbreite Fensterfronten öffnen sich zum Garten und der Wintergarten im Obergeschoss ermöglicht einen Rundblick über das idyllische Grundstück.
Auf der...
Preisinformation
2 Garagenstellplätze
Weitere Informationen
Stichworte
Nutzfläche: 121,36 m², Anzahl der Schlafzimmer: 3, Anzahl der Badezimmer: 2, Anzahl der separaten WCs: 1, Anzahl Terrassen: 1, Kellerfläche: 85,68 m², Bundesland: Hamburg
Online-ID: 2mc8v5q
Referenznummer: HH4131_1
Finde Angebote wie dieses
Hier geht es zu unserem Impressum, den Allgemeinen Geschäftsbedingungen, den Hinweisen zum Datenschutz und nutzungsbasierter Online-Werbung.