
Living Fertighaus GmbH
Frau Derya Gülderen
+49 ···
Nr. anzeigenPreise & Kosten
Provision für Käufer
Bei Abschluss eines Kaufvertrages wird eine Vermittlungs-/ Nachweisprovision in Höhe von 3,57 % inklusive 19 % Mehrwertsteuer auf den Kaufpreis vom Käufer fällig.
Lage
Friedberg (61169) ist eine Kreisstadt im Wetteraukreis in Hessen, Deutschland, und liegt etwa 30 Kilometer nördlich von Frankfurt am Main.
Geographische Lage:
Koordinaten: Ca. 50°20' N, 8°45' O
Höhe: Etwa 140 bis 230 Meter über dem Meeresspiegel
Umgebung:
Nördlich: Wölfersheim und Reichelsheim
Östlich...
Das Haus
Kategorie
Bungalow
Baujahr
2025
Bezug
2025
Energie & Heizung
Warum sehe ich diese Anzeige? – Du siehst diese Anzeige basierend auf Ihrer Navigation auf unserer Website und den Suchkriterien, die du verwendet hast.
Energieausweistyp
Bedarfsausweis
Gebäudetyp
Wohngebäude
Baujahr laut Energieausweis
2025
Wesentliche Energieträger
Strom
Effizienzklasse
A+
Endenergiebedarf
18,00 kWh/(m²·a)
Weitere Energiedaten
Haustyp
KfW 55
Heizungsart
Luft-/Wasser-Wärmepumpe, Zentralheizung
Details
Objektbeschreibung
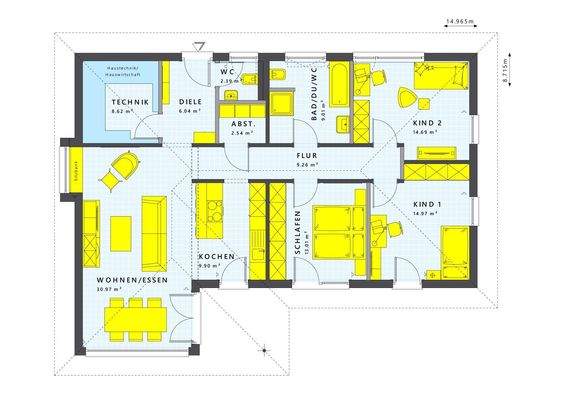
Willkommen in deinem neuen, individuell gestalteten Bungalow von LivingHaus, das mit seinem an den Bauhausstil erinnernden Design und einem modernen Flachdach überzeugt. Auf einer Wohnfläche von 110 m² bietet dieses Haus mit drei Zimmern und zwei Schlafzimmern alles, was du dir für dein neues Zuhause wünschst. Der großzügige...
Ausstattung
Dein neues Zuhause kommt mit einer Fülle an hochwertigen Ausstattungsmerkmalen. Ab dem Moment deiner Auftragsbestätigung bietet dir LivingHaus eine 18-monatige Festpreisgarantie sowie essenzielle Bauversicherungen wie Bauherrenhaftpflicht und Bauleistungsversicherung. Für deine Finanzierung steht das exklusive...
Weitere Informationen
Stichworte
Anzahl der Schlafzimmer: 2, 1 Etagen
Anbieter der Immobilie
Living Fertighaus GmbH
Ludwig-Erhard-Straße 3, 61118 Bad Vilbel
Online-ID: 2mdqy5k
Referenznummer: 30627-9140
Finde Angebote wie dieses
Hier geht es zu unserem Impressum, den Allgemeinen Geschäftsbedingungen, den Hinweisen zum Datenschutz und nutzungsbasierter Online-Werbung.