Schwabenhaus Wuppertal – Ralf Schleinecke Handelsvertretung für die Schwabenhaus GmbH

Ralf Schleinecke

Kontaktiere den Anbieter schriftlich, es ist keine Telefonnummer hinterlegt.

Leben, Lieben, Lachen - Hier!

€ 1.700.000
Kaufpreis
240 m²
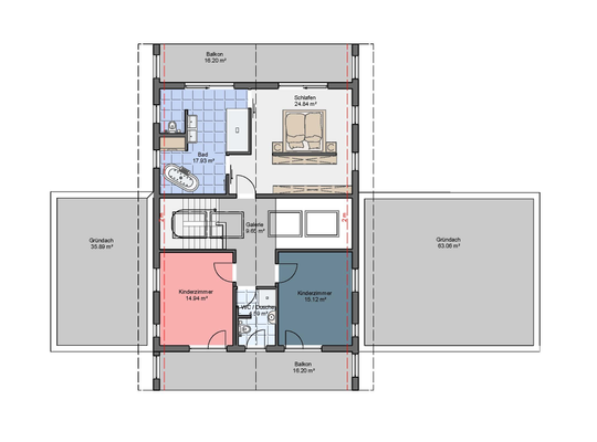
Wohnfläche ca.
8
Zimmer
919 m²
Grundstücksfl. ca.

Der Anbieter dieses Objekts hat gegenüber der AVIV Germany GmbH als Betreiber dieses Online-Marktplatzes erklärt, nicht als Unternehmer im Sinne des § 1 KSchG zu handeln. Die im Verbraucherschutzrecht der Union verankerten Verbraucherrechte (insbesondere Informationspflichten und Rücktritts- bzw. Widerrufsrechte) finden auf den Vertrag zwischen dem Anbieter des Objekts und Ihnen (dem Interessenten) keine Anwendung.

Provisionsfrei
Gewerblicher Anbieter

Der Anbieter dieses Objekts hat gegenüber der AVIV Germany GmbH als Betreiber dieses Online-Marktplatzes erklärt, als Unternehmer im Sinne des § 1 KSchG zu handeln.

AdresseStraße nicht freigegeben
44265 Dortmund 
(Buchholz)
Auf Karte ansehen

Preise & Kosten

Kaufpreis € 1.700.000

Provision für Käufer

provisionsfrei

Lage

Großes Grundstück in Dortmund Buchholz

Das Haus

Kategorie

Einfamilienhaus

  • Zustand: Neubau, projektiert

Energie & Heizung

Weitere Energiedaten

Heizungsart

Fußbodenheizung

Details

Objektbeschreibung

Der Hauspreis ist inklusive Grundstück.

Wichtig

Wir bauen mit sehr viel Herz unsere Häuser. Im Interesse der jeweiligen Grundstückseigentümer sowie meiner Bauherren werden wir ohne ein persönliches Gespräch zum Thema Hausbau, nie irgendwelche Grundstücksdaten weiterleiten. Keine Ausnahmen an dieser...

Mehr anzeigen

Ausstattung

Neben kurzen Bauzeiten, innovativer Haustechnik, attraktiver Architektur und hochwertiger Manufaktur-Qualität bietet Ihnen das angebotene Schwabenhaus im All-Inclusive-Paket folgende Mehr-Werte:

- Bodenplatte inklusive Effizienzhaus 55 Perimeter-Dämmung unterhalb der Bodenplatte sowie stirnseitig
- Effizienzhaus...

Mehr anzeigen

Weitere Informationen

Sonstiges
Wichtig

Wir bauen mit sehr viel Herz unsere Häuser. Im Interesse der jeweiligen Grundstückseigentümer sowie meiner Bauherren werden wir ohne ein persönliches Gespräch zum Thema Hausbau, nie irgendwelche Grundstücksdaten weiterleiten. Keine Ausnahmen an dieser Stelle.

Und... natürlich ist es selbst...

Mehr anzeigen

Anbieter der Immobilie

Partner

Schwabenhaus Wuppertal – Ralf Schleinecke Handelsvertretung für die Schwabenhaus GmbH

im Durchschnitt  1,00  Sterne
(bei 1 Bewertungen)

Fertighauswelt 18, 42279 Wuppertal

user

Ralf Schleinecke

Dein Ansprechpartner

Kontaktiere den Anbieter schriftlich, es ist keine Telefonnummer hinterlegt.

Anbieter-Website Anbieter-Profil Anbieter-Impressum

Online-ID: 2mdy95n

Referenznummer: HA-SOL-G-2-359647

Finde Angebote wie dieses

imageimageimage

Hier geht es zu unserem Impressum, den Allgemeinen Geschäftsbedingungen, den Hinweisen zum Datenschutz und nutzungsbasierter Online-Werbung.