
J&P Immobilienmakler GmbH
Herr Patrik Adler
+43 ···
Nr. anzeigenPreise & Kosten
Provision für Käufer
3%
Die Wohnung
Wohnungslage
Dachgeschoss
Bezug
nach Kaufvertrag
Wohnanlage
Energie & Heizung
Warum sehe ich diese Anzeige? – Du siehst diese Anzeige basierend auf Ihrer Navigation auf unserer Website und den Suchkriterien, die du verwendet hast.
Heizwärmebedarf (HWB)
120,80 kWh/(m²·a)
Gesamtenergieeffizienz (fGEE)
2,14
Details
Objektbeschreibung
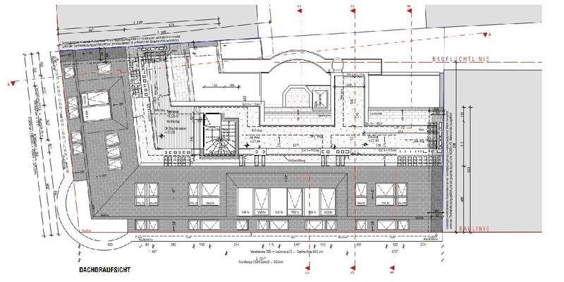
Zum Verkauf gelang ein Rohdachboden mit ca. 385 m² erzielbarer Nutzfläche sowie ca. 63 m² Freifläche ideal für ein modernes Ausbauprojekt.
Highlights:
Für das Dachgeschoss ist bereits die Integration einer modernen Luftwärmepumpe vorgesehen.
Im Zuge des geplanten Ausbaus werden die Loggien im Bestand gebaut...
Weitere Informationen
Stichworte
Anzahl Terrassen: 1, Balkon-Terrassen-Fläche: 63,00 m²
Anbieter der Immobilie
J&P Immobilienmakler GmbH
Lehargasse 7, 1060 WIEN
Online-ID: 2mej55l
Referenznummer: 101/18505
Finde Angebote wie dieses
Günstige Immobilienfinanzierung einfach online berechnen
Persönliches Angebot berechnenWarum sehe ich diese Werbung? – Du siehst diese Werbung basierend auf Deiner Navigation auf unserer Website und der von Dir verwendeten Suchkriterien.
Diese Werbung wird bezahlt von durchblicker
Werbung melden
Hier geht es zu unserem Impressum, den Allgemeinen Geschäftsbedingungen, den Hinweisen zum Datenschutz und nutzungsbasierter Online-Werbung.