Wohnung zum Kauf - Erstbezug • provisionsfrei675100 €675.100 €5.347 €/m²4 Zimmer • 126,3 m²
675100 €675.100 €
5.347 €/m²
4 Zimmer • 126,3 m²
PROVISIONSFREI - ANLAGEWOHNUNGSPREIS - NEUBAU |Klimatisiert | 4-Zimmer | Exklusive Neubau-Dachgeschosswohnung mit imposantem Dachterrassentraum mit An
ANLAGEWOHNUNGSPREIS - Exklusive Neubau-Dachgeschosswohnung mit imposantem Dachterrassentraum in Guntramsdorf Wohnung
Diese außergewöhnliche Dachgeschosswohnung vereint modernste Ausstattung, durchdachte Architektur und ein Maximum an Wohnkomfort - ein wahres Highlight für alle, die Großzügigkeit, Privatsphäre und stilvolles Wohnen zu schätzen wissen.
Schon beim Betreten empfängt Sie ein weitläufiges Vorzimmer, das dank einer elektrisch öffenbaren Lichtkuppel von Tageslicht durchflutet wird und gleichzeitig für frische Luft sorgt. Dieser einladende Bereich bietet nicht nur viel Platz für Garderobe und Stauraum, sondern auch den perfekten Empfangsraum für Familie und Gäste.
Die drei Schlafzimmer der Wohnung überzeugen allesamt mit großzügigen Fensterflächen, die die Räume mit Licht durchfluten und eine freundliche, einladende Atmosphäre schaffen. Ob als Elternschlafzimmer mit viel Platz für Schrank und Doppelbett, als Kinderzimmer oder als Homeoffice - die flexiblen Nutzungsmöglichkeiten eröffnen für jede Lebenssituation den passenden Rahmen.
Ein besonderes Highlight sind die durchgehend als Tageslichtbäder ausgeführten Badezimmer. Das erste, besonders großzügige Badezimmer verfügt über eine elektrisch öffenbare Lichtkuppel, eine große Badewanne, eine großzügige Walk-In-Dusche, zwei moderne Waschbecken sowie viel Stauraum. Das zweite Badezimmer ist mit verglaster Dusche, WC, Waschbecken, Waschmaschinenanschluss und Fenster ausgestattet und bietet modernen Komfort. In Kombination mit einem direkt angrenzenden Schlafzimmer ergibt sich hier die Möglichkeit, im höheren Alter diese apartmentähnlich für eine Pflegekraft zu verbinden. Sie hätte dadurch ihren eigenen Rückzugsort, die Möglichkeit, ihre eigene Wäsche zu waschen, und dennoch die Nähe, jederzeit vor Ort zu sein. Damit ist diese Wohnung auch für die Zukunft bestens durchdacht. Natürlich freuen sich auch die eigenen Kinder über ein eigenes Badezimmer.
Das Herzstück der Wohnung ist der offen gestaltete Wohn- und Essbereich. Der Küchenbereich bietet Platz für eine Kochinsel und lädt zu kulinarischen Momenten ein. Der angrenzende Essbereich schafft Raum für einen großen Esstisch, während der Wohnbereich mit genügend Platz für ein komfortables Sofa zum Zentrum für Entspannung und Geselligkeit wird. Die Möglichkeit, einen Schwedenofen im Eigenheim zu integrieren, verschafft weiteres Wohlbefinden. Besonders bemerkenswert sind die beiden direkt angrenzenden Außenflächen: ein Balkon und eine Terrasse, die je nach Tageszeit oder persönlichem Wunsch genutzt werden können - Morgensonne beim Frühstück, Abendsonne beim Glas Wein.
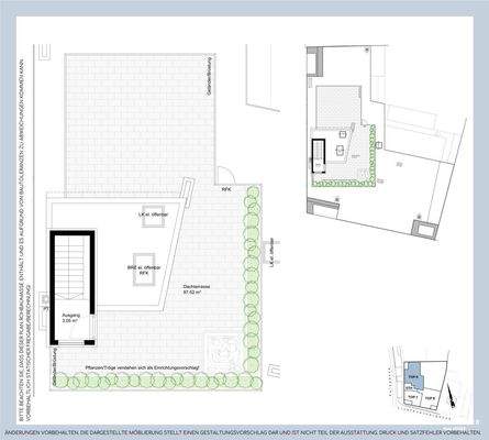
Das absolute Highlight dieser Wohnung ist jedoch die private Dachterrasse, die über eine private wohnungsinterne Innentreppe erreichbar ist. Sie bietet nicht nur eine beeindruckende Größe und Privatsphäre, sondern auch ein Ambiente, das Ihresgleichen sucht. Hier lassen sich sonnige Stunden mit der Familie ebenso genießen wie entspannte Feierabende oder stimmungsvolle Grillabende mit Freunden.
Auch im praktischen Bereich überzeugt die Wohnung auf ganzer Linie. Zwei großzügige Abstellräume innerhalb der Wohnung, einer davon mit zusätzlichem Waschmaschinenanschluss, bieten reichlich Stauraum.
Moderne Klimageräte in allen Schlafzimmern sowie im Wohn- und Essbereich sorgen für angenehme Temperaturen zu jeder Jahreszeit. Sämtliche Fenster sind mit elektrischen Außenraffstores ausgestattet, die für optimalen Sonnenschutz und Privatsphäre sorgen.
Abgerundet wird die hochwertige Ausstattung durch edlen Eichenparkettboden und großformatige 60x60 Feinsteinzeugfliesen. Für Sicherheit und Komfort steht Ihnen zudem eine moderne Videogegensprechanlage zur Verfügung.
Die Wohnung ist Teil einer exklusiven Wohnhausanlage mit nur acht Einheiten - ein seltener Luxus, der Privatsphäre und eine angenehme Nachbarschaft schafft. Im hauseigenen Garagenbereich stehen ausreichend Stellplätze zur Verfügung. Für diese Traumwohnung sind mindestens zwei Stellplätze reserviert, zusätzliche Plätze können nach Verfügbarkeit hinzugekauft werden. Eine Vorbereitung für E-Ladestationen ist selbstverständlich vorhanden.
Das Neubauprojekt liegt mitten im Altort von Guntramsdorf - im begehrten Speckgürtel Wiens - und vereint die Vorzüge einer ruhigen, charmanten Umgebung mit der urbanen Nähe zur Hauptstadt. Die moderne Architektur überzeugt durch klare Linien und lichtdurchflutete Räume, die ein einzigartiges Wohnklima schaffen. Ein Gemeinschaftsgarten, Fahrrad- und Kinderwagenabstellräume sowie private Einstellnischen im Erdgeschoss runden das Angebot perfekt ab.
Diese Dachgeschosswohnung ist ein echtes Unikat - großzügig, hell, mit perfekter Raumaufteilung und einer Dachterrasse, die Ihresgleichen sucht. Hier finden Sie ein Zuhause, das keine Wünsche offenlässt - heute, morgen und auch im hohen Alter.
Nutzen Sie die Gelegenheit und überzeugen Sie sich von dieser tollen Wohnung persönlich bei einer Besichtigung.
Selbstverständlich können Sie die Wohnung auch als Anlegerwohnungen erwerben.
Der Verkäufer übernimmt für Sie die Vermittlungsprovision der Firma Fabio Babler Real Estate e.U., für die erstmalige Vermietung!
Sie ersparen sich somit die Provisionszahlung in Höhe von 2 Bruttomonatsmieten zzgl. USt. als Vermieter für die erstmalige Vermietung Ihrer Anlegerwohnung und profitieren von entsprechenden Vormerkkunden.
ANLEGERPREIS: 675.100 € zzgl. 20% USt.
ENDKUNDENPREIS (Konsumentenpreis): 740.000 €
Diese außergewöhnliche Dachgeschosswohnung vereint modernste Ausstattung, durchdachte Architektur und ein Maximum an Wohnkomfort - ein wahres Highlight für alle, die Großzügigkeit, Privatsphäre und stilvolles Wohnen zu schätzen wissen.
Schon beim Betreten empfängt Sie ein weitläufiges Vorzimmer, das dank einer elektrisch öffenbaren Lichtkuppel von Tageslicht durchflutet wird und gleichzeitig für frische Luft sorgt. Dieser einladende Bereich bietet nicht nur viel Platz für Garderobe und Stauraum, sondern auch den perfekten Empfangsraum für Familie und Gäste.
Die drei Schlafzimmer der Wohnung überzeugen allesamt mit großzügigen Fensterflächen, die die Räume mit Licht durchfluten und eine freundliche, einladende Atmosphäre schaffen. Ob als Elternschlafzimmer mit viel Platz für Schrank und Doppelbett, als Kinderzimmer oder als Homeoffice - die flexiblen Nutzungsmöglichkeiten eröffnen für jede Lebenssituation den passenden Rahmen.
Ein besonderes Highlight sind die durchgehend als Tageslichtbäder ausgeführten Badezimmer. Das erste, besonders großzügige Badezimmer verfügt über eine elektrisch öffenbare Lichtkuppel, eine große Badewanne, eine großzügige Walk-In-Dusche, zwei moderne Waschbecken sowie viel Stauraum. Das zweite Badezimmer ist mit verglaster Dusche, WC, Waschbecken, Waschmaschinenanschluss und Fenster ausgestattet und bietet modernen Komfort. In Kombination mit einem direkt angrenzenden Schlafzimmer ergibt sich hier die Möglichkeit, im höheren Alter diese apartmentähnlich für eine Pflegekraft zu verbinden. Sie hätte dadurch ihren eigenen Rückzugsort, die Möglichkeit, ihre eigene Wäsche zu waschen, und dennoch die Nähe, jederzeit vor Ort zu sein. Damit ist diese Wohnung auch für die Zukunft bestens durchdacht. Natürlich freuen sich auch die eigenen Kinder über ein eigenes Badezimmer.
Das Herzstück der Wohnung ist der offen gestaltete Wohn- und Essbereich. Der Küchenbereich bietet Platz für eine Kochinsel und lädt zu kulinarischen Momenten ein. Der angrenzende Essbereich schafft Raum für einen großen Esstisch, während der Wohnbereich mit genügend Platz für ein komfortables Sofa zum Zentrum für Entspannung und Geselligkeit wird. Die Möglichkeit, einen Schwedenofen im Eigenheim zu integrieren, verschafft weiteres Wohlbefinden. Besonders bemerkenswert sind die beiden direkt angrenzenden Außenflächen: ein Balkon und eine Terrasse, die je nach Tageszeit oder persönlichem Wunsch genutzt werden können - Morgensonne beim Frühstück, Abendsonne beim Glas Wein.
Das absolute Highlight dieser Wohnung ist jedoch die private Dachterrasse, die über eine private wohnungsinterne Innentreppe erreichbar ist. Sie bietet nicht nur eine beeindruckende Größe und Privatsphäre, sondern auch ein Ambiente, das Ihresgleichen sucht. Hier lassen sich sonnige Stunden mit der Familie ebenso genießen wie entspannte Feierabende oder stimmungsvolle Grillabende mit Freunden.
Auch im praktischen Bereich überzeugt die Wohnung auf ganzer Linie. Zwei großzügige Abstellräume innerhalb der Wohnung, einer davon mit zusätzlichem Waschmaschinenanschluss, bieten reichlich Stauraum.
Moderne Klimageräte in allen Schlafzimmern sowie im Wohn- und Essbereich sorgen für angenehme Temperaturen zu jeder Jahreszeit. Sämtliche Fenster sind mit elektrischen Außenraffstores ausgestattet, die für optimalen Sonnenschutz und Privatsphäre sorgen.
Abgerundet wird die hochwertige Ausstattung durch edlen Eichenparkettboden und großformatige 60x60 Feinsteinzeugfliesen. Für Sicherheit und Komfort steht Ihnen zudem eine moderne Videogegensprechanlage zur Verfügung.
Die Wohnung ist Teil einer exklusiven Wohnhausanlage mit nur acht Einheiten - ein seltener Luxus, der Privatsphäre und eine angenehme Nachbarschaft schafft. Im hauseigenen Garagenbereich stehen ausreichend Stellplätze zur Verfügung. Für diese Traumwohnung sind mindestens zwei Stellplätze reserviert, zusätzliche Plätze können nach Verfügbarkeit hinzugekauft werden. Eine Vorbereitung für E-Ladestationen ist selbstverständlich vorhanden.
Das Neubauprojekt liegt mitten im Altort von Guntramsdorf - im begehrten Speckgürtel Wiens - und vereint die Vorzüge einer ruhigen, charmanten Umgebung mit der urbanen Nähe zur Hauptstadt. Die moderne Architektur überzeugt durch klare Linien und lichtdurchflutete Räume, die ein einzigartiges Wohnklima schaffen. Ein Gemeinschaftsgarten, Fahrrad- und Kinderwagenabstellräume sowie private Einstellnischen im Erdgeschoss runden das Angebot perfekt ab.
Diese Dachgeschosswohnung ist ein echtes Unikat - großzügig, hell, mit perfekter Raumaufteilung und einer Dachterrasse, die Ihresgleichen sucht. Hier finden Sie ein Zuhause, das keine Wünsche offenlässt - heute, morgen und auch im hohen Alter.
Nutzen Sie die Gelegenheit und überzeugen Sie sich von dieser tollen Wohnung persönlich bei einer Besichtigung.
Selbstverständlich können Sie die Wohnung auch als Anlegerwohnungen erwerben.
Der Verkäufer übernimmt für Sie die Vermittlungsprovision der Firma Fabio Babler Real Estate e.U., für die erstmalige Vermietung!
Sie ersparen sich somit die Provisionszahlung in Höhe von 2 Bruttomonatsmieten zzgl. USt. als Vermieter für die erstmalige Vermietung Ihrer Anlegerwohnung und profitieren von entsprechenden Vormerkkunden.
ANLEGERPREIS: 675.100 € zzgl. 20% USt.
ENDKUNDENPREIS (Konsumentenpreis): 740.000 €
Merkmale
- Bezug: ab Sofort
- Haustiere erlaubt
- Personenaufzug
- 2 Stellplätze: 2 Garagen
- Gäste-WC
- Balkon
- Garten
- Terrasse
Grundrisse
Grundrisse
1 / 2
Bausubstanz und Energie
Heizwärmebedarf (HWB)
B
Gesamtenergieeffizienz (fGEE)
A+
- Baujahr2023
- Zustand der ImmobilieErstbezug
- HeizungsartZentralheizung: Fußbodenheizung
- EnergieträgerLuft-/Wasser-Wärmepumpe
Preisdetails
Kaufpreis
675100 €675.100 €
5.347,33 €/m²
Preis pro Stellplatz
24000 €24.000 €
Provision für Käufer
provisionsfrei
Weitere Preisinformationen
2 Garagenstellplätze, Kaufpreis je: 24.000,00 EUR
Lage

Guntramsdorf (2353)
Der Anbieter hat die genaue Adresse nicht freigegeben
INFRASTRUKTUR.
In einer sehr zentralen Lage im Wohlfühlort Guntramsdorf, entsteht diese moderne freifinanzierte Wohnhausanlage.
Guntramsdorf bieten Ihnen an diesem Standort hohe Lebensqualität, dichte Infrastruktur im Zusammenhang mit viel Grün und dadurch hohem Freizeitwert.
Genießen Sie die umliegenden Weingärten zum Spazieren sowie verschiedene kulturelle Veranstaltungen, ohne Abhängigkeit von Auto und öffentlichen Verkehrsmitteln.
Nahversorgung:
Diverse Supermärkte und Geschäfte des täglichen Bedarfs stehen in unmittelbarer Nähe zur Verfügung.
Ein Bipa, die Bäckerei DerMann, ein Biohofladen, Billa wie auch ein Hofer sind sogar fußläufig rasch erreichbar. Ein Spar, Penny Markt und Lidl sind ebenfalls nur wenigen Minuten entfernt.
Das Rathaus der Marktgemeinde Guntramsdorf, diverse Arztpraxen, die Apotheke, die Raiffeisen, die Sparkasse Baden sowie die Post können schnell zu Fuß erreicht werden. Auch die "SCS" ist mit dem Auto oder der Badner Bahn rasch erreicht.
Ausbildung:
Guntramsdorf bietet mehrere Kindergärten, sowie Volksschulen, welche in wenigen Gehminuten erreicht sind. Die Mittelschule sowie das Oberstufenreal- und Oberstufensportgymnasium bieten die Möglichkeit der Absolvierung einer qualifizierten Schulausbildung direkt im Ort und liegen lediglich 9 Minuten zu Fuß von Ihrem neuen Zuhause entfernt.
Weiters liegt Guntramsdorf direkt neben der Stadtgemeinde Mödling, welche weit über die Bezirksgrenzen als die Schulstadt bekannt ist.
In Mödling ergänzen verschiedenste Schul- und Ausbildungsstätten das guntramsdorfer Bildungsangebot. Verschiedene Montessori-Einrichtungen, Gymnasien sowie die HTL, HAK oder Modeschule sind rasch mit dem Fahrrad oder auch öffentlich erreicht. Die Universitäten in Wien, vervollständigen die Ausbildungsmöglichkeiten.
Freizeit und Erholung:
Guntramsdorf bietet ein breites Spektrum an Freizeitangeboten.
Zahlreiche Kinderspielplätze und Freilandgebiete sollen die Bewegung in frischer Luft fördern.
Diverse Erholungsgebiete, Badeteiche, Hundefreilaufzonen, Rad- und Wanderwege, diverse Sportanlagen, der Golf & Country Club Brunn am Gebirge, der Golfclub Wien-Achau, der Schlosspark Laxenburg sowie eine Vielzahl an Fitnessstudios sorgen für Abwechslung und liegen in unmittelbarer Nähe.
Die Gastronomie in Guntramsdorf bietet alles, was die Lebensqualität und Lebensfreude steigert. Vom kleinen Café bis zum Restaurant für den besonderen Abend gibt es die verschiedensten Möglichkeiten.
Die zahlreichen zu Fuß erreichbaren Heurigen runden das Angebot mit Spitzenweinen und deftigen Heurigenjausen ab. Das bekannte "Stadttheater Mödling" bietet regelmäßig Unterhaltung mit verschiedenen kulturellen Veranstaltungen und auch das benachbarte Laxenburg, Brunn am Gebirge, Maria Enzersdorf und Perchtoldsdorf sind ein Anziehungspunkt in Sachen Kulinarik, Kunst und Kultur.
Erreichbarkeit:
Die Erschließung der Liegenschaft erfolgt über die Feldgasse bzw. die Lichteneckergasse. Öffentliche Verkehrsmittel, wie die Badner Bahn (Trambahn) der Wiener Lokalbahnen, welche Sie direkt ins Wiener Zentrum wie auch nach Baden bringt, sowie die Busline 221 und 363 befinden sich innerhalb 3 Gehminuten.
Der Bahnhof "Guntramsdorf Thallern" (R4, S1, S2, S3, S4) befindet sich lediglich 18 Minuten zu Fuß bzw. ca. 8 Minuten mit dem Fahrrad entfernt und bietet Ihnen eine zusätzliche optimale öffentliche Anbindung. Weiters steht der Bahnhof "Guntramsdorf Kaiserau Bahnhof" (R95) zur Verfügung, welcher ebenfalls fußläufig in lediglich 17 Gehminuten erreicht ist und fährt Sie bis zum Wiener Hauptbahnhof sowie Wiener Neustadt Hauptbahnhof.
Die Autobahnauffahrt liegt lediglich 10 Minuten entfernt. Direkt in 3 Gehminuten entfernten Zentrum von Guntramsdorf, finden Sie eine E-Car-Sharing-Station. Nahversorger, Supermärkte, Restaurants, Drogeriemärkte, Sportzentren, Allgemeinmediziner, Krankenhaus Mödling, Apotheken, Schulen, Kindergärten und vieles mehr befinden sich teilweise sogar fußläufig in unmittelbarer Nähe. Natürlich ist die SCS wie auch Wien durch die optimale Anbindung ebenfalls rasch erreichbar.
Ebenfalls schnell erreicht ist die U6 Station Siebenhirten. Diese kann öffentlich oder auch mit dem Auto erreicht werden. Die Park + Ride Garagen in Liesing und Siebenhirten bieten Platz um Ihr Auto abzustellen und direkt in der Kernzone Wien öffentlich unterwegs zu sein.
Die Wiener Innenstadt sowie sämtliche andere Ziele sind rasch und unkompliziert erreichbar. Egal ob Sie öffentlich oder mit dem Auto unterwegs sind.
In einer sehr zentralen Lage im Wohlfühlort Guntramsdorf, entsteht diese moderne freifinanzierte Wohnhausanlage.
Guntramsdorf bieten Ihnen an diesem Standort hohe Lebensqualität, dichte Infrastruktur im Zusammenhang mit viel Grün und dadurch hohem Freizeitwert.
Genießen Sie die umliegenden Weingärten zum Spazieren sowie verschiedene kulturelle Veranstaltungen, ohne Abhängigkeit von Auto und öffentlichen Verkehrsmitteln.
Nahversorgung:
Diverse Supermärkte und Geschäfte des täglichen Bedarfs stehen in unmittelbarer Nähe zur Verfügung.
Ein Bipa, die Bäckerei DerMann, ein Biohofladen, Billa wie auch ein Hofer sind sogar fußläufig rasch erreichbar. Ein Spar, Penny Markt und Lidl sind ebenfalls nur wenigen Minuten entfernt.
Das Rathaus der Marktgemeinde Guntramsdorf, diverse Arztpraxen, die Apotheke, die Raiffeisen, die Sparkasse Baden sowie die Post können schnell zu Fuß erreicht werden. Auch die "SCS" ist mit dem Auto oder der Badner Bahn rasch erreicht.
Ausbildung:
Guntramsdorf bietet mehrere Kindergärten, sowie Volksschulen, welche in wenigen Gehminuten erreicht sind. Die Mittelschule sowie das Oberstufenreal- und Oberstufensportgymnasium bieten die Möglichkeit der Absolvierung einer qualifizierten Schulausbildung direkt im Ort und liegen lediglich 9 Minuten zu Fuß von Ihrem neuen Zuhause entfernt.
Weiters liegt Guntramsdorf direkt neben der Stadtgemeinde Mödling, welche weit über die Bezirksgrenzen als die Schulstadt bekannt ist.
In Mödling ergänzen verschiedenste Schul- und Ausbildungsstätten das guntramsdorfer Bildungsangebot. Verschiedene Montessori-Einrichtungen, Gymnasien sowie die HTL, HAK oder Modeschule sind rasch mit dem Fahrrad oder auch öffentlich erreicht. Die Universitäten in Wien, vervollständigen die Ausbildungsmöglichkeiten.
Freizeit und Erholung:
Guntramsdorf bietet ein breites Spektrum an Freizeitangeboten.
Zahlreiche Kinderspielplätze und Freilandgebiete sollen die Bewegung in frischer Luft fördern.
Diverse Erholungsgebiete, Badeteiche, Hundefreilaufzonen, Rad- und Wanderwege, diverse Sportanlagen, der Golf & Country Club Brunn am Gebirge, der Golfclub Wien-Achau, der Schlosspark Laxenburg sowie eine Vielzahl an Fitnessstudios sorgen für Abwechslung und liegen in unmittelbarer Nähe.
Die Gastronomie in Guntramsdorf bietet alles, was die Lebensqualität und Lebensfreude steigert. Vom kleinen Café bis zum Restaurant für den besonderen Abend gibt es die verschiedensten Möglichkeiten.
Die zahlreichen zu Fuß erreichbaren Heurigen runden das Angebot mit Spitzenweinen und deftigen Heurigenjausen ab. Das bekannte "Stadttheater Mödling" bietet regelmäßig Unterhaltung mit verschiedenen kulturellen Veranstaltungen und auch das benachbarte Laxenburg, Brunn am Gebirge, Maria Enzersdorf und Perchtoldsdorf sind ein Anziehungspunkt in Sachen Kulinarik, Kunst und Kultur.
Erreichbarkeit:
Die Erschließung der Liegenschaft erfolgt über die Feldgasse bzw. die Lichteneckergasse. Öffentliche Verkehrsmittel, wie die Badner Bahn (Trambahn) der Wiener Lokalbahnen, welche Sie direkt ins Wiener Zentrum wie auch nach Baden bringt, sowie die Busline 221 und 363 befinden sich innerhalb 3 Gehminuten.
Der Bahnhof "Guntramsdorf Thallern" (R4, S1, S2, S3, S4) befindet sich lediglich 18 Minuten zu Fuß bzw. ca. 8 Minuten mit dem Fahrrad entfernt und bietet Ihnen eine zusätzliche optimale öffentliche Anbindung. Weiters steht der Bahnhof "Guntramsdorf Kaiserau Bahnhof" (R95) zur Verfügung, welcher ebenfalls fußläufig in lediglich 17 Gehminuten erreicht ist und fährt Sie bis zum Wiener Hauptbahnhof sowie Wiener Neustadt Hauptbahnhof.
Die Autobahnauffahrt liegt lediglich 10 Minuten entfernt. Direkt in 3 Gehminuten entfernten Zentrum von Guntramsdorf, finden Sie eine E-Car-Sharing-Station. Nahversorger, Supermärkte, Restaurants, Drogeriemärkte, Sportzentren, Allgemeinmediziner, Krankenhaus Mödling, Apotheken, Schulen, Kindergärten und vieles mehr befinden sich teilweise sogar fußläufig in unmittelbarer Nähe. Natürlich ist die SCS wie auch Wien durch die optimale Anbindung ebenfalls rasch erreichbar.
Ebenfalls schnell erreicht ist die U6 Station Siebenhirten. Diese kann öffentlich oder auch mit dem Auto erreicht werden. Die Park + Ride Garagen in Liesing und Siebenhirten bieten Platz um Ihr Auto abzustellen und direkt in der Kernzone Wien öffentlich unterwegs zu sein.
Die Wiener Innenstadt sowie sämtliche andere Ziele sind rasch und unkompliziert erreichbar. Egal ob Sie öffentlich oder mit dem Auto unterwegs sind.
Weitere Informationen
Sonstiges
.
WIR HABEN IHR INTERESSE GEWECKT?
Gerne übermitteln wir Ihnen den Vorabzug der Verkaufsunterlagen und stehen Ihnen auch gerne persönlich zur Verfügung.
Wir bitten um Verständnis, das wir auf Grund der "Nachweispflicht" gegenüber dem Eigentümer, ausschließlich Anfragen mit vollständiger Angabe der Kontaktdaten (Name, Adresse, E- Mail und Telefonnummer) bearbeiten können.
Alle Angaben beruhen auf Informationen des Eigentümers und sind daher ohne Gewähr und Haftung.
Bei Interesse, weiteren Fragen oder dem Wunsch nach einer Besichtigung, steht Ihnen Herr Ing. Fabio Babler unter Mobil 0660/60 77 306 oder unter E-Mail jederzeit sehr gerne zur Verfügung!
Wir freuen uns über Ihr Interesse und Ihre Anfrage! Stichworte Ost-Süd-West-Balkon/Terrasse, Fahrradraum, Anzahl der Schlafzimmer: 3, Anzahl der Badezimmer: 2, Anzahl der separaten WCs: 2, Anzahl Balkone: 1, Anzahl Terrassen: 2, Balkon-Terrassen-Fläche: 115,41 m², Bundesland: Niederösterreich, Distanz zum Kindergarten: 0.40, Distanz zur Grundschule: 0.40, Distanz zur nächsten Einkaufsmöglichkeit: 0.25, Distanz zum Gymnasium: 0.75, Distanz zum Flughafen: 27.60, Distanz zur Autobahn: 2.26, Distanz zu U-/S-Bahn: 9.40, Distanz zum Bus: 0.25, Distanz vom Zentrum: 0.25, Distanz zur Hauptschule: 1.00
WIR HABEN IHR INTERESSE GEWECKT?
Gerne übermitteln wir Ihnen den Vorabzug der Verkaufsunterlagen und stehen Ihnen auch gerne persönlich zur Verfügung.
Wir bitten um Verständnis, das wir auf Grund der "Nachweispflicht" gegenüber dem Eigentümer, ausschließlich Anfragen mit vollständiger Angabe der Kontaktdaten (Name, Adresse, E- Mail und Telefonnummer) bearbeiten können.
Alle Angaben beruhen auf Informationen des Eigentümers und sind daher ohne Gewähr und Haftung.
Bei Interesse, weiteren Fragen oder dem Wunsch nach einer Besichtigung, steht Ihnen Herr Ing. Fabio Babler unter Mobil 0660/60 77 306 oder unter E-Mail jederzeit sehr gerne zur Verfügung!
Wir freuen uns über Ihr Interesse und Ihre Anfrage! Stichworte Ost-Süd-West-Balkon/Terrasse, Fahrradraum, Anzahl der Schlafzimmer: 3, Anzahl der Badezimmer: 2, Anzahl der separaten WCs: 2, Anzahl Balkone: 1, Anzahl Terrassen: 2, Balkon-Terrassen-Fläche: 115,41 m², Bundesland: Niederösterreich, Distanz zum Kindergarten: 0.40, Distanz zur Grundschule: 0.40, Distanz zur nächsten Einkaufsmöglichkeit: 0.25, Distanz zum Gymnasium: 0.75, Distanz zum Flughafen: 27.60, Distanz zur Autobahn: 2.26, Distanz zu U-/S-Bahn: 9.40, Distanz zum Bus: 0.25, Distanz vom Zentrum: 0.25, Distanz zur Hauptschule: 1.00
Weitere Services
Lust auf eine Besichtigung?
Eine Frage zur Immobilie?
Über den Anbieter
Pöllangraben 46, 2345 BRUNN AM GEBIRGE
Partnerschaft
Herr Fabio BablerDein Kontakt
Online-ID: 254HBYV8RAW3
Referenznummer: FBRE-2025-00297
Wie zufrieden bist du mit dieser Seite (nicht mit der Immobilie selbst)?


