
Lechner Immobilien Development GmbH
Herr Eric Jost
016 ···
Nr. anzeigenPreise & Kosten
Provision für Käufer
provisionsfrei
Lage
Riedberg, Frankfurts jüngster Stadtteil, Universitäts- und Wissenschaftsstandort, hat sich in den letzten Jahren zu einem der gefragtesten Wohnquartiere der Mainmetropole entwickelt. Dabei hat die Architektur der rund 1.000 fertiggestellten Wohneinheiten der LECHNER GROUP einen bedeutenden Beitrag zu dieser Entwicklung...
Das Haus
Kategorie
Einfamilienhaus
Baujahr
2027
Bezug
Sommer 2027
Energie & Heizung
Warum sehe ich diese Anzeige? – Du siehst diese Anzeige basierend auf Ihrer Navigation auf unserer Website und den Suchkriterien, die du verwendet hast.
Weitere Energiedaten
Haustyp
Massivhaus
Energieträger
Fernwärme
Heizungsart
Zentralheizung
Details
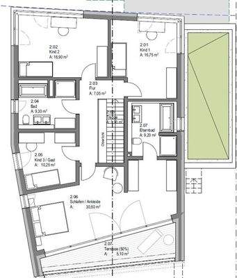
Objektbeschreibung
Hier können Sie Ihren individuellen Wohntraum verwirklichen: Basierend auf dem Planungskonzept »View« des renommierten Darmstädter Architekturbüros planquadrat haben Sie die Möglichkeit, Ihre Vorstellungen hinsichtlich Raumplanung, Ausstattungswünschen und Fassadengestaltung gemeinsam mit den Architekten bis zur Baureife zu...
Ausstattung
Zum Ausstattungs- bzw. Leistungsumfang gehören unter anderem:
- Fußbodenheizung
- KfW55-Standard (GEG)
- Tageslichtbäder mit Dusche und Badewanne
- Gäste-WC
- Eichenparkett
- Hochwertige Wand- und Bodenfliesen
- Exklusive Sanitärobjekte
- Handtuchheizkörper in den Bädern
- Terrasse im EG
-...
Preisinformation
2 Garagenstellplätze
Weitere Informationen
Sonstiges
Das Grundstück wird von der Frankfurter Stiftung Waisenhaus gegen einen monatlichen Erbpachtzins in Höhe von 641,12 € an Sie verpachtet. Sie sparen damit die hohen Finanzierungskosten des Grundstücksanteils. Der Erbbaurechtsvertrag hat eine Laufzeit bis zum 31.12.2113.
Kompetente Beratung auch am...
Anbieter der Immobilie
Lechner Immobilien Development GmbH
Altenhöfer Allee 133, 60438 Frankfurt
Online-ID: 2melh53
Referenznummer: WestVillen_35
Finde Angebote wie dieses
Hier geht es zu unserem Impressum, den Allgemeinen Geschäftsbedingungen, den Hinweisen zum Datenschutz und nutzungsbasierter Online-Werbung.