




1 / 25



1 / 25

Wohnung zum Kauf - Erstbezug304325.56 €304.326 €5.468 €/m²2 Zimmer • 55,7 m² • 2. Geschoss
304325.56 €304.326 €
5.468 €/m²
2 Zimmer • 55,7 m² • 2. Geschoss
Investieren und profitieren - tolle Anlegerwohnung (Nettopreis) im Erstbezugs-Neubau mit Loggia in Hofruhelage auf Eigengrund! - JETZT ZUSCHLAGEN
IHR WOHNTRAUM WIRD REALITÄT - Eigengrund in Bestlage (U1 und Nähe Alte Donau) mit energieeffizienter Wärmepumpe
In hervorragender Lage des 22.Bezirks - in unmittelbarer Nähe zur U-Bahn-Linie U1 und somit mit einer ausgezeichneten Anbindung an die Wiener Innenstadt sowie die Alte Donau als auch dem Donauzentrum - wurde dieser moderne Neubau realisiert. Die Wohnungen sind sofort beziehbar und kommen als Erstbezug zum Verkauf.
Als besonderes Highlight ist die Lage auf einen Eigengrund zu erwähnen. Eine Rarität in diesen Lagen, da hier meist lediglich Baurechtsgründe zur Verfügung stehen.
Bei der Realisierung der Liegenschaft wurde Wert auf eine hochwertige Ausstattung und durchdachte Grundrisse, großteils mit Freiflächen, gelegt. Die Beheizung erfolgt über eine energieeffiziente Wärmepumpe und das letzte Dachgeschoss wurde bereits mit einer Klimaanlage ausgerüstet.
Die Lage ist sowohl bei Jung und Alt absolut begehrt. Hier trifft Land auf Stadt - Grün auf Urban. Sie entscheiden, ob Sie einen entspannten Spaziergang entlang der Donau auskosten oder direkt mit der U-Bahn am Stephansplatz aussteigen und die Vorzüge der Wiener Innenstadt genießen möchten - in wenigen Minuten stehen Ihnen beide Möglichkeiten zur Verfügung.
Highlights:
* Eigengrund - eine Rarität in diesen Lagen
* Erstklassiges Wohnerlebnis in einem sofort beziehbaren Erstbezugs-Neubau
* hervorragende Infrastruktur und Nahversorgung - unmittelbare Nähe zur U1 - Kagraner Platz / Alte Donau / Donauzentrum
* moderne und hochwertige Ausstattung
* PKW-Stellplätze in der hauseigenen Tiefgarage
* durchdachte Grundrisse mit geräumigen Freiflächen - ideal für Familien, Paare und Singles
Ausstattungsstandard:
Bei der Realisierung des Neubaus wurde folgende hochwertige Ausstattung ausgeführt:
* Vollwärmeschutzfassade (geringer Heizwärmebedarf = geringe Heizkosten)
* Lift
* Fußbodenheizung (betrieben als Zentralheizung über eine energieeffiziente Wärmepumpe)
* 3-fach isolierverglaste Kunststoff-/Alufenster
* elektrischer Sonnenschutz mit Rollläden
* Parkettboden
* großformatige Fliesen 30x60cm (in den Nassbereichen)
* hochwertige Sanitäreinrichtung
* Sicherheitseingangstüre
* Klimaanlagen im letzten DG
* Kellerabteile
* Fahrradabstell- und Kinderwagenraum
* Tiefgaragenstellplätze
Wohnung Top 7:
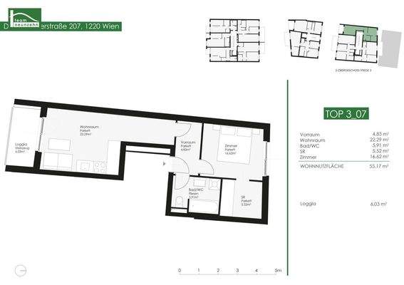
Die 2-Zimmer-Wohnung mit ca. 55,17 m² Wohnfläche und ca. 6,03 m² Loggia befindet sich im 2. OG und ist nach Süden ausgerichtet.
Über den Vorraum erreichen Sie bequem die Wohnküche, das Schlafzimmer und das Badezimmer mit WC. Über die Wohnküche gelangen Sie mit direktem Zugang auf die Loggia. Die Raumaufteilung der Wohnung gliedert sich wie folgt:
* Vorraum 4,83 m²
* Bad mit Dusche und Handwaschbecken 5,91 m²
* SR 5,52 m²
* Wohnküche 22,29 m²
* Zimmer 16,62 m²
Einige Bilder des Inserats wurden zum Zweck der besseren Visualisierung digital mit KI möbliert. Die Wohnung wird unmöbliert übergeben.
Kaufpreis:
Der Kaufpreis beläuft sich auf 329.000,00 € für den Endnutzer. Der Anlegerkaufpreis beträgt 304.325,00 € Netto zzgl. 20% USt.
Ein Tiefgargenstellplatz kann zu einem Preis von 30.000, -- € (Anleger: 27.634,49 € Netto zzgl. 20% USt.) erworben werden.
Provision: 3% des Kaufpreises zzgl. 20% USt. bei Willensübereinkunft.
Infrastruktur:
Auf Grund der unmittelbaren Lage direkt beim "Kagraner Platz" und somit auch zur U-Bahn U1 - Kagraner Platz sowie der sehr guten Erreichbarkeit der "Alten Donau" (nur 2 U-Bahn-Station entfernt), handelt es sich hierbei um eine der begehrtesten Wiener Lagen. Für Sportbegeisterte steht zusätzlich zu den Flächen rund um die Alte Donau auch die "Steffl Arena" ums Eck zur Verfügung. Zwei Fitnessstudios sind ebenso fußläufig zu erreichen. Die UNO-City, das VIC (Vienna International Center) sowie der DC-Tower sind in wenigen U-Bahn-Stationen zu erreichen.
Durch die tolle öffentliche Verkehrsanbindung
* U1 - "Kagraner Platz"
* Straßenbahn 25, 26
* Buslinie 22A, 24A, 27A, 31A
erreichen Sie auch das Stadtzentrum von Wien (Stephansplatz, Schwedenplatz, Praterstern uvm.) in wenigen Augenblicken.
Die Nahversorgung ist durch das Einkaufszentrum "K1" sowie das rasch erreichbare Donauzentrum hervorragend. Hier stehen Ihnen von Supermärkten, Shops, Apotheken, Restaurants, Cafés, Sporteinrichtungen, Ärzte u.dgl. alles zur Verfügung. Einige Supermärkte (z.b. Billa) befinden sich nahezu ums Eck - somit fehlt es Ihnen hier an nichts.
Dank der Nähe zu Schulen, einem Kindergarten und der Veterinärmedizinischen UNI Wien ist die moderne Wohnanlage auch für Familien ein idealer Wohnort. Die kulinarischen Wünsche werden durch zahlreiche Restaurants in unmittelbarer Nähe abgedeckt.
Energieausweis:
Der Energieausweis beläuft sich auf 33,5 kWh/m²a, welcher der Klasse B entspricht. (FGEE: 0,78 - Klasse A)
Für Fragen bzw. Besichtigungen steht Ihnen Herr Benjamin Pippan sehr gerne unter pippan@teamneunzehn.at sowie unter 0660 317 21 60 zur Verfügung.
Wir weisen darauf hin, dass zwischen dem Vermittler und dem zu vermittelnden Dritten ein familiäres oder wirtschaftliches Naheverhältnis besteht.
"Leben braucht Raum" * T19-RE Real Estate GmbH & Co KG * www.teamneunzehn.at [https://www.teamneunzehn.at]
Doppelmakler
Wir werden als Immobilienmakler kraft bestehenden Geschäftsgebrauchs als Doppelmakler tätig und haben sohin beide Seiten des Vertrages (Verkäufer-Käufer, Vermieter-Mieter) zu unterstützen.
Wirtschaftliches Naheverhältnis
Es wird bekannt gegeben, dass folgendes wirtschaftliches Naheverhältnis zwischen der teamneunzehn-Gruppe und dem Verkäufer/der vermietenden Partei besteht: ständige und dauerhafte Beauftragung mit der Vermittlung des bestehenden Immobilienportfolios
Haftungserklärung zum Inserat
Irrtum und Änderungen vorbehalten! Sofern es sich bei Bildern um Visualisierungen handelt, können Abänderungen zur tatsächlichen Ausführung resultieren. Wir weisen ausdrücklich darauf hin, dass das auf Fotos oder Visualisierungen ersichtliche Mobiliar bzw. Inventar nicht Bestandteil des inserierten Preises ist.
Sorgenfrei vermieten - Rundum-Servicepakete für Anleger
Sie möchten nach Erwerb Ihrer Immobilie mit der Vermietung sowie den Mietabrechnungen und eventuellen Fragen während des Mietverhältnisses nicht beschäftigt sein? Wir bieten verschiedene und maßgeschneiderte Konzepte rund um unser Dienstleistungsprogramm »sorgenfrei vermieten«. Unsere Mitarbeiter freuen sich auf Ihre unverbindliche Anfrage unter sorgenfreivermieten@teamneunzehn.at
Finanzierungsservice - Ihre Wunschimmobilie optimal finanziert
Um Ihnen bei der Finanzierung Ihrer neuen Wohnung Zeit und Geld zu sparen, stehen Ihnen unsere Finanzierungsprofis mit Rat und Tat zur Seite. Wir führen für Sie unverbindlich und kostenlos einen unabhängigen Vergleich der unterschiedlichen Kreditkonditionen durch und verhelfen Ihnen zum optimalen Angebot. Wir werden sofort nach Ihrer unverbindlichen Kontaktaufnahme unter finanzierung@teamneunzehn.at aktiv.
Maßgefertigte Tischlerküchen zum fairen Preis
Vollkommen transparent mit Fingerspitzengefühl und individuell sorgen wir für die Verwirklichung der auf Ihre Immobilie und Wünsche zugeschnittenen Maßküchen- und Möbel, welche insbesondere durch attraktive Preise bei höchster Qualität punkten können. Gerne beraten wir auch Sie, bitte wenden Sie sich zur anschließenden Kontaktaufnahme an kueche@teamneunzehn.at
Infrastruktur / Entfernungen
Gesundheit
Arzt <50m
Apotheke <275m
Klinik <2.775m
Krankenhaus <2.800m
Kinder & Schulen
Schule <300m
Kindergarten <175m
Universität <550m
Höhere Schule <550m
Nahversorgung
Supermarkt <300m
Bäckerei <575m
Einkaufszentrum <900m
Sonstige
Geldautomat <550m
Bank <550m
Post <700m
Polizei <825m
Verkehr
Bus <50m
U-Bahn <525m
Straßenbahn <50m
Bahnhof <575m
Autobahnanschluss <2.150m
Angaben Entfernung Luftlinie / Quelle: OpenStreetMap
In hervorragender Lage des 22.Bezirks - in unmittelbarer Nähe zur U-Bahn-Linie U1 und somit mit einer ausgezeichneten Anbindung an die Wiener Innenstadt sowie die Alte Donau als auch dem Donauzentrum - wurde dieser moderne Neubau realisiert. Die Wohnungen sind sofort beziehbar und kommen als Erstbezug zum Verkauf.
Als besonderes Highlight ist die Lage auf einen Eigengrund zu erwähnen. Eine Rarität in diesen Lagen, da hier meist lediglich Baurechtsgründe zur Verfügung stehen.
Bei der Realisierung der Liegenschaft wurde Wert auf eine hochwertige Ausstattung und durchdachte Grundrisse, großteils mit Freiflächen, gelegt. Die Beheizung erfolgt über eine energieeffiziente Wärmepumpe und das letzte Dachgeschoss wurde bereits mit einer Klimaanlage ausgerüstet.
Die Lage ist sowohl bei Jung und Alt absolut begehrt. Hier trifft Land auf Stadt - Grün auf Urban. Sie entscheiden, ob Sie einen entspannten Spaziergang entlang der Donau auskosten oder direkt mit der U-Bahn am Stephansplatz aussteigen und die Vorzüge der Wiener Innenstadt genießen möchten - in wenigen Minuten stehen Ihnen beide Möglichkeiten zur Verfügung.
Highlights:
* Eigengrund - eine Rarität in diesen Lagen
* Erstklassiges Wohnerlebnis in einem sofort beziehbaren Erstbezugs-Neubau
* hervorragende Infrastruktur und Nahversorgung - unmittelbare Nähe zur U1 - Kagraner Platz / Alte Donau / Donauzentrum
* moderne und hochwertige Ausstattung
* PKW-Stellplätze in der hauseigenen Tiefgarage
* durchdachte Grundrisse mit geräumigen Freiflächen - ideal für Familien, Paare und Singles
Ausstattungsstandard:
Bei der Realisierung des Neubaus wurde folgende hochwertige Ausstattung ausgeführt:
* Vollwärmeschutzfassade (geringer Heizwärmebedarf = geringe Heizkosten)
* Lift
* Fußbodenheizung (betrieben als Zentralheizung über eine energieeffiziente Wärmepumpe)
* 3-fach isolierverglaste Kunststoff-/Alufenster
* elektrischer Sonnenschutz mit Rollläden
* Parkettboden
* großformatige Fliesen 30x60cm (in den Nassbereichen)
* hochwertige Sanitäreinrichtung
* Sicherheitseingangstüre
* Klimaanlagen im letzten DG
* Kellerabteile
* Fahrradabstell- und Kinderwagenraum
* Tiefgaragenstellplätze
Wohnung Top 7:
Die 2-Zimmer-Wohnung mit ca. 55,17 m² Wohnfläche und ca. 6,03 m² Loggia befindet sich im 2. OG und ist nach Süden ausgerichtet.
Über den Vorraum erreichen Sie bequem die Wohnküche, das Schlafzimmer und das Badezimmer mit WC. Über die Wohnküche gelangen Sie mit direktem Zugang auf die Loggia. Die Raumaufteilung der Wohnung gliedert sich wie folgt:
* Vorraum 4,83 m²
* Bad mit Dusche und Handwaschbecken 5,91 m²
* SR 5,52 m²
* Wohnküche 22,29 m²
* Zimmer 16,62 m²
Einige Bilder des Inserats wurden zum Zweck der besseren Visualisierung digital mit KI möbliert. Die Wohnung wird unmöbliert übergeben.
Kaufpreis:
Der Kaufpreis beläuft sich auf 329.000,00 € für den Endnutzer. Der Anlegerkaufpreis beträgt 304.325,00 € Netto zzgl. 20% USt.
Ein Tiefgargenstellplatz kann zu einem Preis von 30.000, -- € (Anleger: 27.634,49 € Netto zzgl. 20% USt.) erworben werden.
Provision: 3% des Kaufpreises zzgl. 20% USt. bei Willensübereinkunft.
Infrastruktur:
Auf Grund der unmittelbaren Lage direkt beim "Kagraner Platz" und somit auch zur U-Bahn U1 - Kagraner Platz sowie der sehr guten Erreichbarkeit der "Alten Donau" (nur 2 U-Bahn-Station entfernt), handelt es sich hierbei um eine der begehrtesten Wiener Lagen. Für Sportbegeisterte steht zusätzlich zu den Flächen rund um die Alte Donau auch die "Steffl Arena" ums Eck zur Verfügung. Zwei Fitnessstudios sind ebenso fußläufig zu erreichen. Die UNO-City, das VIC (Vienna International Center) sowie der DC-Tower sind in wenigen U-Bahn-Stationen zu erreichen.
Durch die tolle öffentliche Verkehrsanbindung
* U1 - "Kagraner Platz"
* Straßenbahn 25, 26
* Buslinie 22A, 24A, 27A, 31A
erreichen Sie auch das Stadtzentrum von Wien (Stephansplatz, Schwedenplatz, Praterstern uvm.) in wenigen Augenblicken.
Die Nahversorgung ist durch das Einkaufszentrum "K1" sowie das rasch erreichbare Donauzentrum hervorragend. Hier stehen Ihnen von Supermärkten, Shops, Apotheken, Restaurants, Cafés, Sporteinrichtungen, Ärzte u.dgl. alles zur Verfügung. Einige Supermärkte (z.b. Billa) befinden sich nahezu ums Eck - somit fehlt es Ihnen hier an nichts.
Dank der Nähe zu Schulen, einem Kindergarten und der Veterinärmedizinischen UNI Wien ist die moderne Wohnanlage auch für Familien ein idealer Wohnort. Die kulinarischen Wünsche werden durch zahlreiche Restaurants in unmittelbarer Nähe abgedeckt.
Energieausweis:
Der Energieausweis beläuft sich auf 33,5 kWh/m²a, welcher der Klasse B entspricht. (FGEE: 0,78 - Klasse A)
Für Fragen bzw. Besichtigungen steht Ihnen Herr Benjamin Pippan sehr gerne unter pippan@teamneunzehn.at sowie unter 0660 317 21 60 zur Verfügung.
Wir weisen darauf hin, dass zwischen dem Vermittler und dem zu vermittelnden Dritten ein familiäres oder wirtschaftliches Naheverhältnis besteht.
"Leben braucht Raum" * T19-RE Real Estate GmbH & Co KG * www.teamneunzehn.at [https://www.teamneunzehn.at]
Doppelmakler
Wir werden als Immobilienmakler kraft bestehenden Geschäftsgebrauchs als Doppelmakler tätig und haben sohin beide Seiten des Vertrages (Verkäufer-Käufer, Vermieter-Mieter) zu unterstützen.
Wirtschaftliches Naheverhältnis
Es wird bekannt gegeben, dass folgendes wirtschaftliches Naheverhältnis zwischen der teamneunzehn-Gruppe und dem Verkäufer/der vermietenden Partei besteht: ständige und dauerhafte Beauftragung mit der Vermittlung des bestehenden Immobilienportfolios
Haftungserklärung zum Inserat
Irrtum und Änderungen vorbehalten! Sofern es sich bei Bildern um Visualisierungen handelt, können Abänderungen zur tatsächlichen Ausführung resultieren. Wir weisen ausdrücklich darauf hin, dass das auf Fotos oder Visualisierungen ersichtliche Mobiliar bzw. Inventar nicht Bestandteil des inserierten Preises ist.
Sorgenfrei vermieten - Rundum-Servicepakete für Anleger
Sie möchten nach Erwerb Ihrer Immobilie mit der Vermietung sowie den Mietabrechnungen und eventuellen Fragen während des Mietverhältnisses nicht beschäftigt sein? Wir bieten verschiedene und maßgeschneiderte Konzepte rund um unser Dienstleistungsprogramm »sorgenfrei vermieten«. Unsere Mitarbeiter freuen sich auf Ihre unverbindliche Anfrage unter sorgenfreivermieten@teamneunzehn.at
Finanzierungsservice - Ihre Wunschimmobilie optimal finanziert
Um Ihnen bei der Finanzierung Ihrer neuen Wohnung Zeit und Geld zu sparen, stehen Ihnen unsere Finanzierungsprofis mit Rat und Tat zur Seite. Wir führen für Sie unverbindlich und kostenlos einen unabhängigen Vergleich der unterschiedlichen Kreditkonditionen durch und verhelfen Ihnen zum optimalen Angebot. Wir werden sofort nach Ihrer unverbindlichen Kontaktaufnahme unter finanzierung@teamneunzehn.at aktiv.
Maßgefertigte Tischlerküchen zum fairen Preis
Vollkommen transparent mit Fingerspitzengefühl und individuell sorgen wir für die Verwirklichung der auf Ihre Immobilie und Wünsche zugeschnittenen Maßküchen- und Möbel, welche insbesondere durch attraktive Preise bei höchster Qualität punkten können. Gerne beraten wir auch Sie, bitte wenden Sie sich zur anschließenden Kontaktaufnahme an kueche@teamneunzehn.at
Infrastruktur / Entfernungen
Gesundheit
Arzt <50m
Apotheke <275m
Klinik <2.775m
Krankenhaus <2.800m
Kinder & Schulen
Schule <300m
Kindergarten <175m
Universität <550m
Höhere Schule <550m
Nahversorgung
Supermarkt <300m
Bäckerei <575m
Einkaufszentrum <900m
Sonstige
Geldautomat <550m
Bank <550m
Post <700m
Polizei <825m
Verkehr
Bus <50m
U-Bahn <525m
Straßenbahn <50m
Bahnhof <575m
Autobahnanschluss <2.150m
Angaben Entfernung Luftlinie / Quelle: OpenStreetMap
Merkmale
- Bezug: ab sofort
- 2. Geschoss
- Rollstuhlgerecht
- Personenaufzug
- offene Küche
- Bad mit Dusche
- Bodenbelag: Fliesen, Parkett
- Loggia
Grundrisse
Grundrisse
1 / 1
Virtueller Rundgang
3D tour

Bausubstanz und Energie
Heizwärmebedarf (HWB)
B
Gesamtenergieeffizienz (fGEE)
A
- Baujahr2023
- Zustand der ImmobilieNeubau, Erstbezug
- HeizungsartZentralheizung: Fußbodenheizung
Preisdetails
Kaufpreis
304325.56 €304.325,56 €
5.467,58 €/m²
Provision für Käufer
3% des Kaufpreises zzgl. 20% USt.
Lage

Donaufelder Straße 207, Wien (1220)
Kagraner Platz, U1, Wagramer Straße, Donauzentrum, Alte Donau
Weitere Informationen
Stichworte
Garage vorhanden, Süd-Balkon/Terrasse, Fahrradraum, Rolladen, Nutzfläche: 61,56 m², Gesamtfläche: 61,20 m², Freifläche: 6,03 m², Anzahl der Badezimmer: 1, Anzahl der separaten WCs: 1, Anzahl Loggias: 1, Balkon-Terrassen-Fläche: 6,03 m², Bundesland: Wien, 7 Etagen, Wohnungsnr.: 7
Sonstiges/Wohnen: seniorengerechtes Wohnen
Sonstiges: Neubaustandard
Weitere Services
Lust auf eine Besichtigung?
Eine Frage zur Immobilie?
Über den Anbieter
Handelskai 94-96/21. Stock, 1200 BRIGITTENAU
Partnerschaft
Herr Benjamin PippanDein Kontakt
Online-ID: 25JDIMIK2QRQ
Referenznummer: OBGC20251208133005174cd6607a86f
Wie zufrieden bist du mit dieser Seite (nicht mit der Immobilie selbst)?

