
URBANGOODLIVING Immobilien GmbH
Herr Michael Urban
+49 ···
Nr. anzeigenPreise & Kosten
Provision für Käufer
3,57% vom Kaufpreis (inkl. MwSt.)
Lage
Lagebeschreibung Breitbrunn bei Herrsching am Ammersee
Breitbrunn, ein malerischer Ortsteil der Gemeinde Herrsching am Ammersee, gehört zu den begehrtesten Wohnlagen im bayerischen Fünfseenland. Nur wenige Gehminuten vom westlichen Ammerseeufer entfernt, vereint dieser charmante Ort naturnahe Ruhe, stilvolle...
Das Haus
Kategorie
Doppelhaushälfte
Baujahr
2026
Bezug
Baubeginn Nov 2025
Energie & Heizung
Warum sehe ich diese Anzeige? – Du siehst diese Anzeige basierend auf Ihrer Navigation auf unserer Website und den Suchkriterien, die du verwendet hast.
Energieausweis: für diesen Gebäudetyp nicht notwendig
Weitere Energiedaten
Heizungsart
Luft-/Wasser-Wärmepumpe, Zentralheizung
Details
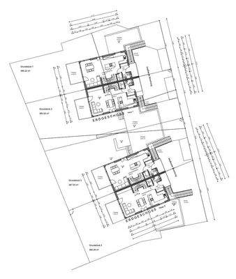
Objektbeschreibung
In Herrsching am Ammersee, Ortsteil Breitbrunn, entstehen aktuell vier exklusive Doppelhaushälften, die modernen Wohnkomfort mit hochwertiger Bauweise verbinden. Das Neubauprojekt überzeugt durch zeitgemäße Architektur, energieeffiziente Ausstattung und ein familienfreundliches Umfeld in einer der begehrtesten Regionen rund...
Ausstattung
Das Haus im Überblick
-
Wohnfläche: ca. 150-160 m² (je nach Grundriss)
-
Zimmer: 5-6, inkl. großzügigem Wohn-/Essbereich
-
Grundstücksanteil: ca. 250-300 m² je Haushälfte
-
Baujahr: 2025 (Neubau, Erstbezug)
-
Keller: voll unterkellert, vielfältig nutzbar
-...
Preisinformation
1 Stellplatz
1 Garagenstellplatz
Weitere Informationen
Sonstiges
Dieses Exposé wurde mit Sorgfalt zusammengestellt. Alle darin enthaltenen Angaben über das Objekt und Grundstück beruhen auf Informationen des Verkäufers oder der Verkäuferin. Eine Haftung für deren Richtigkeit und Vollständigkeit können und werden wir nicht übernehmen.
Der Makler-Vertrag mit uns und/oder...
Anbieter der Immobilie
URBANGOODLIVING Immobilien GmbH
Steingadener Str. 11, 86980 Ingenried
Online-ID: 2mfgv5c
Referenznummer: 383711
Finde Angebote wie dieses
Hier geht es zu unserem Impressum, den Allgemeinen Geschäftsbedingungen, den Hinweisen zum Datenschutz und nutzungsbasierter Online-Werbung.