
Zefi Immobilien GmbH
Herr Mike Rettkowski
053 ···
Nr. anzeigenPreise & Kosten
Provision für Käufer
53.964,00 € inkl. 20% USt.
Lage
Die Gemeinde Schwoich liegt idyllisch auf einem sonnigen Hochplateau südlich von Kufstein im Tiroler Unterland. Eingebettet zwischen Wiesen, Wäldern und den beeindruckenden Gipfeln des Wilden Kaisers, bietet Schwoich eine perfekte Kombination aus naturnaher Ruhe und guter Infrastruktur.
Mit rund 2.500 Einwohnern hat sich...
Das Haus
Kategorie
Mehrfamilienhaus
Baujahr
1977
Bezug
ab sofort
Energie & Heizung
Warum sehe ich diese Anzeige? – Du siehst diese Anzeige basierend auf Ihrer Navigation auf unserer Website und den Suchkriterien, die du verwendet hast.
Heizwärmebedarf (HWB)
48,30 kWh/(m²·a)
Gesamtenergieeffizienz (fGEE)
0,75
Weitere Energiedaten
Haustyp
Massivhaus
Energieträger
Holz, Pellets, Solar
Heizungsart
Fußbodenheizung, Zentralheizung
Details
Objektbeschreibung
TRAUMHAFTES MEHRFAMILIENHAUS IN ABSOLUTER RUHELAGE IN SCHWOICH, TIROL
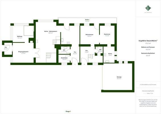
In idyllischer Sackgassenlage von Schwoich, umgeben von Natur und Ruhe, befindet sich dieses außergewöhnliche Mehrfamilienhaus auf einem großzügigen Grundstück von 958 m². Das Haus überzeugt mit einer Gesamtwohnfläche von ca. 250 m², aufgeteilt auf...
Preisinformation
4 Stellplätze
1 Garagenstellplatz
Weitere Informationen
Stichworte
Carport vorhanden, Stellplatz vorhanden, Garage vorhanden, Süd-West-Balkon/Terrasse, Nutzfläche: 307,70 m², Anzahl der Badezimmer: 4, Anzahl der separaten WCs: 6, Anzahl Balkone: 2, Anzahl Terrassen: 2, Balkon-Terrassen-Fläche: 50,00 m², Gartenfläche: 100,00 m², Kellerfläche: 20,00 m², Bundesland: Tirol...
Anbieter der Immobilie
Zefi Immobilien GmbH
Josef-Speckbacher-Str. 12, 6300 WÖRGL
Online-ID: 2mgh357
Referenznummer: OBGC202510151126342619aa3c349f0
Finde Angebote wie dieses
Günstige Immobilienfinanzierung einfach online berechnen
Persönliches Angebot berechnenWarum sehe ich diese Werbung? – Du siehst diese Werbung basierend auf Deiner Navigation auf unserer Website und der von Dir verwendeten Suchkriterien.
Diese Werbung wird bezahlt von durchblicker
Werbung melden
Hier geht es zu unserem Impressum, den Allgemeinen Geschäftsbedingungen, den Hinweisen zum Datenschutz und nutzungsbasierter Online-Werbung.