
Raiffeisen Immobilien Vermittlung GmbH
Herr Andreas Zach
+43 ···
Nr. anzeigenPreise & Kosten
Provision für Käufer
3% des Kaufpreises plus 20% USt.
Lage
Lagebeschreibung
Das Neubau-Wohnhausprojekt in der Mitschastraße 26, 2130 Mistelbach befindet sich in zentrumsnaher Stadtlage mit ausgezeichneter infrastruktureller Versorgung. Der Standort verbindet eine ruhige, angenehme Wohnumgebung mit der unmittelbaren Nähe zu allen wichtigen Einrichtungen des täglichen...
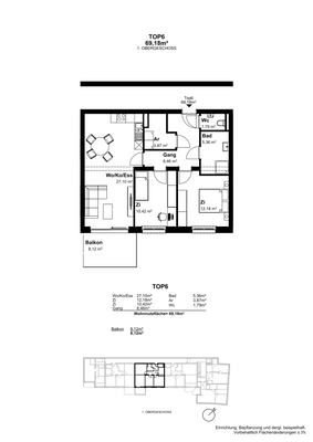
Die Wohnung
Wohnungslage
1. Geschoss
Bezug
Nach Vereinbarung
Wohnanlage
Energie & Heizung
Warum sehe ich diese Anzeige? – Du siehst diese Anzeige basierend auf Ihrer Navigation auf unserer Website und den Suchkriterien, die du verwendet hast.
Heizwärmebedarf (HWB)
45,70 kWh/(m²·a)
Gesamtenergieeffizienz (fGEE)
1,21
Weitere Energiedaten
Energieträger
Fernwärme
Details
Objektbeschreibung
Kurzbeschreibung
In der Mitschastraße in Mistelbach sind 15 hochwertige Wohnungen auf 1.376 m² Grundstücksfläche auf 3 Etagen errichtet worden. Die Wohnungen umfassen Wohnnutzflächen zwischen 18 m² und 76 m² und verfügen fast alle über Freiflächen.
Objekt
In der Mitschastraße 26 sind fünfzehn hochwertige...
Ausstattung
Bau- & AusstattungsqualitätMassivbauweise, Porenbetondecken bzw. StahlbetondeckenHochwertige Kunststoff-Alu-Fenster mit 3-fach-Verglasung und elektrischem SonnenschutzWohnungseingangstüren RC2Fußbodenheizung über Fernwärme, eigener WohnungszählerParkett- oder Laminatböden in Aufenthaltsräumen, Qualitätsfliesen in...
Preisinformation
Ein Parkplatz kann um EUR 15.000,00 bei Verfügbarkeit dazu erworben werden.
Weitere Informationen
Stichworte
Anzahl der Schlafzimmer: 2, Anzahl der Badezimmer: 1, Anzahl der separaten WCs: 1, Anzahl Balkone: 1, Bundesland: Niederösterreich
Dokumente
Anbieter der Immobilie
Online-ID: 2mgug5p
Referenznummer: 00010110010004
Finde Angebote wie dieses
Günstige Immobilienfinanzierung einfach online berechnen
Persönliches Angebot berechnenWarum sehe ich diese Werbung? – Du siehst diese Werbung basierend auf Deiner Navigation auf unserer Website und der von Dir verwendeten Suchkriterien.
Diese Werbung wird bezahlt von durchblicker
Werbung melden
Hier geht es zu unserem Impressum, den Allgemeinen Geschäftsbedingungen, den Hinweisen zum Datenschutz und nutzungsbasierter Online-Werbung.